東京都練馬区石神井町3丁目(石神井公園駅)の賃貸:物件詳細
交通 所在地 |
駅徒歩 |
賃料 管理費等 |
敷金/保証金 礼金 |
間取り 面積 |
物件種目 築年月 |
|
西武池袋線/石神井公園
東京都練馬区石神井町3丁目
|
1分
|
13.8万円
8,000円
|
1ヶ月 / なし
なし
|
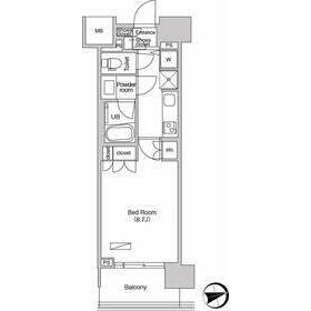
1K
29.44m²
|
賃貸マンション
2017年1月(築9年)
|
最上階、南向き
|
|
間取図
|
外観
|
<
その他の画像
>
|
| 交通 | 西武池袋線 石神井公園駅 徒歩1分 |
| 所在地 |
東京都練馬区石神井町3丁目
|
| 物件種目 |
賃貸マンション |
| 賃料 |
13.8万円 |
管理費等 |
8,000円 |
| 敷金 / 保証金 |
1ヶ月 / なし |
礼金 |
なし |
| 敷引 |
- |
保証金償却 |
- |
| その他一時金 |
鍵発行手数料:16,500円 |
保険等 |
要 2年 24,780円 |
| 維持費等 |
- |
| 間取り |
1K |
専有面積 |
29.44m² |
| 築年月 |
2017年1月(築9年)
|
階建 / 階 |
14階建 / 14階 |
| 建物構造 |
SRC |
総戸数 |
- |
| 主要採光面 |
南 |
駐車場 |
有 22,000円/月 |
| バイク置き場 |
- |
駐輪場 |
有 |
| 建物名・部屋番号 |
エミリブ石神井公園 1410 |
ペット |
-
|
| リフォーム履歴 |
- |
| リノベーション履歴 |
- |
| 備考 |
賃貸保証等:加入要(保証会社利用必:初回保証料40% 1年毎10,000円(賃料15万以上は14,000円)自転車置場利用料も保証料算出)
管理形態/管理員の勤務形態:-/日勤
管理人日勤
ライフ石神井公園店まで229mです。室内設備は洗面所独立・浴室乾燥機など大変充実しております。全居室フローリングなので跡を気にせずに物を置くことができます。利便性の高い暮らしをするなら練馬区へのお引越をご検討してみてはいかがでしょうか?住み良い環境が整っているので、生活に困ることはありません。賃貸情報のことなら、当社にお任せ下さい。
近くのライフ石神井公園店まで徒歩3分で行けます。室内設備は浴室乾燥機・洗面所独立などが揃っているので、快適に過ごしやすいお部屋になります。14階にある物件をご紹介していきます。帰る場所に魅力があると、より楽しい生活になりませんか。住まいは誰にとっても重要な役割を果たしてくれるものです。ご希望の住まいを共に見つけましょう。
|
| エネルギー消費性能 |
- |
| 断熱性能 |
- |
| 目安光熱費 |
- |
| バス・トイレ |
バス・トイレ別、浴室乾燥機、洗面所独立、洗面所、温水洗浄便座、トイレ |
| キッチン |
システムキッチン、2口コンロ、ガスコンロ付、ガスコンロ可 |
| セキュリティー |
モニター付オートロック、オートロック、モニター付インターホン、ディンプルキー、防犯カメラ |
| 収納 |
- |
| 設備・サービス |
室内洗濯機置場、洗濯機置場、全居室フローリング、フローリング、都市ガス、エアコン |
| TV・通信 |
インターネット対応、インターネット使用料無料、ケーブルTV、CS、BS端子 |
| その他 |
宅配BOX、バルコニー、駐輪場 |
| 契約期間 |
3年 |
現況 |
空家 |
| 条件等 |
定期借家 |
入居可能時期 |
相談 |
| 更新料 |
- |
物件番号 |
1142610215 |
| 情報公開日 |
2025年12月9日 |
次回更新予定日 |
2025年12月23日 |
| ケータイ用バーコード |
- スマートフォンでこの物件を見る
- スマートフォンからもこの物件をご覧になれます。
|
※「-」と表示されている項目については、情報提供会社にご確認ください。
| 周辺施設 |
ライフ石神井公園店 |
| 距離 |
229m |
写真を見る |
| 周辺施設 |
ファミリーマート トモニー石神井公園駅中央口店 |
| 距離 |
101m |
写真を見る |
| 周辺施設 |
セブンイレブン 練馬インター店 |
| 距離 |
1461m |
写真を見る |
ここから簡単にお問い合わせをすることができます。
(SSLでの暗号化での送信を希望されるお客さまは
こちら
よりお問い合わせください)
お問い合わせを行う前に
「個人情報の取り扱いについて」を必ずお読みください。
「個人情報の取り扱いについて」に同意いただいた場合は「上記にご同意の上 確認画面へ進む」のボタンをクリックしてください。
個人情報の取り扱いについて
皆さまが送付された個人情報はアットホーム(株)のサーバを経由し、お問い合わせ先の不動産会社にメールまたはFAXにて転送されるためアットホーム(株)にも保管されます。アットホーム(株)で保管された個人情報の取り扱いについては、【こちら】をご覧ください。
また、本画面でご記入いただいた個人情報は、お問い合わせ先の不動産会社でも保管します。 お問い合わせ先の不動産会社が保管する個人情報の取り扱いについては、不動産会社に直接お問い合わせください。
東京都知事免許(1)第109214号 |
|---|
- 交通:
- JR山手線/新宿駅 徒歩7分
- 東京都新宿区西新宿3丁目1-2 Ski西新宿ビル 1F
- TEL:
- 03-4500-8852
- FAX:
- 03-6388-1741
- 所属団体:
- (公社)東京都宅地建物取引業協会会員(公社)首都圏不動産公正取引協議会加盟
取引態様:仲介  - 00275101
|
- スマートフォンで
この不動産会社を見る

|
- 提携サイト等より掲載されている物件情報につきましては、不動産会社詳細情報にリンクされていないものがあります。
- 物件に関するお問合せは、物件詳細ページの「情報提供会社」に表示されている不動産会社へ直接お願いいたします。
- 間取図は、現況を優先させていただきます。
- 映像は物件の一部を撮影したものです。物件の契約にあたっての最終判断はご自身の判断に基づいて行ってください。
- 仲介手数料について

アットホームは物件情報の適正化に努めております。
内容に誤りがある場合にはこちらへご連絡ください。