東京都中央区東日本橋2丁目(浅草橋駅)の賃貸:物件詳細
交通 所在地 |
駅徒歩 |
賃料 管理費等 |
敷金/保証金 礼金 |
間取り 面積 |
物件種目 築年月 |
|
都営浅草線/浅草橋
東京都中央区東日本橋2丁目
|
3分
|
13.8万円
10,000円
|
1ヶ月 / なし
1ヶ月
|
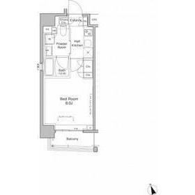
1K
25.42m²
|
賃貸マンション
2018年10月(築7年3ヶ月)
|
ペット相談、角部屋、南向き
|
|
間取図
|
外観
|
<
その他の画像
>
|
| 交通 | 都営浅草線 浅草橋駅 徒歩3分 |
|---|
| その他の交通 | JR総武本線 馬喰町駅 徒歩3分 JR総武線 浅草橋駅 徒歩5分 |
| 所在地 |
東京都中央区東日本橋2丁目
|
| 物件種目 |
賃貸マンション |
| 賃料 |
13.8万円 |
管理費等 |
10,000円 |
| 敷金 / 保証金 |
1ヶ月 / なし |
礼金 |
1ヶ月 |
| 敷引 |
- |
保証金償却 |
- |
| その他一時金 |
なし |
保険等 |
要 |
| 維持費等 |
- |
| 間取り |
1K(洋8) |
専有面積 |
25.42m² |
| 築年月 |
2018年10月(築7年3ヶ月)
|
階建 / 階 |
10階建 / 6階 |
| 建物構造 |
RC |
総戸数 |
- |
| 主要採光面 |
南 |
駐車場 |
- |
| バイク置き場 |
- |
駐輪場 |
有 |
| 建物名・部屋番号 |
プラウドフラット東日本橋 603 |
ペット |
相談 |
| リフォーム履歴 |
- |
| リノベーション履歴 |
- |
| 備考 |
賃貸保証等:加入要(GTN 保証会社利用必:【B】賃料総額40%/月額800円【】賃料総額50%/月額2 000円 「法人」利用できません)
管理形態/管理員の勤務形態:-/日勤
管理人日勤
室内設備は浴室乾燥機・洗面化粧台などが揃っており、とても充実しています。不在時でも荷物を受け取ることができるため、時間調整の手間が省ける宅配ボックスが付いています。収納はシューズボックス・クロゼットなどが備え付けられているので、衣類や日用品の収納に重宝します。セキュリティ面は、TVインターホン・オートロックなど充実しているので安心して生活できます。10階建ての建物で地域にマッチした物件。犯罪の抑止力として効果がある防犯カメラが設置されています。調べ物ラクラク、光回線で早い通信速度でパソコンが使用できます。こちらはマンションタイプになります。一人暮らしで料理もできるキッチンが快適な1K。こちらの物件は令和8年1月の入居期日指定があります。駐輪場が付いている物件です。
|
| エネルギー消費性能 |
- |
| 断熱性能 |
- |
| 目安光熱費 |
- |
| バス・トイレ |
バス・トイレ別、浴室乾燥機、温水洗浄便座、タンクレストイレ、トイレ |
| キッチン |
システムキッチン、2口コンロ、ガスコンロ可 |
| セキュリティー |
モニター付オートロック、オートロック、モニター付インターホン、ディンプルキー、ダブルロックドア、防犯カメラ |
| 収納 |
収納スペース、クローゼット、シューズボックス |
| 設備・サービス |
室内洗濯機置場、洗濯機置場、フローリング、都市ガス、エアコン、ダウンライト |
| TV・通信 |
インターネット対応、光ファイバー、CS |
| その他 |
宅配BOX、バルコニー、駐輪場、エレベーター |
| 契約期間 |
2年 |
現況 |
居住中 |
| 条件等 |
- |
入居可能時期 |
2026年1月下旬予定 |
| 更新料 |
- |
物件番号 |
1142668115 |
| 情報公開日 |
2025年12月14日 |
次回更新予定日 |
2025年12月28日 |
| ケータイ用バーコード |
- スマートフォンでこの物件を見る
- スマートフォンからもこの物件をご覧になれます。
|
※「-」と表示されている項目については、情報提供会社にご確認ください。
| 周辺施設 |
薬マツモトキヨシ 浅草橋駅前店 |
| 距離 |
399m |
写真を見る |
| 周辺施設 |
マルエツ プチ 柳橋二丁目店 |
| 距離 |
674m |
写真を見る |
| 周辺施設 |
まいばすけっと 浅草橋駅北店 |
| 距離 |
741m |
写真を見る |
| 周辺施設 |
ファミリーマート 浅草橋三丁目店 |
| 距離 |
689m |
写真を見る |
ここから簡単にお問い合わせをすることができます。
(SSLでの暗号化での送信を希望されるお客さまは
こちら
よりお問い合わせください)
お問い合わせを行う前に
「個人情報の取り扱いについて」を必ずお読みください。
「個人情報の取り扱いについて」に同意いただいた場合は「上記にご同意の上 確認画面へ進む」のボタンをクリックしてください。
個人情報の取り扱いについて
皆さまが送付された個人情報はアットホーム(株)のサーバを経由し、お問い合わせ先の不動産会社にメールまたはFAXにて転送されるためアットホーム(株)にも保管されます。アットホーム(株)で保管された個人情報の取り扱いについては、【こちら】をご覧ください。
また、本画面でご記入いただいた個人情報は、お問い合わせ先の不動産会社でも保管します。 お問い合わせ先の不動産会社が保管する個人情報の取り扱いについては、不動産会社に直接お問い合わせください。
東京都知事免許(1)第109214号 |
|---|
- 交通:
- JR山手線/新宿駅 徒歩7分
- 東京都新宿区西新宿3丁目1-2 Ski西新宿ビル 1F
- TEL:
- 03-4500-8852
- FAX:
- 03-6388-1741
- 所属団体:
- (公社)東京都宅地建物取引業協会会員(公社)首都圏不動産公正取引協議会加盟
取引態様:仲介  - 00275101
|
- スマートフォンで
この不動産会社を見る

|
- 提携サイト等より掲載されている物件情報につきましては、不動産会社詳細情報にリンクされていないものがあります。
- 物件に関するお問合せは、物件詳細ページの「情報提供会社」に表示されている不動産会社へ直接お願いいたします。
- 間取図は、現況を優先させていただきます。
- 映像は物件の一部を撮影したものです。物件の契約にあたっての最終判断はご自身の判断に基づいて行ってください。
- 仲介手数料について

アットホームは物件情報の適正化に努めております。
内容に誤りがある場合にはこちらへご連絡ください。