静岡県浜松市中央区丸塚町(曳馬駅)の賃貸:物件詳細
交通 所在地 |
駅徒歩 |
賃料 管理費等 |
敷金/保証金 礼金 |
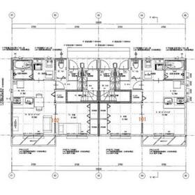
間取り 面積 |
物件種目 築年月 |
|
遠州鉄道/曳馬
静岡県浜松市中央区丸塚町
|
20分
|
7.3万円
2,000円
|
10万円 / なし
なし
|
1LDK
41.64m²
|
賃貸アパート
2025年6月(築1年未満)
|
角部屋、南向き、IT重説対応物件、保証人不要
|
|
間取図
|
外観
|
<
その他の画像
>
|
| 交通 | 遠州鉄道 曳馬駅 徒歩20分 |
|---|
| その他の交通 | 遠州鉄道 上島駅 徒歩23分 遠州鉄道 助信駅 徒歩24分 |
| 所在地 |
静岡県浜松市中央区丸塚町
|
| 物件種目 |
賃貸アパート |
| 賃料 |
7.3万円 |
管理費等 |
2,000円 |
| 敷金 / 保証金 |
10万円 / なし |
礼金 |
なし |
| 敷引 |
- |
保証金償却 |
- |
| その他一時金 |
なし |
保険等 |
要 2年 20,000円 |
| 維持費等 |
町内会費:6,000円/年 |
| 間取り |
1LDK(洋室5.2・LDK10.9) |
専有面積 |
41.64m² |
| 築年月 |
2025年6月(築1年未満)
|
階建 / 階 |
2階建 / 1階 |
| 建物構造 |
軽量鉄骨造 |
総戸数 |
4戸 |
| 主要採光面 |
南 |
駐車場 |
有 無料 |
| バイク置き場 |
無 |
駐輪場 |
有 |
| 建物名・部屋番号 |
|
ペット |
-
|
| アピールポイント |
旧東区エリア☆丸塚町♪2025年6月築の築浅アパートに空室情報です♪駐車場は嬉しい2台付き♪
充実設備の快適なお部屋で新生活を始めませんか♪問い合わせはお早めに♪ |
| リフォーム履歴 |
- |
| リノベーション履歴 |
- |
| 備考 |
賃貸保証等:加入要(初回契約時:30%、月額:1%)
管理形態/管理員の勤務形態:-/-
IT重説対応物件
築浅 2025年6月築 追い焚き 浴室乾燥 浴室に窓 全戸角部屋タイプ 駐車場2台付き 駐車2台無料 エアコン BS インターネット無料 光ファイバー 宅配ボックス システムキッチン IHクッキングヒーター シューズボックス シャッター雨戸 ディンプルキー TVインターホン ※現況優先 保証人不要 要保証会社契約
|
| エネルギー消費性能 |
- |
| 断熱性能 |
- |
| 目安光熱費 |
- |
| バス・トイレ |
バス・トイレ別、浴室乾燥機、追焚機能、シャワー付洗面化粧台、洗面所独立、洗面所、シャワー、温水洗浄便座、トイレ |
| キッチン |
システムキッチン、IHクッキングヒーター |
| セキュリティー |
モニター付インターホン |
| 収納 |
クローゼット、シューズボックス |
| 設備・サービス |
室内洗濯機置場、洗濯機置場、給湯、プロパンガス、エアコン |
| TV・通信 |
インターネット使用料無料、光ファイバー、BS端子 |
| その他 |
バルコニー、駐輪場 |
| 契約期間 |
2年 |
現況 |
空家 |
| 条件等 |
- |
入居可能時期 |
2026年5月中旬予定 |
| 仲介手数料 |
1.1ヶ月 |
|
|
| 更新料 |
- |
物件番号 |
1142778720 |
| 情報公開日 |
2026年3月24日 |
次回更新予定日 |
2026年4月7日 |
| ケータイ用バーコード |
- スマートフォンでこの物件を見る
- スマートフォンからもこの物件をご覧になれます。
|
※「-」と表示されている項目については、情報提供会社にご確認ください。
| 周辺施設 |
イオンモール浜松市野 |
| 距離 |
1616m |
写真を見る |
| 周辺施設 |
遠鉄ストア天王店 |
| 距離 |
1143m |
写真を見る |
| 周辺施設 |
ファミリーマート浜松丸塚店 |
| 距離 |
226m |
写真を見る |
| 周辺施設 |
杏林堂薬局上西店 |
| 距離 |
883m |
写真を見る |
| 周辺施設 |
ハードストック浜松早出 |
| 距離 |
1111m |
写真を見る |
| 周辺施設 |
浜松市立丸塚中学校 |
| 距離 |
588m |
写真を見る |
| 周辺施設 |
浜松市立蒲小学校 |
| 距離 |
1421m |
写真を見る |
| 周辺施設 |
マックスバリュエクスプレス浜松早出店 |
| 距離 |
1266m |
写真を見る |
ここから簡単にお問い合わせをすることができます。
(SSLでの暗号化での送信を希望されるお客さまは
こちら
よりお問い合わせください)
お問い合わせを行う前に
「個人情報の取り扱いについて」を必ずお読みください。
「個人情報の取り扱いについて」に同意いただいた場合は「上記にご同意の上 確認画面へ進む」のボタンをクリックしてください。
個人情報の取り扱いについて
皆さまが送付された個人情報はアットホーム(株)のサーバを経由し、お問い合わせ先の不動産会社にメールまたはFAXにて転送されるためアットホーム(株)にも保管されます。アットホーム(株)で保管された個人情報の取り扱いについては、【こちら】をご覧ください。
また、本画面でご記入いただいた個人情報は、お問い合わせ先の不動産会社でも保管します。 お問い合わせ先の不動産会社が保管する個人情報の取り扱いについては、不動産会社に直接お問い合わせください。
静岡県知事免許(4)第13116号 |
|---|
- 交通:
- 【バス】 浜松スポーツセンター
- 静岡県浜松市中央区宮竹町648
- TEL:
- 053-468-1313
- FAX:
- 053-468-1323
- 所属団体:
- (公社)静岡県宅地建物取引業協会会員東海不動産公正取引協議会加盟
取引態様:仲介  - 40402644
|
- スマートフォンで
この不動産会社を見る

|
- 提携サイト等より掲載されている物件情報につきましては、不動産会社詳細情報にリンクされていないものがあります。
- 物件に関するお問合せは、物件詳細ページの「情報提供会社」に表示されている不動産会社へ直接お願いいたします。
- 間取図は、現況を優先させていただきます。
- 映像は物件の一部を撮影したものです。物件の契約にあたっての最終判断はご自身の判断に基づいて行ってください。
- 仲介手数料について

アットホームは物件情報の適正化に努めております。
内容に誤りがある場合にはこちらへご連絡ください。