東京都渋谷区代々木2丁目(新宿駅)の賃貸:物件詳細
交通 所在地 |
駅徒歩 |
賃料 管理費等 |
敷金/保証金 礼金 |
間取り 面積 |
物件種目 築年月 |
|
京王線/新宿
東京都渋谷区代々木2丁目
|
3分
|
12.5万円
10,000円
|
1ヶ月 / なし
1ヶ月
|
1K
24.26m²
|
賃貸マンション
2014年8月(築11年7ヶ月)
|
常時ゴミ出し可能、二人入居可、24時間換気システム
|
|
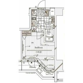
間取図
|
外観
|
その他の画像
|
| 交通 | 京王線 新宿駅 徒歩3分 |
|---|
| その他の交通 | 都営大江戸線 新宿駅 徒歩5分 JR山手線 代々木駅 徒歩8分 |
| 所在地 |
東京都渋谷区代々木2丁目
|
| 物件種目 |
賃貸マンション |
| 賃料 |
12.5万円 |
管理費等 |
10,000円 |
| 敷金 / 保証金 |
1ヶ月 / なし |
礼金 |
1ヶ月 |
| 敷引 |
- |
保証金償却 |
- |
| その他一時金 |
なし、鍵交換代等:38,500円~ |
保険等 |
要 2,530円 |
| 維持費等 |
BRIプライムプラス:2,500円/月 |
| 間取り |
1K(洋8.3) |
専有面積 |
24.26m² |
| 築年月 |
2014年8月(築11年7ヶ月)
|
階建 / 階 |
地上9階地下2階建 / 8階 |
| 建物構造 |
RC |
総戸数 |
- |
| 主要採光面 |
東 |
駐車場 |
- |
| バイク置き場 |
- |
駐輪場 |
- |
| 建物名・部屋番号 |
ガリシア代々木 902 |
ペット |
-
|
| リフォーム履歴 |
- |
| リノベーション履歴 |
- |
| 備考 |
管理形態/管理員の勤務形態:-/-
バルコニー:4.65m²
共用部には宅配ボックス・ゴミ出し24時間OKなどが揃っております。日中でなくても洗濯物を干せるため毎日忙しい人にもおすすめの浴室乾燥機を設置しております。オートロック機能があるので来訪者は基本的に玄関先まで来ることがなく安全面に優れております。こちらのお部屋で新しい生活を始めてみませんか。室温を一定に保つ、断熱性のあるフローリングのマンションです。お部屋とキッチンに仕切りがある、1Kの物件です。令和8年4月のお日にちの入居日指定のお部屋がございます。スペースを有効的に使用できるシステムキッチン付きの物件です。こちらのマンションは2駅が近くにあり便利です。賃料は12.5万円です。
|
| エネルギー消費性能 |
- |
| 断熱性能 |
- |
| 目安光熱費 |
- |
| バス・トイレ |
バス・トイレ別、浴室乾燥機、洗面台、シャワー、温水洗浄便座、トイレ |
| キッチン |
システムキッチン |
| セキュリティー |
オートロック、ディンプルキー |
| 収納 |
- |
| 設備・サービス |
室内洗濯機置場、洗濯機置場、都市ガス給湯、給湯、フローリング、都市ガス、エアコン、冷房 |
| TV・通信 |
インターネット対応、CS、BS端子 |
| その他 |
宅配BOX、エレベーター |
| 契約期間 |
2年 |
現況 |
居住中 |
| 条件等 |
- |
入居可能時期 |
2026年4月上旬予定 |
| 更新料 |
新賃料 1ヶ月 |
物件番号 |
1142880715 |
| 情報公開日 |
2026年1月17日 |
次回更新予定日 |
2026年2月7日 |
| ケータイ用バーコード |
- スマートフォンでこの物件を見る
- スマートフォンからもこの物件をご覧になれます。
|
※「-」と表示されている項目については、情報提供会社にご確認ください。
| 周辺施設 |
まいばすけっと 新宿駅南店 |
| 距離 |
307m |
写真を見る |
ここから簡単にお問い合わせをすることができます。
(SSLでの暗号化での送信を希望されるお客さまは
こちら
よりお問い合わせください)
お問い合わせを行う前に
「個人情報の取り扱いについて」を必ずお読みください。
「個人情報の取り扱いについて」に同意いただいた場合は「上記にご同意の上 確認画面へ進む」のボタンをクリックしてください。
個人情報の取り扱いについて
皆さまが送付された個人情報はアットホーム(株)のサーバを経由し、お問い合わせ先の不動産会社にメールまたはFAXにて転送されるためアットホーム(株)にも保管されます。アットホーム(株)で保管された個人情報の取り扱いについては、【こちら】をご覧ください。
また、本画面でご記入いただいた個人情報は、お問い合わせ先の不動産会社でも保管します。 お問い合わせ先の不動産会社が保管する個人情報の取り扱いについては、不動産会社に直接お問い合わせください。
東京都知事免許(1)第109214号 |
|---|
- 交通:
- JR山手線/新宿駅 徒歩7分
- 東京都新宿区西新宿3丁目1-2 Ski西新宿ビル 1F
- TEL:
- 03-4500-8852
- FAX:
- 03-6388-1741
- 所属団体:
- (公社)東京都宅地建物取引業協会会員(公社)首都圏不動産公正取引協議会加盟
取引態様:仲介  - 00275101
|
- スマートフォンで
この不動産会社を見る

|
- 提携サイト等より掲載されている物件情報につきましては、不動産会社詳細情報にリンクされていないものがあります。
- 物件に関するお問合せは、物件詳細ページの「情報提供会社」に表示されている不動産会社へ直接お願いいたします。
- 間取図は、現況を優先させていただきます。
- 映像は物件の一部を撮影したものです。物件の契約にあたっての最終判断はご自身の判断に基づいて行ってください。
- 仲介手数料について

アットホームは物件情報の適正化に努めております。
内容に誤りがある場合にはこちらへご連絡ください。