東京都江戸川区東瑞江1丁目(瑞江駅)の賃貸:物件詳細
交通 所在地 |
駅徒歩 |
賃料 管理費等 |
敷金/保証金 礼金 |
間取り 面積 |
物件種目 築年月 |
都営新宿線/瑞江
東京都江戸川区東瑞江1丁目
|
8分
|
18.7万円
12,000円
|
なし / なし
なし
|
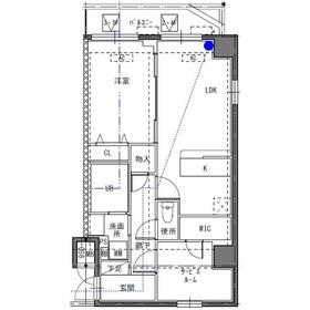
1SLDK
51.44m²
|
賃貸マンション
2024年1月(築1年10ヶ月)
|
ペット相談、角部屋、二人入居可、2面採光、保証人不要
|
間取図
|
外観
|
<
その他の画像
>
|
|
交通 | 都営新宿線 瑞江駅 徒歩8分 |
---|
その他の交通 | 東京メトロ東西線 南行徳駅 【バス】 18分 東部区民館入口 停歩3分 都営新宿線 一之江駅 【バス】 10分 東部区民館入口 停歩3分 |
所在地 |
東京都江戸川区東瑞江1丁目
|
物件種目 |
賃貸マンション |
賃料 |
18.7万円 |
管理費等 |
12,000円 |
敷金 / 保証金 |
なし / なし |
礼金 |
なし |
敷引 |
- |
保証金償却 |
- |
その他一時金 |
なし |
保険等 |
要 |
維持費等 |
- |
クレジットカード決済 |
初期費用可 |
間取り |
1SLDK(LDK11.1洋室6.1納戸(S)4) |
専有面積 |
51.44m² |
築年月 |
2024年1月(築1年10ヶ月)
|
階建 / 階 |
6階建 / 3階 |
建物構造 |
RC |
総戸数 |
32戸 |
主要採光面 |
|
駐車場 |
有 22,000円/月 |
バイク置き場 |
有 |
駐輪場 |
有 無料 |
建物名・部屋番号 |
Alivis東瑞江 |
ペット |
相談 |
アピールポイント |
☆当店の強みをお伝えします☆
①クレジットカードの初期費用分割払いを、喜んでお受けいたします(クレジットカード以外もOK)
②他社様がネットに掲載されている物件は、全てお調べし、【好条件】でご紹介いたします
他社様で「お申込み」された物件でも、【好条件】でご紹介できる場合がございます
③「審査が不安…」「保証人がいない…」「値段交渉をして欲しい…」などなど、
どのようなご条件でも、遠慮なくご相談いただけます
④ご検討されている「エリア」「沿線」が「広範囲」「複数」でも、一度で漏れなくお探しいただけます
ポータルサイトや他社サイトで気になるお部屋がございましたらお気軽にご相談ください
お客様のご来店を心よりお待ちしております |
リフォーム履歴 |
- |
リノベーション履歴 |
- |
備考 |
賃貸保証等:加入要(月額賃料等の30%(初回保証料)、330円/月(口座振替手数料)、2年目以降は1万円/年)
管理形態/管理員の勤務形態:-/-
敷地内駐車場(利用時):月額22000円、敷金1ヶ月/駐輪場(利用時):月額利用料不要、初回登録料5500円/バイク置場(利用時):月額3300円、敷金1ヶ月/室内清掃費用 80300円(退去時)/エアコン清掃費用借主負担(退去時)/1年未満の解約は総賃料の1ヶ月分の違約金有/鍵交換費用 33000円(退去時)/ペット飼育時、敷金積増1ヶ月/法人契約時、礼金積増1ヶ月
|
エネルギー消費性能 |
- |
断熱性能 |
- |
目安光熱費 |
- |
バス・トイレ |
バス・トイレ別、浴室暖房、浴室乾燥機、追焚機能、洗面所独立、洗面台、シャワー、温水洗浄便座、トイレ |
キッチン |
カウンターキッチン |
セキュリティー |
オートロック |
収納 |
ウォークインクローゼット、収納スペース、クローゼット、シューズボックス |
設備・サービス |
室内洗濯機置場、都市ガス給湯、給湯、全居室フローリング、フローリング、都市ガス、エアコン |
TV・通信 |
インターネット対応、インターネット使用料無料、光ファイバー、CS、BS端子 |
その他 |
宅配BOX、バイク置き場、バルコニー、駐輪場、エレベーター |
契約期間 |
2年 |
現況 |
空家 |
条件等 |
- |
入居可能時期 |
即時 |
更新料 |
- |
物件番号 |
1142934313 |
情報公開日 |
2025年10月6日 |
次回更新予定日 |
2025年11月3日 |
ケータイ用バーコード |
- スマートフォンでこの物件を見る
- スマートフォンからもこの物件をご覧になれます。
|
※「-」と表示されている項目については、情報提供会社にご確認ください。
周辺施設 |
ヤマイチ江戸川店 |
距離 |
316m |
写真を見る |
周辺施設 |
セブンイレブン江戸川東瑞江1丁目店 |
距離 |
252m |
写真を見る |
周辺施設 |
ウエルシア江戸川東瑞江店 |
距離 |
317m |
写真を見る |
周辺施設 |
ラパーク瑞江 |
距離 |
705m |
写真を見る |
周辺施設 |
江戸川保育園 |
距離 |
335m |
写真を見る |
周辺施設 |
江戸川区立下鎌田東小学校 |
距離 |
388m |
写真を見る |
周辺施設 |
江戸川区立瑞江第三中学校 |
距離 |
545m |
写真を見る |
ここから簡単にお問い合わせをすることができます。
(SSLでの暗号化での送信を希望されるお客さまは
こちら
よりお問い合わせください)
お問い合わせを行う前に
「個人情報の取り扱いについて」を必ずお読みください。
「個人情報の取り扱いについて」に同意いただいた場合は「上記にご同意の上 確認画面へ進む」のボタンをクリックしてください。
個人情報の取り扱いについて
皆さまが送付された個人情報はアットホーム(株)のサーバを経由し、お問い合わせ先の不動産会社にメールまたはFAXにて転送されるためアットホーム(株)にも保管されます。アットホーム(株)で保管された個人情報の取り扱いについては、【こちら】をご覧ください。
また、本画面でご記入いただいた個人情報は、お問い合わせ先の不動産会社でも保管します。 お問い合わせ先の不動産会社が保管する個人情報の取り扱いについては、不動産会社に直接お問い合わせください。
国土交通大臣免許(1)第10782号 |
---|
- 交通:
- JR総武線/錦糸町駅 徒歩2分
- 東京都墨田区錦糸3丁目4-10 東越ビル 6階
- TEL:
- 03-5637-1155
- FAX:
- 03-5637-1156
- 所属団体:
- (公社)全日本不動産協会会員(公社)首都圏不動産公正取引協議会加盟
取引態様:仲介  - 00785879
|
- スマートフォンで
この不動産会社を見る

|
- 提携サイト等より掲載されている物件情報につきましては、不動産会社詳細情報にリンクされていないものがあります。
- 物件に関するお問合せは、物件詳細ページの「情報提供会社」に表示されている不動産会社へ直接お願いいたします。
- 間取図は、現況を優先させていただきます。
- 映像は物件の一部を撮影したものです。物件の契約にあたっての最終判断はご自身の判断に基づいて行ってください。
- 仲介手数料について

アットホームは物件情報の適正化に努めております。
内容に誤りがある場合にはこちらへご連絡ください。