埼玉県川越市大字木野目(南古谷駅)の賃貸:物件詳細
交通 所在地 |
駅徒歩 |
賃料 管理費等 |
敷金/保証金 礼金 |
間取り 面積 |
物件種目 築年月 |
|
JR川越線/南古谷
埼玉県川越市大字木野目
|
15分
|
14.5万円
なし
|
1ヶ月 / なし
1ヶ月
|
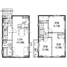
3LDK
76.59m²
|
賃貸一戸建て
2026年2月
|
ペット相談、駐車場2台分、振分、二人入居可、事務所使用可、2面採光
|
|
間取図
|
外観
|
<
その他の画像
>
|
| 交通 | JR川越線 南古谷駅 徒歩15分 |
| 所在地 |
埼玉県川越市大字木野目
|
| 物件種目 |
賃貸一戸建て |
| 賃料 |
14.5万円 |
管理費等 |
なし |
| 敷金 / 保証金 |
1ヶ月 / なし |
礼金 |
1ヶ月 |
| 敷引 |
- |
保証金償却 |
- |
| その他一時金 |
ホームマイスター24:16,500円 |
保険等 |
要 2年 20,000円 |
| 維持費等 |
スマートキー:1,650円/月 |
| 間取り |
3LDK(LDK14.9、洋6.1、洋6.5、洋5.2) |
専有面積 |
76.59m² |
| 築年月 |
2026年2月
|
階建 / 階 |
2階建 |
| 建物構造 |
木造 |
総戸数 |
- |
| 主要採光面 |
西 |
駐車場 |
有 無料 |
| バイク置き場 |
- |
駐輪場 |
- |
| 建物名・部屋番号 |
グランソフィア木野目Ⅱ A号棟 (新築戸建てをお探しの方 ) |
ペット |
相談 |
| リフォーム履歴 |
- |
| リノベーション履歴 |
- |
| 備考 |
賃貸保証等:加入要(ジェイリース 初回保証料:総賃料の100%、継続保証料:1年毎に総賃料の15% 初回保証料:総賃料の100%、継続保証料:1年毎に総賃料の15%)
管理形態/管理員の勤務形態:-/-
嬉しいペット相談OKの物件です!「戸建て賃貸」をお探しの方は弊社までご連絡ください。
LINEでのお問い合わせが便利です♪「@173ydfxm」で検索ください!川越に地域密着40年の当社にお任せ下さい。アットホームなスタッフが地域の情報と一緒にご案内いたします^^
|
| エネルギー消費性能 |
- |
| 断熱性能 |
- |
| 目安光熱費 |
- |
| バス・トイレ |
バス・トイレ別、浴室乾燥機、オートバス、追焚機能、シャワー付洗面化粧台、洗面所独立、洗面所、シャワー、温水洗浄便座、トイレ |
| キッチン |
カウンターキッチン、システムキッチン、IHクッキングヒーター、3口以上コンロ、グリル |
| セキュリティー |
モニター付インターホン、シャッター雨戸 |
| 収納 |
ウォークインクローゼット、収納スペース、クローゼット、シューズボックス、床下収納 |
| 設備・サービス |
室内洗濯機置場、洗濯機置場、プロパンガス給湯、給湯、全居室フローリング、プロパンガス、エアコン、照明器具 |
| TV・通信 |
- |
| その他 |
バルコニー |
| 契約期間 |
2年 |
現況 |
未完成 |
| 条件等 |
- |
入居可能時期 |
相談 |
| 更新料 |
新賃料 1ヶ月 |
物件番号 |
1142947715 |
| 情報公開日 |
2026年2月2日 |
次回更新予定日 |
2026年4月7日 |
| ケータイ用バーコード |
- スマートフォンでこの物件を見る
- スマートフォンからもこの物件をご覧になれます。
|
※「-」と表示されている項目については、情報提供会社にご確認ください。
ここから簡単にお問い合わせをすることができます。
(SSLでの暗号化での送信を希望されるお客さまは
こちら
よりお問い合わせください)
お問い合わせを行う前に
「個人情報の取り扱いについて」を必ずお読みください。
「個人情報の取り扱いについて」に同意いただいた場合は「上記にご同意の上 確認画面へ進む」のボタンをクリックしてください。
個人情報の取り扱いについて
皆さまが送付された個人情報はアットホーム(株)のサーバを経由し、お問い合わせ先の不動産会社にメールまたはFAXにて転送されるためアットホーム(株)にも保管されます。アットホーム(株)で保管された個人情報の取り扱いについては、【こちら】をご覧ください。
また、本画面でご記入いただいた個人情報は、お問い合わせ先の不動産会社でも保管します。 お問い合わせ先の不動産会社が保管する個人情報の取り扱いについては、不動産会社に直接お問い合わせください。
埼玉県知事免許(9)第12808号 |
|---|
- 交通:
- JR川越線/笠幡駅 徒歩14分
- 埼玉県川越市かすみ野2丁目4-2
- TEL:
- 049-233-5611
- FAX:
- 049-233-5661
- 所属団体:
- (公社)埼玉県宅地建物取引業協会会員(公社)首都圏不動産公正取引協議会加盟
取引態様:仲介  - 00987405
|
- スマートフォンで
この不動産会社を見る

|
- 提携サイト等より掲載されている物件情報につきましては、不動産会社詳細情報にリンクされていないものがあります。
- 物件に関するお問合せは、物件詳細ページの「情報提供会社」に表示されている不動産会社へ直接お願いいたします。
- 間取図は、現況を優先させていただきます。
- 映像は物件の一部を撮影したものです。物件の契約にあたっての最終判断はご自身の判断に基づいて行ってください。
- 仲介手数料について

アットホームは物件情報の適正化に努めております。
内容に誤りがある場合にはこちらへご連絡ください。