福岡県福岡市東区和白5丁目(和白駅)の賃貸:物件詳細
交通 所在地 |
駅徒歩 |
賃料 管理費等 |
敷金/保証金 礼金 |
間取り 面積 |
物件種目 築年月 |
|
JR香椎線/和白
福岡県福岡市東区和白5丁目
|
6分
|
11万円
なし
|
1ヶ月 / なし
2ヶ月
|
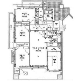
4LDK
95.37m²
|
賃貸マンション
2003年2月(築22年9ヶ月)
|
角部屋、IT重説対応物件
|
|
間取図
間取り
|
外観
外観
|
<
その他の画像
>
|
| 交通 | JR香椎線 和白駅 徒歩6分 |
|---|
| その他の交通 | 西鉄貝塚線 唐の原駅 徒歩22分 西鉄貝塚線 三苫駅 徒歩21分 |
| 所在地 |
福岡県福岡市東区和白5丁目
|
| 物件種目 |
賃貸マンション |
| 賃料 |
11万円 |
管理費等 |
なし |
| 敷金 / 保証金 |
1ヶ月 / なし |
礼金 |
2ヶ月 |
| 敷引 |
- |
保証金償却 |
- |
| その他一時金 |
退去時ハウスクリーニング:77,000円、鍵交換代等:38,500円~ |
保険等 |
要 2年 20,000円 |
| 維持費等 |
口座振替料:440円/月、24時間管理費:880円/月 |
クレジットカード決済 |
初期費用可 |
| 間取り |
4LDK(LDK13・洋室7・洋室6.7・洋室6・和室6) |
専有面積 |
95.37m² |
| 築年月 |
2003年2月(築22年9ヶ月)
|
階建 / 階 |
10階建 / 1階 |
| 建物構造 |
SRC |
総戸数 |
- |
| 主要採光面 |
|
駐車場 |
無 |
| バイク置き場 |
無 |
駐輪場 |
無 |
| 建物名・部屋番号 |
サンリヤン和白V番館 |
ペット |
-
|
| アピールポイント |
4LDKの分譲賃貸マンション!小・中学校や駅が近く人気なエリアです! |
| リフォーム履歴 |
- |
| リノベーション履歴 |
- |
| 備考 |
賃貸保証等:加入要(初回保証料:賃料総額の50%)
管理形態/管理員の勤務形態:-/-
IT重説対応物件
初期費用安め、ペット可能物件、デザイナーズ物件など、何でも当店にご相談下さい。来店予約はメールよりもお電話の方がスムーズな対応が可能です。
初期費用安め、ペット可能物件、デザイナーズ物件など、何でも当店にご相談下さい。来店予約はメールよりもお電話の方がスムーズな対応が可能です。
|
| エネルギー消費性能 |
- |
| 断熱性能 |
- |
| 目安光熱費 |
- |
| バス・トイレ |
バス・トイレ別、洗面所独立、洗面所、温水洗浄便座、トイレ |
| キッチン |
システムキッチン、3口以上コンロ、ガスコンロ付 |
| セキュリティー |
オートロック、モニター付インターホン、防犯カメラ、防犯用ガラス |
| 収納 |
クローゼット |
| 設備・サービス |
室内洗濯機置場、洗濯機置場、フローリング、都市ガス |
| TV・通信 |
ケーブルTV |
| その他 |
宅配BOX、専用庭、庭 |
| 契約期間 |
2年 |
現況 |
空家 |
| 条件等 |
- |
入居可能時期 |
即時 |
| 仲介手数料 |
1.1ヶ月 |
|
|
| 更新料 |
- |
物件番号 |
1142956710 |
| 情報公開日 |
2025年7月29日 |
次回更新予定日 |
2025年11月7日 |
| ケータイ用バーコード |
- スマートフォンでこの物件を見る
- スマートフォンからもこの物件をご覧になれます。
|
※「-」と表示されている項目については、情報提供会社にご確認ください。
| 周辺施設 |
グロッサリアトライアル和白店 |
| 距離 |
400m |
写真を見る |
| 周辺施設 |
ファミリーマート福岡和白五丁目店 |
| 距離 |
487m |
写真を見る |
| 周辺施設 |
マルキョウ和白店 |
| 距離 |
586m |
写真を見る |
| 周辺施設 |
サトー食鮮館和白店 |
| 距離 |
610m |
写真を見る |
ここから簡単にお問い合わせをすることができます。
(SSLでの暗号化での送信を希望されるお客さまは
こちら
よりお問い合わせください)
お問い合わせを行う前に
「個人情報の取り扱いについて」を必ずお読みください。
「個人情報の取り扱いについて」に同意いただいた場合は「上記にご同意の上 確認画面へ進む」のボタンをクリックしてください。
個人情報の取り扱いについて
皆さまが送付された個人情報はアットホーム(株)のサーバを経由し、お問い合わせ先の不動産会社にメールまたはFAXにて転送されるためアットホーム(株)にも保管されます。アットホーム(株)で保管された個人情報の取り扱いについては、【こちら】をご覧ください。
また、本画面でご記入いただいた個人情報は、お問い合わせ先の不動産会社でも保管します。 お問い合わせ先の不動産会社が保管する個人情報の取り扱いについては、不動産会社に直接お問い合わせください。
福岡県知事免許(6)第14254号 |
|---|
- 交通:
- JR鹿児島本線/福工大前駅
- 福岡県福岡市東区和白丘1丁目22-22
- TEL:
- 0120-606-441
- FAX:
- 092-605-6067
- 所属団体:
- (公社)福岡県宅地建物取引業協会会員(一社)九州不動産公正取引協議会加盟
取引態様:仲介  - 80005702
|
- スマートフォンで
この不動産会社を見る

|
- 提携サイト等より掲載されている物件情報につきましては、不動産会社詳細情報にリンクされていないものがあります。
- 物件に関するお問合せは、物件詳細ページの「情報提供会社」に表示されている不動産会社へ直接お願いいたします。
- 間取図は、現況を優先させていただきます。
- 映像は物件の一部を撮影したものです。物件の契約にあたっての最終判断はご自身の判断に基づいて行ってください。
- 仲介手数料について

アットホームは物件情報の適正化に努めております。
内容に誤りがある場合にはこちらへご連絡ください。