大阪府大阪市生野区勝山北2丁目(桃谷駅)の賃貸:物件詳細
交通 所在地 |
駅徒歩 |
賃料 管理費等 |
敷金/保証金 礼金 |
間取り 面積 |
物件種目 築年月 |
|
JR大阪環状線/桃谷
大阪府大阪市生野区勝山北2丁目
|
6分
|
6.75万円
5,000円
|
なし / なし
7万円
|
1K
30.09m²
|
賃貸アパート
2023年11月(築2年5ヶ月)
|
デザイナーズ、常時ゴミ出し可能、南向き、24時間換気システム、閑静な住宅街、IT重説対応物件、保証人不要
|
|
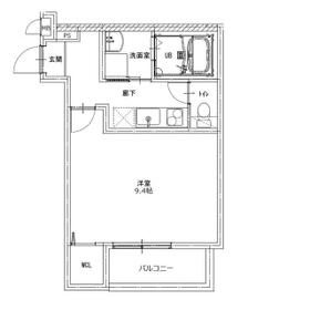
間取図
|
外観
|
<
その他の画像
>
|
| 交通 | JR大阪環状線 桃谷駅 徒歩6分 |
|---|
| その他の交通 | JR大阪環状線 寺田町駅 徒歩15分 近鉄大阪線 鶴橋駅 徒歩17分 |
| 所在地 |
大阪府大阪市生野区勝山北2丁目
|
| 物件種目 |
賃貸アパート |
| 賃料 |
6.75万円 |
管理費等 |
5,000円 |
| 敷金 / 保証金 |
なし / なし |
礼金 |
7万円 |
| 敷引 |
- |
保証金償却 |
- |
| その他一時金 |
ハウスクリーニング:33,000円、鍵交換代等:11,000円~ |
保険等 |
要 2年 15,000円 |
| 維持費等 |
- |
| 間取り |
1K(K・洋室9.4) |
専有面積 |
30.09m² |
| 築年月 |
2023年11月(築2年5ヶ月)
|
階建 / 階 |
3階建 / 2階 |
| 建物構造 |
木造 |
総戸数 |
- |
| 主要採光面 |
南 |
駐車場 |
近有 23,000円/月 |
| バイク置き場 |
無 |
駐輪場 |
有 |
| 建物名・部屋番号 |
プランドール勝山 |
ペット |
-
|
| アピールポイント |
何社も行かなくて大丈夫です!
当店ではお取扱いできないお部屋はありません☆
どのサイトのどの物件でもOK♪
ブックマークに入れてお持ちください!
まとめて一度にご案内★
LINEもOK!!
入居時期や初期費用、収入のことから連帯保証人様のことまで何でもお気軽にお問い合わせください。
分割払いも対応してます★ |
| リフォーム履歴 |
- |
| リノベーション履歴 |
- |
| 備考 |
賃貸保証等:加入要(初回契約時:50%、月額:1%)
管理形態/管理員の勤務形態:-/巡回
IT重説対応物件、管理人巡回
|
| エネルギー消費性能 |
- |
| 断熱性能 |
- |
| 目安光熱費 |
- |
| バス・トイレ |
バス・トイレ別、浴室乾燥機、シャワー付洗面化粧台、洗面所独立、洗面所、洗面台、シャワー、温水洗浄便座、トイレ |
| キッチン |
システムキッチン、独立型キッチン、IHクッキングヒーター、2口コンロ |
| セキュリティー |
モニター付オートロック、オートロック、モニター付インターホン、ディンプルキー、防犯カメラ |
| 収納 |
ウォークインクローゼット、収納スペース、クローゼット |
| 設備・サービス |
室内洗濯機置場、洗濯機置場、給湯、全居室フローリング、フローリング、都市ガス、エアコン、照明器具 |
| TV・通信 |
インターネット対応、インターネット使用料無料、ケーブルTV、CS、BS端子 |
| その他 |
宅配BOX、バルコニー、駐輪場 |
| 契約期間 |
1年 |
現況 |
居住中 |
| 条件等 |
- |
入居可能時期 |
相談 |
| 更新料 |
- |
物件番号 |
1143190920 |
| 情報公開日 |
2026年3月26日 |
次回更新予定日 |
2026年4月11日 |
| ケータイ用バーコード |
- スマートフォンでこの物件を見る
- スマートフォンからもこの物件をご覧になれます。
|
※「-」と表示されている項目については、情報提供会社にご確認ください。
| 周辺施設 |
業務スーパー桃谷店 |
| 距離 |
449m |
写真を見る |
| 周辺施設 |
サンディ桃谷店 |
| 距離 |
685m |
写真を見る |
| 周辺施設 |
万代桃谷駅前店 |
| 距離 |
768m |
写真を見る |
| 周辺施設 |
ライフ寺田町駅前店 |
| 距離 |
963m |
写真を見る |
| 周辺施設 |
ファミリーマート桃谷商店街東店 |
| 距離 |
422m |
写真を見る |
| 周辺施設 |
ファミリーマート小浦桃谷駅東店 |
| 距離 |
496m |
写真を見る |
| 周辺施設 |
セブンイレブン大阪桃谷3丁目店 |
| 距離 |
568m |
写真を見る |
| 周辺施設 |
セブンイレブン大阪勝山南4丁目店 |
| 距離 |
875m |
写真を見る |
ここから簡単にお問い合わせをすることができます。
(SSLでの暗号化での送信を希望されるお客さまは
こちら
よりお問い合わせください)
お問い合わせを行う前に
「個人情報の取り扱いについて」を必ずお読みください。
「個人情報の取り扱いについて」に同意いただいた場合は「上記にご同意の上 確認画面へ進む」のボタンをクリックしてください。
個人情報の取り扱いについて
皆さまが送付された個人情報はアットホーム(株)のサーバを経由し、お問い合わせ先の不動産会社にメールまたはFAXにて転送されるためアットホーム(株)にも保管されます。アットホーム(株)で保管された個人情報の取り扱いについては、【こちら】をご覧ください。
また、本画面でご記入いただいた個人情報は、お問い合わせ先の不動産会社でも保管します。 お問い合わせ先の不動産会社が保管する個人情報の取り扱いについては、不動産会社に直接お問い合わせください。
大阪府知事免許(2)第60273号 |
|---|
- 交通:
- 地下鉄御堂筋線/淀屋橋駅 徒歩4分
- 大阪府大阪市中央区平野町3丁目1-9 クラオビル1階
- TEL:
- 06-4256-3484
- FAX:
- 06-4256-3485
- 所属団体:
- (一社)大阪府宅地建物取引業協会会員(公社)近畿地区不動産公正取引協議会加盟
取引態様:仲介  - 50108821
|
- スマートフォンで
この不動産会社を見る

|
- 提携サイト等より掲載されている物件情報につきましては、不動産会社詳細情報にリンクされていないものがあります。
- 物件に関するお問合せは、物件詳細ページの「情報提供会社」に表示されている不動産会社へ直接お願いいたします。
- 間取図は、現況を優先させていただきます。
- 映像は物件の一部を撮影したものです。物件の契約にあたっての最終判断はご自身の判断に基づいて行ってください。
- 仲介手数料について

アットホームは物件情報の適正化に努めております。
内容に誤りがある場合にはこちらへご連絡ください。