東京都港区六本木7丁目(乃木坂駅)の賃貸:物件詳細
交通 所在地 |
駅徒歩 |
賃料 管理費等 |
敷金/保証金 礼金 |
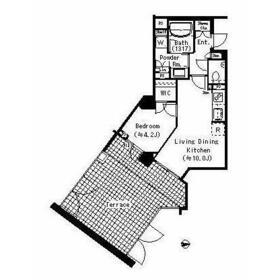
間取り 面積 |
物件種目 築年月 |
|
東京メトロ千代田線/乃木坂
東京都港区六本木7丁目
|
3分
|
23万円
なし
|
2ヶ月 / なし
1ヶ月
|
1LDK
38.72m²
|
賃貸マンション
2006年3月(築19年8ヶ月)
|
ペット相談、分譲タイプ、常時ゴミ出し可能、高齢者相談、二人入居可、24時間換気システム、IT重説対応物件
|
|
間取図
|
外観
|
<
その他の画像
>
|
| 交通 | 東京メトロ千代田線 乃木坂駅 徒歩3分 |
|---|
| その他の交通 | 東京メトロ日比谷線 六本木駅 徒歩10分 東京メトロ半蔵門線 青山一丁目駅 徒歩12分 |
| 所在地 |
東京都港区六本木7丁目
|
| 物件種目 |
賃貸マンション |
| 賃料 |
23万円 |
管理費等 |
なし |
| 敷金 / 保証金 |
2ヶ月 / なし |
礼金 |
1ヶ月 |
| 敷引 |
- |
保証金償却 |
- |
| その他一時金 |
なし |
保険等 |
要 2年 20,000円 |
| 維持費等 |
- |
クレジットカード決済 |
初期費用可 |
| 間取り |
1LDK |
専有面積 |
38.72m² |
| 築年月 |
2006年3月(築19年8ヶ月)
|
階建 / 階 |
地上5階地下1階建 / 1階 |
| 建物構造 |
RC |
総戸数 |
- |
| 主要採光面 |
|
駐車場 |
- |
| バイク置き場 |
- |
駐輪場 |
- |
| 建物名・部屋番号 |
|
ペット |
相談 |
| アピールポイント |
港区エリアでの住まいなら、住み心地も快適な「パークホームズ六本木乃木坂アーバンレジデンス」はいかがでしょうか。近くにはローソン 赤坂九丁目店(徒歩5分)がありちょっとした買い物に便利です。セキュリティ面は、TVインターホン・オートロックなどを設置しているので安全面でも優れております。収納はウォークインクロゼット・シューズボックスなど豊富なので、広々と空間を利用することも可能です。共用部には宅配ボックス・ゴミ出し24時間OKなどが揃っております。室内設備は浴室乾燥機・洗面所独立など大変充実しております。入居を急いでいる方、こちらの空室のお部屋であれば入居までの待ち時間も短縮できます。マンションタイプのお部屋です。こちらの物件でペットの飼育をご希望の際は、事前に飼育するペットの種類のご連絡をお願いします。専有面積は38.72平米。幅広い方に好評の全居室フローリングの物件になっております。 |
| リフォーム履歴 |
- |
| リノベーション履歴 |
- |
| 備考 |
賃貸保証等:加入要(初年度委託料:賃料等合計額の50%)
管理形態/管理員の勤務形態:-/日勤
IT重説対応物件、管理人日勤
★同タイプ・別階の内観写真を掲載している場合があります。図面と現況が異なる場合は現況を優先いたします。
室内設備は追い焚き・エアコン・CSなどが揃っているので、快適に過ごしやすいお部屋になります。こちらはマンションタイプになります。抗菌性に優れていて、扱いやすい材質のシステムキッチン付き。フローリングは木の持つ風合い、自然な暖かみが魅力です。不法投棄やいたずらを防止して入居者が快適に暮らせるように、防犯カメラがあります。お家の中でパソコンを快適に使える光回線を導入しています。広い部屋にお住みになりたい方は1LDKを検討してみてはいかがですか。このお部屋は38.72㎡です。
|
| エネルギー消費性能 |
- |
| 断熱性能 |
- |
| 目安光熱費 |
- |
| バス・トイレ |
バス・トイレ別、浴室乾燥機、追焚機能、洗面所独立、洗面所、シャワー、温水洗浄便座、トイレ |
| キッチン |
システムキッチン、3口以上コンロ、ガスコンロ可、グリル |
| セキュリティー |
モニター付オートロック、オートロック、モニター付インターホン、防犯カメラ |
| 収納 |
ウォークインクローゼット、収納スペース、クローゼット、シューズボックス |
| 設備・サービス |
床暖房、室内洗濯機置場、洗濯機置場、全居室フローリング、フローリング、都市ガス、エアコン、暖房、冷房、照明器具 |
| TV・通信 |
インターネット対応、光ファイバー、ケーブルTV、CS、BS端子 |
| その他 |
宅配BOX、ルーフバルコニー、バルコニー、エレベーター |
| 契約期間 |
3年 |
現況 |
空家 |
| 条件等 |
定期借家 |
入居可能時期 |
即時 |
| 更新料 |
- |
物件番号 |
1143323016 |
| 情報公開日 |
2025年10月9日 |
次回更新予定日 |
2025年11月4日 |
| ケータイ用バーコード |
- スマートフォンでこの物件を見る
- スマートフォンからもこの物件をご覧になれます。
|
※「-」と表示されている項目については、情報提供会社にご確認ください。
| 周辺施設 |
まいばすけっと 西麻布3丁目店 |
| 距離 |
1082m |
写真を見る |
| 周辺施設 |
ローソン 赤坂九丁目店 |
| 距離 |
392m |
写真を見る |
| 周辺施設 |
西麻布郵便局 |
| 距離 |
825m |
写真を見る |
ここから簡単にお問い合わせをすることができます。
(SSLでの暗号化での送信を希望されるお客さまは
こちら
よりお問い合わせください)
お問い合わせを行う前に
「個人情報の取り扱いについて」を必ずお読みください。
「個人情報の取り扱いについて」に同意いただいた場合は「上記にご同意の上 確認画面へ進む」のボタンをクリックしてください。
個人情報の取り扱いについて
皆さまが送付された個人情報はアットホーム(株)のサーバを経由し、お問い合わせ先の不動産会社にメールまたはFAXにて転送されるためアットホーム(株)にも保管されます。アットホーム(株)で保管された個人情報の取り扱いについては、【こちら】をご覧ください。
また、本画面でご記入いただいた個人情報は、お問い合わせ先の不動産会社でも保管します。 お問い合わせ先の不動産会社が保管する個人情報の取り扱いについては、不動産会社に直接お問い合わせください。
東京都知事免許(1)第109763号 |
|---|
- 交通:
- 東京メトロ有楽町線/銀座一丁目駅 徒歩3分
- 東京都中央区銀座1丁目5-1 Holon GinzaⅡ
- TEL:
- 03-5962-8933
- FAX:
- 03-5962-8933
- 所属団体:
- (公社)東京都宅地建物取引業協会会員(公社)首都圏不動産公正取引協議会加盟
取引態様:仲介  - 00275939
|
- スマートフォンで
この不動産会社を見る

|
- 提携サイト等より掲載されている物件情報につきましては、不動産会社詳細情報にリンクされていないものがあります。
- 物件に関するお問合せは、物件詳細ページの「情報提供会社」に表示されている不動産会社へ直接お願いいたします。
- 間取図は、現況を優先させていただきます。
- 映像は物件の一部を撮影したものです。物件の契約にあたっての最終判断はご自身の判断に基づいて行ってください。
- 仲介手数料について

アットホームは物件情報の適正化に努めております。
内容に誤りがある場合にはこちらへご連絡ください。