東京都渋谷区恵比寿西2丁目(恵比寿駅)の賃貸:物件詳細
交通 所在地 |
駅徒歩 |
賃料 管理費等 |
敷金/保証金 礼金 |
間取り 面積 |
物件種目 築年月 |
東京メトロ日比谷線/恵比寿
東京都渋谷区恵比寿西2丁目
|
7分
|
48.5万円
15,000円
|
1ヶ月 / なし
1ヶ月
|
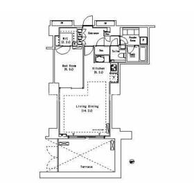
1LDK
64.43m²
|
賃貸マンション
2008年10月(築17年1ヶ月)
|
ペット相談、楽器相談、常時ゴミ出し可能、高齢者相談、二人入居可、24時間換気システム、IT重説対応物件、保証人不要
|
間取図
|
外観
|
<
その他の画像
>
|
交通 | 東京メトロ日比谷線 恵比寿駅 徒歩7分 |
---|
その他の交通 | JR山手線 恵比寿駅 徒歩8分 東急東横線 代官山駅 徒歩5分 |
所在地 |
東京都渋谷区恵比寿西2丁目
|
物件種目 |
賃貸マンション |
賃料 |
48.5万円 |
管理費等 |
15,000円 |
敷金 / 保証金 |
1ヶ月 / なし |
礼金 |
1ヶ月 |
敷引 |
- |
保証金償却 |
- |
その他一時金 |
室内清掃費用:120,484円、鍵交換代等:22,000円~ |
保険等 |
不要 |
維持費等 |
口座振替料:110円/月 |
クレジットカード決済 |
初期費用可 |
間取り |
1LDK |
専有面積 |
64.43m² |
築年月 |
2008年10月(築17年1ヶ月)
|
階建 / 階 |
地上11階地下1階建 / 1階 |
建物構造 |
RC |
総戸数 |
- |
主要採光面 |
東 |
駐車場 |
- |
バイク置き場 |
- |
駐輪場 |
- |
建物名・部屋番号 |
パークアクシス代官山 |
ペット |
相談 |
アピールポイント |
共用部には宅配ボックス・ゴミ出し24時間OKなどが揃っており、とても充実しています。室内設備は洗面所独立・浴室乾燥機など大変充実しております。セキュリティ面は、TVインターホン・オートロックなどを備え付けているので安心して暮らせます。収納はクロゼット・シューズボックスなど豊富なので、衣類や履き物の整理がしやすく便利です。一人暮らしの安心できる物件、防犯対策でカメラがついています。ペットと一緒に暮らしたい方にもうれしい、ペット相談可の物件です。インターネットをご利用いただけます。快適な生活環境を提供する、エアコン付き物件となっています。チューナー内蔵のTVをお持ちなら、契約のみでBS視聴可能です。駅より徒歩7分で帰宅できる、快適な環境が魅力的な物件です。楽器が好きな方にオススメな楽器可物件、ご相談ください。 |
リフォーム履歴 |
- |
リノベーション履歴 |
- |
備考 |
賃貸保証等:加入要(初回保証委託料(最低20,000円):月額賃料等の50%、 2年目以降:9,600円\\/年)
管理形態/管理員の勤務形態:-/巡回
IT重説対応物件、管理人巡回
★同タイプ・別階の内観写真を掲載している場合があります。図面と現況が異なる場合は現況を優先いたします。
共用部にはゴミ出し24時間OK・宅配ボックスなどが備わっておりとても充実しています。セキュリティ面は、TVインターホン・オートロックなど充実しているので、防犯対策もばっちりです。室内設備は浴室乾燥機・洗面所独立など豊富に揃っており、過ごしやすいお部屋になっております。収納はクロゼット・シューズボックスなどが備え付けられているので、衣類や日用品の収納に重宝します。この物件はCATV対応の為、簡単な契約で視聴可能です。生活を快適にする設備も充実のこの物件は月42万円です。この物件は駐輪場付きの物件です。レイアウトの幅も広がる1LDKのお部屋で楽しい生活。この物件はバルコニー付きでおすすめです。エアコン付きなので、室内の温度調整が簡単です。インターネットをご利用いただける物件です。
|
エネルギー消費性能 |
- |
断熱性能 |
- |
目安光熱費 |
- |
バス・トイレ |
バス・トイレ別、浴室乾燥機、追焚機能、洗面所独立、洗面所、シャワー、温水洗浄便座、トイレ |
キッチン |
システムキッチン、ガスコンロ可、グリル |
セキュリティー |
モニター付オートロック、オートロック、モニター付インターホン、防犯カメラ |
収納 |
収納スペース、クローゼット、シューズボックス |
設備・サービス |
床暖房、室内洗濯機置場、洗濯機置場、全居室フローリング、フローリング、都市ガス、エアコン、暖房、冷房 |
TV・通信 |
インターネット対応、光ファイバー、ケーブルTV、CS、BS端子、有線放送 |
その他 |
宅配BOX、バルコニー、エレベーター |
契約期間 |
2年 |
現況 |
居住中 |
条件等 |
- |
入居可能時期 |
相談 |
更新料 |
新賃料 1ヶ月 |
物件番号 |
1143325216 |
情報公開日 |
2025年10月9日 |
次回更新予定日 |
2025年10月23日 |
ケータイ用バーコード |
- スマートフォンでこの物件を見る
- スマートフォンからもこの物件をご覧になれます。
|
※「-」と表示されている項目については、情報提供会社にご確認ください。
周辺施設 |
鶯谷さくら幼稚園 |
距離 |
480m |
写真を見る |
周辺施設 |
ピーコックストア 代官山店 |
距離 |
440m |
写真を見る |
周辺施設 |
ココカラファイン 恵比寿店 |
距離 |
472m |
写真を見る |
周辺施設 |
渋谷桜丘郵便局 |
距離 |
708m |
写真を見る |
ここから簡単にお問い合わせをすることができます。
(SSLでの暗号化での送信を希望されるお客さまは
こちら
よりお問い合わせください)
お問い合わせを行う前に
「個人情報の取り扱いについて」を必ずお読みください。
「個人情報の取り扱いについて」に同意いただいた場合は「上記にご同意の上 確認画面へ進む」のボタンをクリックしてください。
個人情報の取り扱いについて
皆さまが送付された個人情報はアットホーム(株)のサーバを経由し、お問い合わせ先の不動産会社にメールまたはFAXにて転送されるためアットホーム(株)にも保管されます。アットホーム(株)で保管された個人情報の取り扱いについては、【こちら】をご覧ください。
また、本画面でご記入いただいた個人情報は、お問い合わせ先の不動産会社でも保管します。 お問い合わせ先の不動産会社が保管する個人情報の取り扱いについては、不動産会社に直接お問い合わせください。
東京都知事免許(1)第109763号 |
---|
- 交通:
- 東京メトロ有楽町線/銀座一丁目駅 徒歩3分
- 東京都中央区銀座1丁目5-1 Holon GinzaⅡ
- TEL:
- 03-5962-8933
- FAX:
- 03-5962-8933
- 所属団体:
- (公社)東京都宅地建物取引業協会会員(公社)首都圏不動産公正取引協議会加盟
取引態様:仲介  - 00275939
|
- スマートフォンで
この不動産会社を見る

|
- 提携サイト等より掲載されている物件情報につきましては、不動産会社詳細情報にリンクされていないものがあります。
- 物件に関するお問合せは、物件詳細ページの「情報提供会社」に表示されている不動産会社へ直接お願いいたします。
- 間取図は、現況を優先させていただきます。
- 映像は物件の一部を撮影したものです。物件の契約にあたっての最終判断はご自身の判断に基づいて行ってください。
- 仲介手数料について

アットホームは物件情報の適正化に努めております。
内容に誤りがある場合にはこちらへご連絡ください。