不動産 賃貸 マンション等の住宅情報:埼玉住まい情報


大阪府吹田市広芝町(江坂駅)の賃貸:物件詳細

  • 物件詳細
  • 情報の見方
  • 印刷用画面
交通
所在地
駅徒歩 賃料
管理費等
敷金/保証金
礼金
間取り
面積
物件種目
築年月

地下鉄御堂筋線/江坂

大阪府吹田市広芝町

3分

6.77万円

5,800円

なし / なし

7.35万円

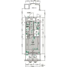
1K

20.80m²

賃貸マンション

2013年2月(築12年9ヶ月)

おすすめPOINT分譲タイプ、常時ゴミ出し可能、最上階、24時間換気システム、閑静な住宅街、外観タイル張り、IT重説対応物件、保証人不要

間取図

間取図

外観

外観

<
その他の画像
  • トイレ
  • キッチン
  • リビング
  • バス/シャワー
  • 室内
  • 玄関
  • バルコニー
  • 洗面
  • 設備
  • 収納
  • 設備
  • 眺望
  • 室内
  • キッチン
  • 駐車場
  • 外観
  • 共有部分
  • コンビニ
  • ショッピング施設
  • コンビニ
  • コンビニ
  • コンビニ
  • 郵便局
  • 販売店
  • 病院
>
    • とりあえず保存
    • お問い合わせ
    交通

    地下鉄御堂筋線 江坂駅 徒歩3分

    その他の交通

    阪急千里線 豊津駅 徒歩18分

    地下鉄御堂筋線 東三国駅 徒歩20分

    所在地 大阪府吹田市広芝町
    物件種目 賃貸マンション
    賃料 6.77万円 管理費等 5,800円
    敷金 / 保証金 なし / なし 礼金 7.35万円
    敷引 保証金償却
    その他一時金 エスリードクラブ入会金:19,800円、ハウスクリーニング代:44,000円 保険等 要 2年 18,000円
    維持費等 クレジットカード決済 初期費用可
    間取り 1K(洋室6畳) 専有面積 20.80m²
    築年月 2013年2月(築12年9ヶ月) 階建 / 階 13階建 / 12階
    建物構造 RC 総戸数
    主要採光面 駐車場 近有 22,000円/月
    バイク置き場 駐輪場
    建物名・部屋番号   ペット
    リフォーム履歴
    リノベーション履歴
    備考
    賃貸保証等:加入要(【エポス】初回保証料:総賃料の50% 月額保証料:1.5% 保証人なし可。保証料は初回家賃の引落時に口座から引き落とされます。)
    管理形態/管理員の勤務形態:-/-
    IT重説対応物件
    エネルギー消費性能
    断熱性能
    目安光熱費
    バス・トイレ バス・トイレ別、浴室暖房、浴室乾燥機、シャワー付洗面化粧台、洗面所独立、洗面台、シャワー、温水洗浄便座、トイレ
    キッチン オープンキッチン、システムキッチン、独立型キッチン、2口コンロ、ガスコンロ付
    セキュリティー モニター付オートロック、オートロック、モニター付インターホン、ディンプルキー、ダブルロックドア、防犯カメラ
    収納 全居室収納、収納スペース、クローゼット、シューズボックス
    設備・サービス 全居室エアコン、室内洗濯機置場、洗濯機置場、給湯、全居室フローリング、フローリング、都市ガス、エアコン、暖房、冷房、人感センサー付照明、ダウンライト
    TV・通信 インターネット対応、光ファイバー、CATVインターネット、ケーブルTV、CS、BS端子
    その他 宅配BOX、バイク置き場、バルコニー、駐輪場、エレベーター
    契約期間 2年 現況 空家
    条件等 入居可能時期 2025年11月下旬予定
    更新料 物件番号 1143361609
    情報公開日 2025年10月3日 次回更新予定日 2025年11月1日
    ケータイ用バーコード

    QRコード

    スマートフォンでこの物件を見る
    スマートフォンからもこの物件をご覧になれます。
    ※「-」と表示されている項目については、情報提供会社にご確認ください。

    この物件の周辺情報

    周辺施設 セブン-イレブン 吹田広芝町店
    距離 56m
    周辺施設 業務スーパー TAKENOKO 江坂店
    距離 43m
    周辺施設 ローソン ドラッグミック江坂広芝町店
    距離 205m
    周辺施設 ローソン 広芝店
    距離 214m
    周辺施設 セブンイレブン 江坂駅南店
    距離 307m
    周辺施設 吹田江の木郵便局
    距離 400m
    周辺施設 キリン堂 江坂店
    距離 279m
    周辺施設 井上病院
    距離 352m

    クイックお問い合わせ

    ここから簡単にお問い合わせをすることができます。
    (SSLでの暗号化での送信を希望されるお客さまは こちら よりお問い合わせください)

    お問い合わせ内容(必須)
    お名前(必須) 姓  名 
    メールアドレス(必須)
    ※携帯電話のメールアドレスをご入力される方はこちらをご確認ください
    電話番号(必須)
    - -

    ※入力いただいた電話番号へSMSまたは音声でパスワードをご連絡します。

    携帯電話の番号をご入力の方へ

    携帯電話の番号をご入力の方へ
    確認画面にて送信ボタンをクリックするとSMSが携帯電話に届きます。
    そのSMSに記載のパスワード(認証番号)を入力し、お問い合わせを完了してください。
    尚、SMSの送信者番号は 0005 202 760 となります。
    これはアットホームの固定番号です。

    備考欄 希望条件、物件案内希望日、質問などがございましたらご記入ください。
    お問い合わせを行う前に「個人情報の取り扱いについて」を必ずお読みください。
    「個人情報の取り扱いについて」に同意いただいた場合は「上記にご同意の上 確認画面へ進む」のボタンをクリックしてください。

    個人情報の取り扱いについて

    皆さまが送付された個人情報はアットホーム(株)のサーバを経由し、お問い合わせ先の不動産会社にメールまたはFAXにて転送されるためアットホーム(株)にも保管されます。アットホーム(株)で保管された個人情報の取り扱いについては、【こちら】をご覧ください。
    また、本画面でご記入いただいた個人情報は、お問い合わせ先の不動産会社でも保管します。 お問い合わせ先の不動産会社が保管する個人情報の取り扱いについては、不動産会社に直接お問い合わせください。

    情報提供会社

    情報提供会社

    (株)ライブデザイン江坂店

    国土交通大臣免許(1)第10464号

    交通:
    地下鉄御堂筋線/江坂駅 徒歩2分
    大阪府吹田市広芝町10-25 第2池上ビル2階D
    TEL:
    078-855-9599
    所属団体:
    (公社)全日本不動産協会会員
    (公社)近畿地区不動産公正取引協議会加盟

    取引態様:仲介

    • 会社情報
    • 50108863
    スマートフォンで
    この不動産会社を見る
    QRコード
    • とりあえず保存
    • お問い合わせ
    • 提携サイト等より掲載されている物件情報につきましては、不動産会社詳細情報にリンクされていないものがあります。
    • 物件に関するお問合せは、物件詳細ページの「情報提供会社」に表示されている不動産会社へ直接お願いいたします。
    • 間取図は、現況を優先させていただきます。
    • 映像は物件の一部を撮影したものです。物件の契約にあたっての最終判断はご自身の判断に基づいて行ってください。
    • 仲介手数料について仲介手数料

    アットホームは物件情報の適正化に努めております。 内容に誤りがある場合にはこちらへご連絡ください。

    【埼玉住まい情報】では、日本全国の物件から賃貸マンションや賃貸アパート・賃貸一戸建て等の賃貸住宅情報、新築マンション・分譲マンションや中古マンション等の売買マンション情報、新築一戸建てや中古一戸建てなどの戸建住宅、 土地など、総合的な不動産住宅情報検索サービスを提供致します。
    【埼玉住まい情報】から、選りすぐりの不動産物件を探してみましょう。

    【免責事項】
    このコーナーの運営はアットホーム株式会社(https://www.athome.co.jp/)が行っています。
    このコーナーに掲載している物件情報は、「アットホーム不動産情報ネットワーク」に加盟する不動産会社等(情報提供元)から提供されています。信頼性の高い情報提供が行えるよう、最大限の努力をしておりますが、その内容を保証するものではありません。 利用者のみなさまと各情報提供元との取引に起因する損害および情報が掲載されたことに起因する損害等については、株式会社イーシティ埼玉、およびアットホームは一切責任を負いません。
    各物件情報の内容や画像等はすべて現況を優先させていただきます。
    お取引等(お取引の準備、資金調達等を含みます)の際には、内容や契約条件等について、各情報提供元より十分な説明を受け、ご自身でご確認の上、判断してください。
    このコーナーへの物件情報のご掲載、その他不動産業務ソリューション等についての不動産会社様のお問合せはこちらからお願いいたします。

    物件画像: