東京都渋谷区恵比寿西2丁目(恵比寿駅)の賃貸:物件詳細
交通 所在地 |
駅徒歩 |
賃料 管理費等 |
敷金/保証金 礼金 |
間取り 面積 |
物件種目 築年月 |
|
JR山手線/恵比寿
東京都渋谷区恵比寿西2丁目
|
8分
|
48.5万円
15,000円
|
1ヶ月 / なし
1ヶ月
|
1LDK
64.43m²
|
賃貸マンション
2008年10月(築17年3ヶ月)
|
ペット相談、楽器相談、常時ゴミ出し可能、高齢者相談、二人入居可、IT重説対応物件、保証人不要
|
|
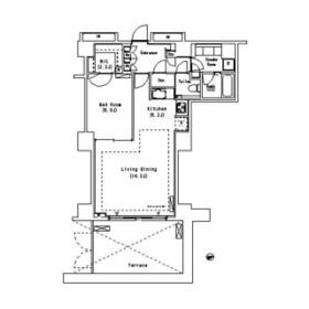
間取図
|
外観
外観もきれいです
|
<
その他の画像
>
|
| 交通 | JR山手線 恵比寿駅 徒歩8分 |
|---|
| その他の交通 | 東急東横線 代官山駅 徒歩5分 東京メトロ日比谷線 中目黒駅 徒歩13分 |
| 所在地 |
東京都渋谷区恵比寿西2丁目
|
| 物件種目 |
賃貸マンション |
| 賃料 |
48.5万円 |
管理費等 |
15,000円 |
| 敷金 / 保証金 |
1ヶ月 / なし |
礼金 |
1ヶ月 |
| 敷引 |
- |
保証金償却 |
- |
| その他一時金 |
室内清掃費用:120,484円、鍵交換代等:22,000円~ |
保険等 |
要 |
| 維持費等 |
口座振替事務手数料:110円/月 |
| 間取り |
1LDK(LD14.2、洋6.3、K5.2) |
専有面積 |
64.43m² |
| 築年月 |
2008年10月(築17年3ヶ月)
|
階建 / 階 |
地上11階地下1階建 / 1階 |
| 建物構造 |
RC |
総戸数 |
- |
| 主要採光面 |
東 |
駐車場 |
近有 45,000円/月 |
| バイク置き場 |
- |
駐輪場 |
有 |
| 建物名・部屋番号 |
パークアクシス代官山 |
ペット |
相談 |
| アピールポイント |
室内設備は洗面化粧台・浴室乾燥機・食器洗乾燥機などが揃っており、とても充実しています。セキュリティ面は、オートロック・TVインターホンなど充実しているので、防犯対策もばっちりです。共用部にはゴミ出し24時間OK・宅配ボックスなどが揃っております。付近にある2つの駅は、用途や行き先に応じて使い分けることができます。外装もおしゃれで快適な生活をおくることができるマンションです。3口コンロが付いているので、3つの料理を同時に進められて時短につながります。駅から徒歩8分の物件で、アクセス良好です。コートなども扱いやすいクロゼットが設置されています。床暖房付き物件ならば、下から温めることで暖かい空気が上昇するので部屋全体を温められます。共用部に防犯カメラがある、いざという時も録画内容を利用できる安心感があります。 |
| リフォーム履歴 |
- |
| リノベーション履歴 |
- |
| 備考 |
賃貸保証等:加入要(初回保証委託料(最低20,000円):月額賃料等の50%、 2年目以降:9,600円/年)
管理形態/管理員の勤務形態:-/巡回
IT重説対応物件、管理人巡回
セキュリティ面は、TVインターホン・オートロックなどを備え付けているので安心して暮らせます。室内設備は洗面所独立・浴室乾燥機・食器洗乾燥機などが揃っているので、快適に過ごしやすいお部屋になります。共用部には宅配ボックス・ゴミ出し24時間OKなどが揃っております。お湯を沸かし直せる追い焚き機能付きです。1LDKは部屋数、広さともに満足度の高い間取りです。BS・CSテレビ対応の物件なので数多くのチャンネルを見ることができます。転居先に住み心地も良いこちらの賃貸物件。充実した新生活を過ごしましょう。クローゼット付きのマンションです。2駅利用可能なマンションなので行動範囲も広がります。令和7年12月の入居期日指定ですので、急ぎご確認ください。
|
| エネルギー消費性能 |
- |
| 断熱性能 |
- |
| 目安光熱費 |
- |
| バス・トイレ |
バス・トイレ別、浴室乾燥機、追焚機能、洗面所独立、洗面所、温水洗浄便座、トイレ |
| キッチン |
システムキッチン、食器洗浄乾燥機、3口以上コンロ、ガスコンロ可、グリル |
| セキュリティー |
モニター付オートロック、オートロック、モニター付インターホン、ディンプルキー、ダブルロックドア、防犯カメラ |
| 収納 |
ウォークインクローゼット、収納スペース、クローゼット |
| 設備・サービス |
床暖房、室内洗濯機置場、洗濯機置場、全居室フローリング、フローリング、都市ガス、エアコン、暖房、冷房 |
| TV・通信 |
インターネット対応、CATVインターネット、ケーブルTV、CS、BS端子 |
| その他 |
宅配BOX、庭、駐輪場、テラス、エレベーター |
| 契約期間 |
2年 |
現況 |
居住中 |
| 条件等 |
- |
入居可能時期 |
指定有り2025年12月31日 |
| 更新料 |
新賃料 1ヶ月 |
物件番号 |
1143580216 |
| 情報公開日 |
2025年12月11日 |
次回更新予定日 |
2025年12月25日 |
| ケータイ用バーコード |
- スマートフォンでこの物件を見る
- スマートフォンからもこの物件をご覧になれます。
|
※「-」と表示されている項目については、情報提供会社にご確認ください。
| 周辺施設 |
maruetsu(マルエツ) プチ 渋谷鶯谷町店 |
| 距離 |
872m |
写真を見る |
| 周辺施設 |
セブンイレブン 代官山駅東店 |
| 距離 |
325m |
写真を見る |
| 周辺施設 |
ニトリ 中目黒店 |
| 距離 |
1069m |
写真を見る |
| 周辺施設 |
キャンドゥ ピーコックストア恵比寿店 |
| 距離 |
733m |
写真を見る |
| 周辺施設 |
スターバックスコーヒー 中目黒山手通り店 |
| 距離 |
1226m |
写真を見る |
| 周辺施設 |
原トリッパ製造所 |
| 距離 |
1367m |
写真を見る |
ここから簡単にお問い合わせをすることができます。
(SSLでの暗号化での送信を希望されるお客さまは
こちら
よりお問い合わせください)
お問い合わせを行う前に
「個人情報の取り扱いについて」を必ずお読みください。
「個人情報の取り扱いについて」に同意いただいた場合は「上記にご同意の上 確認画面へ進む」のボタンをクリックしてください。
個人情報の取り扱いについて
皆さまが送付された個人情報はアットホーム(株)のサーバを経由し、お問い合わせ先の不動産会社にメールまたはFAXにて転送されるためアットホーム(株)にも保管されます。アットホーム(株)で保管された個人情報の取り扱いについては、【こちら】をご覧ください。
また、本画面でご記入いただいた個人情報は、お問い合わせ先の不動産会社でも保管します。 お問い合わせ先の不動産会社が保管する個人情報の取り扱いについては、不動産会社に直接お問い合わせください。
東京都知事免許(1)第107337号 |
|---|
- 交通:
- JR山手線/新宿駅 徒歩1分
- 東京都新宿区西新宿1丁目3-3 品川ステーションビル新宿5F
- TEL:
- 03-6258-0867
- 所属団体:
- (公社)東京都宅地建物取引業協会会員(公社)首都圏不動産公正取引協議会加盟
取引態様:仲介  - 00278932
|
- スマートフォンで
この不動産会社を見る

|
- 提携サイト等より掲載されている物件情報につきましては、不動産会社詳細情報にリンクされていないものがあります。
- 物件に関するお問合せは、物件詳細ページの「情報提供会社」に表示されている不動産会社へ直接お願いいたします。
- 間取図は、現況を優先させていただきます。
- 映像は物件の一部を撮影したものです。物件の契約にあたっての最終判断はご自身の判断に基づいて行ってください。
- 仲介手数料について

アットホームは物件情報の適正化に努めております。
内容に誤りがある場合にはこちらへご連絡ください。