神奈川県横浜市港北区小机町(小机駅)の賃貸:物件詳細
交通 所在地 |
駅徒歩 |
賃料 管理費等 |
敷金/保証金 礼金 |
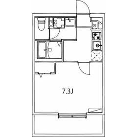
間取り 面積 |
物件種目 築年月 |
|
JR横浜線/小机
神奈川県横浜市港北区小机町
|
3分
|
7.6万円
4,000円
|
1ヶ月 / なし
1ヶ月
|
1K
24.22m²
|
賃貸マンション
2023年8月(築2年5ヶ月)
|
南向き、24時間換気システム、IT重説対応物件、保証人不要
|
|
間取図
|
外観
|
<
その他の画像
>
|
| 交通 | JR横浜線 小机駅 徒歩3分 |
|---|
| その他の交通 | JR横浜線 新横浜駅 徒歩27分 |
| 所在地 |
神奈川県横浜市港北区小机町
|
| 物件種目 |
賃貸マンション |
| 賃料 |
7.6万円 |
管理費等 |
4,000円 |
| 敷金 / 保証金 |
1ヶ月 / なし |
礼金 |
1ヶ月 |
| 敷引 |
- |
保証金償却 |
- |
| その他一時金 |
なし、鍵交換代等:22,000円~ |
保険等 |
要 2年 18,000円 |
| 維持費等 |
- |
| 間取り |
1K(洋7.3) |
専有面積 |
24.22m² |
| 築年月 |
2023年8月(築2年5ヶ月)
|
階建 / 階 |
3階建 / 1階 |
| 建物構造 |
鉄骨造 |
総戸数 |
- |
| 主要採光面 |
南 |
駐車場 |
近有 22,000円/月 |
| バイク置き場 |
無 |
駐輪場 |
有 無料 |
| 建物名・部屋番号 |
ヴァンベール小机 |
ペット |
-
|
| アピールポイント |
収納はシューズボックス・クロゼットなど豊富なので、広々と空間を利用することも可能です。共用部には宅配ボックスを設置しているため、家で何時間も待機する必要がありません。室内設備は洗面所独立・浴室乾燥機など充実した設備を備え付けています。モニター越しに来訪者を確認し、インターホンを通じて室内から会話することができます。駐車場は物件から約200mです。駅から徒歩3分というアクセス良好な駅近物件はいかがですか。家賃10万円以下の物件をお探しのお客様におすすめの物件です。オシャレな照明付きの物件はとてもニーズがあります。防犯対策もバッチリなマンションタイプの物件です。インターネットが無料であるため、インターネット回線の契約が不要で、解約の手間がかからず仕事や家事で忙しい方にもおすすめです。自由にインテリアを楽しめる、フローリングのお部屋です。 |
| リフォーム履歴 |
- |
| リノベーション履歴 |
- |
| 備考 |
賃貸保証等:加入要(初回時賃料総額40%・月々1%)
管理形態/管理員の勤務形態:-/-
バルコニー:4.18m²
IT重説対応物件
お部屋探しは横浜駅徒歩5分のみらい不動産にお任せください。
お部屋探しは横浜・川崎エリアに特化した弊社にお任せください。物件の詳細やご相談は公式LINEからスタッフとやりとり可能です。お急ぎの方はお電話にてお問い合わせください。
※退去時、ルームクリーニング費用(48,000円+税)/エアコンクリーニング費用(15,000円+税/台)は借主負担となります。※24時間駆け付けサービス:加入必須19,800円(税込)/2年(返金不可)
トラブルサポート24(2年):19,800円/年
|
| エネルギー消費性能 |
- |
| 断熱性能 |
- |
| 目安光熱費 |
- |
| バス・トイレ |
バス・トイレ別、浴室乾燥機、シャワー付洗面化粧台、洗面所独立、洗面所、温水洗浄便座、トイレ |
| キッチン |
システムキッチン、独立型キッチン、2口コンロ、ガスコンロ可 |
| セキュリティー |
モニター付インターホン、ディンプルキー、ダブルロックドア |
| 収納 |
収納スペース、クローゼット、シューズボックス |
| 設備・サービス |
室内洗濯機置場、洗濯機置場、プロパンガス給湯、給湯、全居室フローリング、フローリング、クッションフロア、プロパンガス、エアコン、ダウンライト、照明器具 |
| TV・通信 |
インターネット使用料無料 |
| その他 |
宅配BOX、バルコニー、駐輪場 |
| 契約期間 |
2年 |
現況 |
空家 |
| 条件等 |
- |
入居可能時期 |
即時 |
| 更新料 |
新賃料 1ヶ月 |
物件番号 |
1143619416 |
| 情報公開日 |
2025年10月9日 |
次回更新予定日 |
2025年12月15日 |
| ケータイ用バーコード |
- スマートフォンでこの物件を見る
- スマートフォンからもこの物件をご覧になれます。
|
※「-」と表示されている項目については、情報提供会社にご確認ください。
| 周辺施設 |
日産スタジアム(横浜国際総合競技場) |
| 距離 |
1401m |
写真を見る |
| 周辺施設 |
セブン-イレブン 横浜小机町店 |
| 距離 |
681m |
写真を見る |
| 周辺施設 |
しゃぶ葉 新横浜店 |
| 距離 |
1227m |
写真を見る |
| 周辺施設 |
FUJI 鳥山店 |
| 距離 |
1465m |
写真を見る |
| 周辺施設 |
【N 】ニトリ新横浜店 |
| 距離 |
1470m |
写真を見る |
| 周辺施設 |
コジマ×ビックカメラ 港北インター店 |
| 距離 |
2088m |
写真を見る |
ここから簡単にお問い合わせをすることができます。
(SSLでの暗号化での送信を希望されるお客さまは
こちら
よりお問い合わせください)
お問い合わせを行う前に
「個人情報の取り扱いについて」を必ずお読みください。
「個人情報の取り扱いについて」に同意いただいた場合は「上記にご同意の上 確認画面へ進む」のボタンをクリックしてください。
個人情報の取り扱いについて
皆さまが送付された個人情報はアットホーム(株)のサーバを経由し、お問い合わせ先の不動産会社にメールまたはFAXにて転送されるためアットホーム(株)にも保管されます。アットホーム(株)で保管された個人情報の取り扱いについては、【こちら】をご覧ください。
また、本画面でご記入いただいた個人情報は、お問い合わせ先の不動産会社でも保管します。 お問い合わせ先の不動産会社が保管する個人情報の取り扱いについては、不動産会社に直接お問い合わせください。
神奈川県知事免許(1)第31847号 |
|---|
- 交通:
- 東急東横線/横浜駅
- 神奈川県横浜市西区北幸2丁目10-42 寺内ビル9F
- TEL:
- 045-322-2552
- FAX:
- 045-322-2553
- 所属団体:
- (公社)神奈川県宅地建物取引業協会会員(公社)首都圏不動産公正取引協議会加盟
取引態様:仲介  - 00273956
|
- スマートフォンで
この不動産会社を見る

|
- 提携サイト等より掲載されている物件情報につきましては、不動産会社詳細情報にリンクされていないものがあります。
- 物件に関するお問合せは、物件詳細ページの「情報提供会社」に表示されている不動産会社へ直接お願いいたします。
- 間取図は、現況を優先させていただきます。
- 映像は物件の一部を撮影したものです。物件の契約にあたっての最終判断はご自身の判断に基づいて行ってください。
- 仲介手数料について

アットホームは物件情報の適正化に努めております。
内容に誤りがある場合にはこちらへご連絡ください。