東京都豊島区東池袋2丁目(北池袋駅)の賃貸:物件詳細
交通 所在地 |
駅徒歩 |
賃料 管理費等 |
敷金/保証金 礼金 |
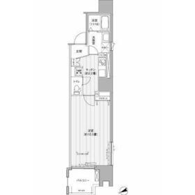
間取り 面積 |
物件種目 築年月 |
|
東武東上線/北池袋
東京都豊島区東池袋2丁目
|
14分
|
13万円
15,000円
|
1ヶ月 / なし
1ヶ月
|
1K
34.44m²
|
賃貸マンション
2013年8月(築12年7ヶ月)
|
|
間取図
|
外観
落ち着いた雰囲気の外観です
|
その他の画像
|
| 交通 | 東武東上線 北池袋駅 徒歩14分 |
|---|
| その他の交通 | JR山手線 池袋駅 徒歩12分 東京メトロ有楽町線 東池袋駅 徒歩14分 |
| 所在地 |
東京都豊島区東池袋2丁目
|
| 物件種目 |
賃貸マンション |
| 賃料 |
13万円 |
管理費等 |
15,000円 |
| 敷金 / 保証金 |
1ヶ月 / なし |
礼金 |
1ヶ月 |
| 敷引 |
- |
保証金償却 |
- |
| その他一時金 |
なし、鍵交換代等:22,000円~ |
保険等 |
要 2年 20,000円 |
| 維持費等 |
- |
| 間取り |
1K(K2.5、洋12) |
専有面積 |
34.44m² |
| 築年月 |
2013年8月(築12年7ヶ月)
|
階建 / 階 |
14階建 / 9階 |
| 建物構造 |
RC |
総戸数 |
- |
| 主要採光面 |
南東 |
駐車場 |
- |
| バイク置き場 |
- |
駐輪場 |
- |
| 建物名・部屋番号 |
アクシス池袋 905 |
ペット |
-
|
| アピールポイント |
★弊社では大手ハウスメーカー施工の安心できる建物をご紹介可能です★需要が高いペットと一緒に暮らせる「ペット共生マンション」や今話題の「売電可能(ZEH)マンション」などの幅広いコンセプト物件を埼玉県及び東京都の範囲でご紹介が可能ですのでお気軽にお問い合わせください★ |
| リフォーム履歴 |
- |
| リノベーション履歴 |
- |
| 備考 |
管理形態/管理員の勤務形態:-/巡回
管理人巡回
★お問い合わせの際には詳しいご希望条件を記載していただくとピンポイントに類似物件のご紹介が可能です★
スタッフ一同、お客様からのお問合せを心よりお待ちしております★
|
| エネルギー消費性能 |
- |
| 断熱性能 |
- |
| 目安光熱費 |
- |
| バス・トイレ |
バス・トイレ別、洗面所独立、洗面所、洗面台、シャワー、温水洗浄便座、トイレ |
| キッチン |
システムキッチン、2口コンロ、ガスコンロ可 |
| セキュリティー |
モニター付オートロック、オートロック、モニター付インターホン、防犯カメラ |
| 収納 |
収納スペース、クローゼット、シューズボックス |
| 設備・サービス |
室内洗濯機置場、洗濯機置場、フローリング、エアコン |
| TV・通信 |
インターネット対応、光ファイバー、ケーブルTV、BS端子 |
| その他 |
宅配BOX、バルコニー、エレベーター |
| 契約期間 |
2年 |
現況 |
空家 |
| 条件等 |
- |
入居可能時期 |
相談 |
| 更新料 |
- |
物件番号 |
1143752522 |
| 情報公開日 |
2026年2月16日 |
次回更新予定日 |
2026年3月6日 |
| ケータイ用バーコード |
- スマートフォンでこの物件を見る
- スマートフォンからもこの物件をご覧になれます。
|
※「-」と表示されている項目については、情報提供会社にご確認ください。
ここから簡単にお問い合わせをすることができます。
(SSLでの暗号化での送信を希望されるお客さまは
こちら
よりお問い合わせください)
お問い合わせを行う前に
「個人情報の取り扱いについて」を必ずお読みください。
「個人情報の取り扱いについて」に同意いただいた場合は「上記にご同意の上 確認画面へ進む」のボタンをクリックしてください。
個人情報の取り扱いについて
皆さまが送付された個人情報はアットホーム(株)のサーバを経由し、お問い合わせ先の不動産会社にメールまたはFAXにて転送されるためアットホーム(株)にも保管されます。アットホーム(株)で保管された個人情報の取り扱いについては、【こちら】をご覧ください。
また、本画面でご記入いただいた個人情報は、お問い合わせ先の不動産会社でも保管します。 お問い合わせ先の不動産会社が保管する個人情報の取り扱いについては、不動産会社に直接お問い合わせください。
国土交通大臣免許(7)第5417号 |
|---|
- 交通:
- JR山手線/池袋駅 徒歩1分
- 東京都豊島区東池袋1丁目3-6 三治ビル3F
- TEL:
- 03-3985-2101
- FAX:
- 03-3985-1551
- 所属団体:
- (公社)全日本不動産協会会員不動産公正取引協議会加盟
取引態様:仲介  - 00009385
|
- スマートフォンで
この不動産会社を見る

|
- 提携サイト等より掲載されている物件情報につきましては、不動産会社詳細情報にリンクされていないものがあります。
- 物件に関するお問合せは、物件詳細ページの「情報提供会社」に表示されている不動産会社へ直接お願いいたします。
- 間取図は、現況を優先させていただきます。
- 映像は物件の一部を撮影したものです。物件の契約にあたっての最終判断はご自身の判断に基づいて行ってください。
- 仲介手数料について

アットホームは物件情報の適正化に努めております。
内容に誤りがある場合にはこちらへご連絡ください。