不動産 賃貸 マンション等の住宅情報:埼玉住まい情報


兵庫県姫路市忍町(余部駅)の賃貸:物件詳細

  • 物件詳細
  • 情報の見方
  • 印刷用画面
交通
所在地
駅徒歩 賃料
管理費等
敷金/保証金
礼金
間取り
面積
物件種目
築年月

JR姫新線/余部 新着

兵庫県姫路市忍町

17分

25万円

なし

25万円 / なし

50万円

2SLDK

81.13m²

賃貸マンション

2024年2月(築1年9ヶ月)
未入居

おすすめPOINT楽器相談、分譲タイプ、南向き、高齢者相談、二人入居可、24時間セキュリティー、閑静な住宅街、IT重説対応物件

おすすめコメント  スタッフ: 北口 駿

お子様がのびのび遊べる広さの物件!オススメです♪

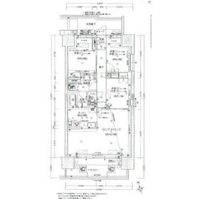
間取図

間取図

外観

外観

<
その他の画像
  • リビング
  • キッチン
  • バス/シャワー
  • 室内
  • トイレ
  • 洗面
  • 収納
  • バルコニー
  • 玄関
  • その他
  • 設備
  • 眺望
  • その他
  • エントランス
  • 駐車場
  • 共有部分
  • リビング
  • キッチン
  • バス/シャワー
  • 室内
  • 設備
  • その他
  • 小学校
  • 中学校
  • 病院
  • その他
  • 小学校
  • 中学校
>
    • とりあえず保存
    • お問い合わせ
    交通

    JR姫新線 余部駅 徒歩17分

    その他の交通

    JR姫新線 太市駅 徒歩49分

    JR姫新線 播磨高岡駅 徒歩51分

    所在地 兵庫県姫路市忍町
    物件種目 賃貸マンション
    賃料 25万円 管理費等 なし
    敷金 / 保証金 25万円 / なし 礼金 50万円
    敷引 実費 保証金償却
    その他一時金 クリーニング費:98,010円 保険等
    維持費等 クレジットカード決済 初期費用可
    間取り 2SLDK(LD16.5 K3.6 洋5.1 6 6.6) 専有面積 81.13m²
    築年月 2024年2月(築1年9ヶ月) 未入居 階建 / 階 15階建 / 9階
    建物構造 RC 総戸数
    主要採光面 駐車場 有 18,700円/月
    バイク置き場 駐輪場
    建物名・部屋番号 ウエリス姫路 507号室 907 ペット
    リフォーム履歴
    リノベーション履歴
    備考
    管理形態/管理員の勤務形態:-/-
    IT重説対応物件
    初期費用の分割可能!クレジットカード決済可(分割最大24回払いOK)☆現地近く待ち合わせにてご案内も可!
    エネルギー消費性能
    断熱性能
    目安光熱費
    バス・トイレ ミストサウナ、バス・トイレ別、浴室乾燥機、追焚機能、シャワー付洗面化粧台、洗面所独立、温水洗浄便座
    キッチン システムキッチン、食器洗浄乾燥機、ディスポーザー、3口以上コンロ、ガスコンロ付
    セキュリティー オートロック、モニター付インターホン
    収納 シューズボックス
    設備・サービス 床暖房、室内洗濯機置場、フローリング、都市ガス、エアコン
    TV・通信 インターネット使用料無料、CS
    その他 宅配BOX、バイク置き場、バルコニー、駐輪場
    契約期間 2年 現況 空家
    条件等 入居可能時期 即時
    更新料 なし 物件番号 1144134503
    情報公開日 2025年10月19日 次回更新予定日 2025年11月2日
    ケータイ用バーコード

    QRコード

    スマートフォンでこの物件を見る
    スマートフォンからもこの物件をご覧になれます。
    ※「-」と表示されている項目については、情報提供会社にご確認ください。

    この物件の周辺情報

    周辺施設 姫路市立船場小学校
    距離 462m
    周辺施設 姫路市立琴陵中学校
    距離 6324m
    周辺施設 医療法人財団清良会書写病院
    距離 1256m
    周辺施設 エレベーター
    距離 10m
    周辺施設 姫路市立白鷺小中学校
    距離 6785m
    周辺施設 姫路市立白鷺小中学校
    距離 6785m

    クイックお問い合わせ

    ここから簡単にお問い合わせをすることができます。
    (SSLでの暗号化での送信を希望されるお客さまは こちら よりお問い合わせください)

    お問い合わせ内容(必須)
    お名前(必須) 姓  名 
    メールアドレス(必須)
    ※携帯電話のメールアドレスをご入力される方はこちらをご確認ください
    電話番号(必須)
    - -

    ※入力いただいた電話番号へSMSまたは音声でパスワードをご連絡します。

    携帯電話の番号をご入力の方へ

    携帯電話の番号をご入力の方へ
    確認画面にて送信ボタンをクリックするとSMSが携帯電話に届きます。
    そのSMSに記載のパスワード(認証番号)を入力し、お問い合わせを完了してください。
    尚、SMSの送信者番号は 0005 202 760 となります。
    これはアットホームの固定番号です。

    備考欄 希望条件、物件案内希望日、質問などがございましたらご記入ください。
    お問い合わせを行う前に「個人情報の取り扱いについて」を必ずお読みください。
    「個人情報の取り扱いについて」に同意いただいた場合は「上記にご同意の上 確認画面へ進む」のボタンをクリックしてください。

    個人情報の取り扱いについて

    皆さまが送付された個人情報はアットホーム(株)のサーバを経由し、お問い合わせ先の不動産会社にメールまたはFAXにて転送されるためアットホーム(株)にも保管されます。アットホーム(株)で保管された個人情報の取り扱いについては、【こちら】をご覧ください。
    また、本画面でご記入いただいた個人情報は、お問い合わせ先の不動産会社でも保管します。 お問い合わせ先の不動産会社が保管する個人情報の取り扱いについては、不動産会社に直接お問い合わせください。

    情報提供会社

    情報提供会社

    (株)SMILEXIA 姫路店

    兵庫県知事免許(1)第451764号

    交通:
    山陽電鉄本線/山陽姫路駅 徒歩20分
    兵庫県姫路市東雲町1丁目25 相原ビルF
    TEL:
    079-292-1103
    FAX:
    079-292-1104
    所属団体:
    (公社)全日本不動産協会会員
    (公社)近畿地区不動産公正取引協議会加盟

    取引態様:仲介

    • 会社情報
    • 50110545
    スマートフォンで
    この不動産会社を見る
    QRコード
    • とりあえず保存
    • お問い合わせ
    • 提携サイト等より掲載されている物件情報につきましては、不動産会社詳細情報にリンクされていないものがあります。
    • 物件に関するお問合せは、物件詳細ページの「情報提供会社」に表示されている不動産会社へ直接お願いいたします。
    • 間取図は、現況を優先させていただきます。
    • 映像は物件の一部を撮影したものです。物件の契約にあたっての最終判断はご自身の判断に基づいて行ってください。
    • 仲介手数料について仲介手数料

    アットホームは物件情報の適正化に努めております。 内容に誤りがある場合にはこちらへご連絡ください。

    【埼玉住まい情報】では、日本全国の物件から賃貸マンションや賃貸アパート・賃貸一戸建て等の賃貸住宅情報、新築マンション・分譲マンションや中古マンション等の売買マンション情報、新築一戸建てや中古一戸建てなどの戸建住宅、 土地など、総合的な不動産住宅情報検索サービスを提供致します。
    【埼玉住まい情報】から、選りすぐりの不動産物件を探してみましょう。

    【免責事項】
    このコーナーの運営はアットホーム株式会社(https://www.athome.co.jp/)が行っています。
    このコーナーに掲載している物件情報は、「アットホーム不動産情報ネットワーク」に加盟する不動産会社等(情報提供元)から提供されています。信頼性の高い情報提供が行えるよう、最大限の努力をしておりますが、その内容を保証するものではありません。 利用者のみなさまと各情報提供元との取引に起因する損害および情報が掲載されたことに起因する損害等については、株式会社イーシティ埼玉、およびアットホームは一切責任を負いません。
    各物件情報の内容や画像等はすべて現況を優先させていただきます。
    お取引等(お取引の準備、資金調達等を含みます)の際には、内容や契約条件等について、各情報提供元より十分な説明を受け、ご自身でご確認の上、判断してください。
    このコーナーへの物件情報のご掲載、その他不動産業務ソリューション等についての不動産会社様のお問合せはこちらからお願いいたします。

    物件画像: