東京都中央区勝どき4丁目(勝どき駅)の賃貸:物件詳細
交通 所在地 |
駅徒歩 |
賃料 管理費等 |
敷金/保証金 礼金 |
間取り 面積 |
物件種目 築年月 |
都営大江戸線/勝どき
東京都中央区勝どき4丁目
|
2分
|
38.2万円
なし
|
1ヶ月 / なし
2ヶ月
|
2LDK
58.72m²
|
賃貸マンション
2023年8月(築2年3ヶ月)
|
ペット相談、楽器相談、分譲タイプ、フロントサービス、常時ゴミ出し可能、高齢者相談、二人入居可、免震構造、制震構造、管理人常駐、IT重説対応物件、保証人不要
|
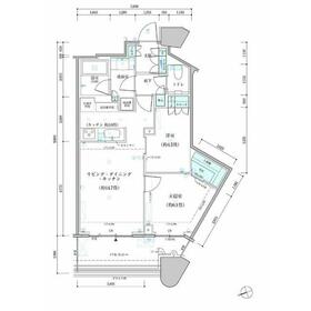
間取図
|
外観
物件の外観です
|
<
その他の画像
>
|
交通 | 都営大江戸線 勝どき駅 徒歩2分 |
---|
その他の交通 | 東京メトロ有楽町線 月島駅 徒歩16分 東京メトロ日比谷線 築地駅 徒歩20分 |
所在地 |
東京都中央区勝どき4丁目
|
物件種目 |
賃貸マンション |
賃料 |
38.2万円 |
管理費等 |
なし |
敷金 / 保証金 |
1ヶ月 / なし |
礼金 |
2ヶ月 |
敷引 |
- |
保証金償却 |
- |
その他一時金 |
室内清掃費用:109,806円、鍵交換代等:33,000円~ |
保険等 |
要 |
維持費等 |
口座振替事務手数料:110円/月 |
間取り |
2LDK(LDK14.7、洋6.1、洋4.5) |
専有面積 |
58.72m² |
築年月 |
2023年8月(築2年3ヶ月)
|
階建 / 階 |
58階建 / 10階 |
建物構造 |
RC |
総戸数 |
- |
主要採光面 |
西 |
駐車場 |
近有 35,000円/月 |
バイク置き場 |
- |
駐輪場 |
有 550円/月 |
建物名・部屋番号 |
パークタワー勝どき サウス |
ペット |
相談 |
アピールポイント |
送り迎えも楽々。さわやか保育園勝どき6丁目分園まで徒歩2分です。セキュリティ面は、TVインターホン・オートロックなどを設置しているので安全面でも優れております。共用部には宅配ボックス・ゴミ出し24時間OKなどが備わっておりとても充実しています。室内設備は浴室乾燥機・洗面所独立など豊富に揃っており、過ごしやすいお部屋になっております。2025年11月にご入居可能予定です。地上58階建ての物件です。BS、CSでは海外番組も視聴可能なのでとても楽しめます。58.72平米のお部屋です。パソコンを快適に使いたい方に、光回線を繋いでいる物件です。追い焚き機能付きの物件です。 |
リフォーム履歴 |
- |
リノベーション履歴 |
- |
備考 |
賃貸保証等:加入要(初回 賃料等総額の50%~)
管理形態/管理員の勤務形態:-/常駐
IT重説対応物件
共用部には宅配ボックス・ゴミ出し24時間OKなどが揃っており、とても充実しています。セキュリティ面は、オートロック・TVインターホンなど充実しているので安心して生活できます。室内設備は浴室乾燥機・洗面所独立などが揃っており、とても充実しています。移動距離が短くてすむ、敷地内ごみ置き場です。ニーズの高い、2023年築の物件で、オシャレな室内が魅力的。お部屋の広さも58.72平米あり、快適な暮らしができます。バルコニーをご活用いただけます。お湯を温め直せる追い焚き機能付きです。ぜひご覧いただきたい賃貸物件です。造りとデザインに関して、自信をもって情報を提供できるマンションです。
|
エネルギー消費性能 |
- |
断熱性能 |
- |
目安光熱費 |
- |
バス・トイレ |
バス・トイレ別、浴室乾燥機、オートバス、追焚機能、洗面所独立、洗面所、温水洗浄便座、トイレ |
キッチン |
カウンターキッチン、システムキッチン、3口以上コンロ、ガスコンロ可、グリル |
セキュリティー |
モニター付オートロック、オートロック、モニター付インターホン、ディンプルキー、ダブルロックドア、防犯カメラ |
収納 |
ウォークインクローゼット、収納スペース、クローゼット |
設備・サービス |
床暖房、室内洗濯機置場、洗濯機置場、全居室フローリング、フローリング、都市ガス、エアコン、暖房、冷房 |
TV・通信 |
インターネット対応、光ファイバー、CATVインターネット、ケーブルTV、CS、BS端子 |
その他 |
宅配BOX、共用シアタールーム、エレベーター2基以上、共用ゲストルーム、バルコニー、駐輪場 |
契約期間 |
2年 |
現況 |
居住中 |
条件等 |
定期借家 |
入居可能時期 |
2025年11月下旬予定 |
更新料 |
新賃料 1ヶ月 |
物件番号 |
1144159016 |
情報公開日 |
2025年10月17日 |
次回更新予定日 |
2025年10月31日 |
ケータイ用バーコード |
- スマートフォンでこの物件を見る
- スマートフォンからもこの物件をご覧になれます。
|
※「-」と表示されている項目については、情報提供会社にご確認ください。
周辺施設 |
株式会社築地寿司岩 総本店 |
距離 |
1449m |
写真を見る |
周辺施設 |
タリーズコーヒー 月島駅前店 |
距離 |
1216m |
写真を見る |
周辺施設 |
マルエツ 晴海三丁目店 |
距離 |
830m |
写真を見る |
周辺施設 |
中央勝どき郵便局 |
距離 |
478m |
写真を見る |
周辺施設 |
さわやか保育園勝どき6丁目分園 |
距離 |
154m |
写真を見る |
周辺施設 |
中央区立月島第二小学校 |
距離 |
517m |
写真を見る |
ここから簡単にお問い合わせをすることができます。
(SSLでの暗号化での送信を希望されるお客さまは
こちら
よりお問い合わせください)
お問い合わせを行う前に
「個人情報の取り扱いについて」を必ずお読みください。
「個人情報の取り扱いについて」に同意いただいた場合は「上記にご同意の上 確認画面へ進む」のボタンをクリックしてください。
個人情報の取り扱いについて
皆さまが送付された個人情報はアットホーム(株)のサーバを経由し、お問い合わせ先の不動産会社にメールまたはFAXにて転送されるためアットホーム(株)にも保管されます。アットホーム(株)で保管された個人情報の取り扱いについては、【こちら】をご覧ください。
また、本画面でご記入いただいた個人情報は、お問い合わせ先の不動産会社でも保管します。 お問い合わせ先の不動産会社が保管する個人情報の取り扱いについては、不動産会社に直接お問い合わせください。
東京都知事免許(1)第107337号 |
---|
- 交通:
- JR山手線/新宿駅 徒歩1分
- 東京都新宿区西新宿1丁目3-3 品川ステーションビル新宿5F
- TEL:
- 03-6258-0867
- 所属団体:
- (公社)東京都宅地建物取引業協会会員(公社)首都圏不動産公正取引協議会加盟
取引態様:仲介  - 00278932
|
- スマートフォンで
この不動産会社を見る

|
- 提携サイト等より掲載されている物件情報につきましては、不動産会社詳細情報にリンクされていないものがあります。
- 物件に関するお問合せは、物件詳細ページの「情報提供会社」に表示されている不動産会社へ直接お願いいたします。
- 間取図は、現況を優先させていただきます。
- 映像は物件の一部を撮影したものです。物件の契約にあたっての最終判断はご自身の判断に基づいて行ってください。
- 仲介手数料について

アットホームは物件情報の適正化に努めております。
内容に誤りがある場合にはこちらへご連絡ください。