東京都中央区日本橋馬喰町2丁目(馬喰町駅)の賃貸:物件詳細
交通 所在地 |
駅徒歩 |
賃料 管理費等 |
敷金/保証金 礼金 |
間取り 面積 |
物件種目 築年月 |
|
JR総武本線/馬喰町
東京都中央区日本橋馬喰町2丁目
|
4分
|
19.7万円
15,000円
|
1ヶ月 / なし
なし
|
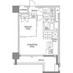
1LDK
40.65m²
|
賃貸マンション
2019年5月(築6年6ヶ月)
|
ペット相談、楽器相談、常時ゴミ出し可能、高齢者相談、二人入居可、24時間換気システム、外観タイル張り、IT重説対応物件
|
|
間取図
|
外観
|
<
その他の画像
>
|
| 交通 | JR総武本線 馬喰町駅 徒歩4分 |
|---|
| その他の交通 | JR総武線 浅草橋駅 徒歩4分 都営新宿線 馬喰横山駅 徒歩8分 |
| 所在地 |
東京都中央区日本橋馬喰町2丁目
|
| 物件種目 |
賃貸マンション |
| 賃料 |
19.7万円 |
管理費等 |
15,000円 |
| 敷金 / 保証金 |
1ヶ月 / なし |
礼金 |
なし |
| 敷引 |
- |
保証金償却 |
- |
| その他一時金 |
駆けつけサポート24:16,500円、鍵交換代等:33,000円~ |
保険等 |
要 2年 20,000円 |
| 維持費等 |
- |
クレジットカード決済 |
初期費用可 |
| 間取り |
1LDK(K3.1、LD9.3、洋4.6) |
専有面積 |
40.65m² |
| 築年月 |
2019年5月(築6年6ヶ月)
|
階建 / 階 |
12階建 / 7階 |
| 建物構造 |
RC |
総戸数 |
- |
| 主要採光面 |
東 |
駐車場 |
- |
| バイク置き場 |
- |
駐輪場 |
- |
| 建物名・部屋番号 |
ザ・パークハビオ日本橋馬喰町 |
ペット |
相談 |
| アピールポイント |
室内設備は洗面化粧台・浴室乾燥機などが揃っているので、快適に過ごしやすいお部屋になります。セキュリティ面は、オートロック・TVインターホンなど充実しているので、防犯対策もばっちりです。収納はクロゼット・シューズボックスなどが備え付けられているので、衣類や日用品の収納に重宝します。共用部には宅配ボックス・ゴミ出し24時間OKなどが備わっておりとても充実しています。このお部屋は40.65㎡です。テレビ好きの方に一押しのCATV対応物件です。駐輪場付きの物件です。楽器可物件なので、お家で楽器を演奏したい方はご相談ください。水道代の節約につながる、追い焚き機能付きです。こちらの物件ではご相談次第でペットを飼うことができます。3つの調理を同時に進行できるのでたくさん料理したい人にもおすすめな、3口コンロが付いている物件です。 |
| リフォーム履歴 |
- |
| リノベーション履歴 |
- |
| 備考 |
賃貸保証等:加入要(日本セーフティー [保証会社]加入要[保証会社名]その他[保証会社利用料]日本セーフティー 初年度保証料:賃料等合計額の50%(最低保証料2万円)2年目以降:1年毎1万円)
管理形態/管理員の勤務形態:-/-
IT重説対応物件
※ヘ゜ット相談可(小型犬・猫2匹まで 敷金1ヶ月積増) 楽器相談可※1年未満解約時違約金有 ★同タイプ・別階の内観写真を掲載している場合があります。図面と現況が異なる場合は現況を優先いたします。SOHO相談可(敷金1ヶ月積増)
共用部にはゴミ出し24時間OK・宅配ボックスなどが揃っており、とても充実しています。セキュリティ面は、TVインターホン・オートロックなどを備え付けているので安心して暮らせます。室内設備は洗面所独立・浴室乾燥機など大変充実しております。収納はクロゼット・シューズボックスなど豊富なので、広々と空間を利用することも可能です。共用設備の充実している、楽しく生活できるマンションです。追い焚き機能付きのお風呂です。この物件はCATV対応なので、手間をかけて工事を行う必要もありません。BS、CSに加入して、映画やアニメ見放題の生活を送りませんか。初期費用をカードでお支払いいただけるので、カードで決済したい方にもおすすめです。12階建ての物件です。ペットが大好きな方にも紹介したい、ペット相談可の物件です。
|
| エネルギー消費性能 |
- |
| 断熱性能 |
- |
| 目安光熱費 |
- |
| バス・トイレ |
バス・トイレ別、浴室乾燥機、追焚機能、洗面所独立、洗面所、シャワー、温水洗浄便座、トイレ |
| キッチン |
カウンターキッチン、システムキッチン、3口以上コンロ、ガスコンロ可 |
| セキュリティー |
モニター付オートロック、オートロック、モニター付インターホン、防犯カメラ |
| 収納 |
収納スペース、クローゼット、シューズボックス |
| 設備・サービス |
エアコン2台以上、室内洗濯機置場、洗濯機置場、全居室フローリング、フローリング、都市ガス、エアコン、冷房、ダウンライト |
| TV・通信 |
インターネット対応、インターネット使用料無料、ケーブルTV、CS、BS端子 |
| その他 |
宅配BOX、バルコニー、エレベーター |
| 契約期間 |
2年 |
現況 |
居住中 |
| 条件等 |
- |
入居可能時期 |
相談 |
| 更新料 |
新賃料 1ヶ月 |
物件番号 |
1144218416 |
| 情報公開日 |
2025年10月10日 |
次回更新予定日 |
2025年11月5日 |
| ケータイ用バーコード |
- スマートフォンでこの物件を見る
- スマートフォンからもこの物件をご覧になれます。
|
※「-」と表示されている項目については、情報提供会社にご確認ください。
| 周辺施設 |
日生東日本橋保育園ひびき |
| 距離 |
904m |
写真を見る |
| 周辺施設 |
岩本町ちとせ保育園 |
| 距離 |
734m |
写真を見る |
| 周辺施設 |
台東区立浅草中学校 |
| 距離 |
1037m |
写真を見る |
| 周辺施設 |
PRONTO 東日本橋店 |
| 距離 |
638m |
写真を見る |
| 周辺施設 |
左衛門橋南児童遊園 |
| 距離 |
63m |
写真を見る |
| 周辺施設 |
エニタイムフィットネス 日本橋馬喰町店 |
| 距離 |
100m |
写真を見る |
| 周辺施設 |
肉のハナマサ 浅草橋店 |
| 距離 |
233m |
写真を見る |
| 周辺施設 |
マルマンストア 日本橋馬喰町店 |
| 距離 |
559m |
写真を見る |
ここから簡単にお問い合わせをすることができます。
(SSLでの暗号化での送信を希望されるお客さまは
こちら
よりお問い合わせください)
お問い合わせを行う前に
「個人情報の取り扱いについて」を必ずお読みください。
「個人情報の取り扱いについて」に同意いただいた場合は「上記にご同意の上 確認画面へ進む」のボタンをクリックしてください。
個人情報の取り扱いについて
皆さまが送付された個人情報はアットホーム(株)のサーバを経由し、お問い合わせ先の不動産会社にメールまたはFAXにて転送されるためアットホーム(株)にも保管されます。アットホーム(株)で保管された個人情報の取り扱いについては、【こちら】をご覧ください。
また、本画面でご記入いただいた個人情報は、お問い合わせ先の不動産会社でも保管します。 お問い合わせ先の不動産会社が保管する個人情報の取り扱いについては、不動産会社に直接お問い合わせください。
東京都知事免許(1)第109763号 |
|---|
- 交通:
- 東京メトロ有楽町線/銀座一丁目駅 徒歩3分
- 東京都中央区銀座1丁目5-1 Holon GinzaⅡ
- TEL:
- 03-5962-8933
- FAX:
- 03-5962-8933
- 所属団体:
- (公社)東京都宅地建物取引業協会会員(公社)首都圏不動産公正取引協議会加盟
取引態様:仲介  - 00275939
|
- スマートフォンで
この不動産会社を見る

|
- 提携サイト等より掲載されている物件情報につきましては、不動産会社詳細情報にリンクされていないものがあります。
- 物件に関するお問合せは、物件詳細ページの「情報提供会社」に表示されている不動産会社へ直接お願いいたします。
- 間取図は、現況を優先させていただきます。
- 映像は物件の一部を撮影したものです。物件の契約にあたっての最終判断はご自身の判断に基づいて行ってください。
- 仲介手数料について

アットホームは物件情報の適正化に努めております。
内容に誤りがある場合にはこちらへご連絡ください。