東京都北区豊島6丁目(王子神谷駅)の賃貸:物件詳細
交通 所在地 |
駅徒歩 |
賃料 管理費等 |
敷金/保証金 礼金 |
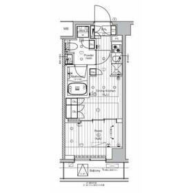
間取り 面積 |
物件種目 築年月 |
|
東京メトロ南北線/王子神谷
東京都北区豊島6丁目
|
12分
|
9.8万円
15,000円
|
なし / なし
1ヶ月
|
1DK
25.62m²
|
賃貸マンション
2025年10月
|
ペット相談、IT重説対応物件、保証人不要
|
|
間取図
|
外観
|
その他の画像
|
| 交通 | 東京メトロ南北線 王子神谷駅 徒歩12分 |
|---|
| その他の交通 | JR京浜東北線 王子駅 徒歩24分 都電荒川線 梶原駅 徒歩26分 |
| 所在地 |
東京都北区豊島6丁目
|
| 物件種目 |
賃貸マンション |
| 賃料 |
9.8万円 |
管理費等 |
15,000円 |
| 敷金 / 保証金 |
なし / なし |
礼金 |
1ヶ月 |
| 敷引 |
- |
保証金償却 |
- |
| その他一時金 |
入居中サポート料:21,450円、室内抗菌処理代:17,600円、契約事務手数料:11,000円、鍵交換代等:22,000円~ |
保険等 |
要 2年 23,000円 |
| 維持費等 |
- |
| 間取り |
1DK(DK6.1、洋4.4) |
専有面積 |
25.62m² |
| 築年月 |
2025年10月
|
階建 / 階 |
6階建 / 2階 |
| 建物構造 |
RC |
総戸数 |
- |
| 主要採光面 |
|
駐車場 |
有 無料 |
| バイク置き場 |
- |
駐輪場 |
有 無料 |
| 建物名・部屋番号 |
PREMIUM CUBE 王子神谷 205 |
ペット |
相談 |
| アピールポイント |
室内設備は浴室乾燥機・洗面所独立など豊富に揃っており、過ごしやすいお部屋になっております。収納はクロゼット・シューズボックスなど豊富なので、衣類や履き物の整理がしやすく便利です。不在時でも荷物の受け取りができる、時間調整の手間が省ける宅配ボックスが付いております。セキュリティ面は、オートロック・TVインターホンなどを備え付けているので安心して暮らせます。防犯カメラが付いているので、犯罪の抑止や不法投棄などによる入居者同士のトラブルも防止できます。この物件はバルコニー付きで、用途に合わせて使用できおすすめです。毎日浴槽に浸かるなら、追い焚き機能で水道代を節約しましょう。2口コンロを備え付けているので、料理を同時に進めてサッと作ることができます。きれいで気持ちいい新築物件で新生活をスタートしませんか。こちらの物件でペットの飼育をご希望の際は、お気軽にご相談ください。未完成の物件です。完成後、きれいで新しいお部屋にご案内可能です。 |
| リフォーム履歴 |
- |
| リノベーション履歴 |
- |
| 備考 |
賃貸保証等:加入要(要確認)
管理形態/管理員の勤務形態:-/-
IT重説対応物件
ぜひ一度見ていただきたい、「PREMIUM CUBE 王子神谷」です。セブンイレブン 北区豊島6丁目店まで徒歩5分と近場にコンビニがあるのもポイント。室内設備はCS・エアコン・システムキッチンなど大変充実しております。快適な生活を実現してくれる要素の一つに、住まいというものがあるのだと思います。当社に住まい探しのお手伝いをさせて下さい。
ペット飼育:1匹の場合共益費3,500円追加
2匹の場合共益費3,500円追加及び敷金1ヵ月追加(償却)
解約予告2か月前
1年未満の解約時、総賃料1ヶ月分の違約金あり
|
| エネルギー消費性能 |
- |
| 断熱性能 |
- |
| 目安光熱費 |
- |
| バス・トイレ |
バス・トイレ別、浴室乾燥機、追焚機能、シャワー付洗面化粧台、洗面所独立、洗面所、洗面台、シャワー、温水洗浄便座、トイレ |
| キッチン |
システムキッチン、2口コンロ、ガスコンロ可 |
| セキュリティー |
モニター付オートロック、オートロック、モニター付インターホン、防犯カメラ |
| 収納 |
収納スペース、クローゼット、シューズボックス |
| 設備・サービス |
室内洗濯機置場、洗濯機置場、都市ガス給湯、給湯、全居室フローリング、フローリング、都市ガス、エアコン |
| TV・通信 |
インターネット対応、インターネット使用料無料、CS、BS端子 |
| その他 |
宅配BOX、バルコニー、駐輪場、エレベーター |
| 契約期間 |
2年 |
現況 |
未完成 |
| 条件等 |
- |
入居可能時期 |
指定有り2025年11月1日 |
| 仲介手数料 |
1.1ヶ月 |
|
|
| 更新料 |
新賃料 1.5ヶ月 |
物件番号 |
1144384916 |
| 情報公開日 |
2025年10月10日 |
次回更新予定日 |
2025年11月1日 |
| ケータイ用バーコード |
- スマートフォンでこの物件を見る
- スマートフォンからもこの物件をご覧になれます。
|
※「-」と表示されている項目については、情報提供会社にご確認ください。
| 周辺施設 |
ベルク 足立新田店 |
| 距離 |
599m |
写真を見る |
| 周辺施設 |
セブンイレブン 北区豊島6丁目店 |
| 距離 |
349m |
写真を見る |
| 周辺施設 |
王子生協病院 |
| 距離 |
923m |
写真を見る |
ここから簡単にお問い合わせをすることができます。
(SSLでの暗号化での送信を希望されるお客さまは
こちら
よりお問い合わせください)
お問い合わせを行う前に
「個人情報の取り扱いについて」を必ずお読みください。
「個人情報の取り扱いについて」に同意いただいた場合は「上記にご同意の上 確認画面へ進む」のボタンをクリックしてください。
個人情報の取り扱いについて
皆さまが送付された個人情報はアットホーム(株)のサーバを経由し、お問い合わせ先の不動産会社にメールまたはFAXにて転送されるためアットホーム(株)にも保管されます。アットホーム(株)で保管された個人情報の取り扱いについては、【こちら】をご覧ください。
また、本画面でご記入いただいた個人情報は、お問い合わせ先の不動産会社でも保管します。 お問い合わせ先の不動産会社が保管する個人情報の取り扱いについては、不動産会社に直接お問い合わせください。
国土交通大臣免許(4)第7400号 |
|---|
- 交通:
- JR京浜東北線/王子駅 徒歩1分
- 東京都北区王子1丁目9-1 不二家王子ビル1F
- TEL:
- 03-5959-0888
- FAX:
- 03-5959-0889
- 所属団体:
- (公社)全日本不動産協会会員(公社)首都圏不動産公正取引協議会加盟
取引態様:仲介  - 00277083
|
- スマートフォンで
この不動産会社を見る

|
- 提携サイト等より掲載されている物件情報につきましては、不動産会社詳細情報にリンクされていないものがあります。
- 物件に関するお問合せは、物件詳細ページの「情報提供会社」に表示されている不動産会社へ直接お願いいたします。
- 間取図は、現況を優先させていただきます。
- 映像は物件の一部を撮影したものです。物件の契約にあたっての最終判断はご自身の判断に基づいて行ってください。
- 仲介手数料について

アットホームは物件情報の適正化に努めております。
内容に誤りがある場合にはこちらへご連絡ください。