東京都新宿区新宿6丁目(東新宿駅)の賃貸:物件詳細
交通 所在地 |
駅徒歩 |
賃料 管理費等 |
敷金/保証金 礼金 |
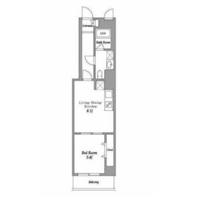
間取り 面積 |
物件種目 築年月 |
|
東京メトロ副都心線/東新宿
東京都新宿区新宿6丁目
|
5分
|
17.8万円
15,000円
|
1ヶ月 / なし
1ヶ月
|
1LDK
37.41m²
|
賃貸マンション
2009年4月(築16年8ヶ月)
|
ペット相談、楽器相談、常時ゴミ出し可能、高齢者相談、二人入居可、外観タイル張り、保証人不要
|
|
間取図
|
外観
落ち着いた雰囲気の外観です
|
<
その他の画像
>
|
| 交通 | 東京メトロ副都心線 東新宿駅 徒歩5分 |
|---|
| その他の交通 | JR山手線 新宿駅 徒歩18分 都営大江戸線 若松河田駅 徒歩11分 |
| 所在地 |
東京都新宿区新宿6丁目
|
| 物件種目 |
賃貸マンション |
| 賃料 |
17.8万円 |
管理費等 |
15,000円 |
| 敷金 / 保証金 |
1ヶ月 / なし |
礼金 |
1ヶ月 |
| 敷引 |
- |
保証金償却 |
- |
| その他一時金 |
エアコン清掃費:55,000円、室内清掃費用:44,000円、鍵交換代等:33,000円~ |
保険等 |
要 2年 16,550円 |
| 維持費等 |
- |
| 間取り |
1LDK(DK8.1、洋5.4) |
専有面積 |
37.41m² |
| 築年月 |
2009年4月(築16年8ヶ月)
|
階建 / 階 |
6階建 / 2階 |
| 建物構造 |
RC |
総戸数 |
- |
| 主要採光面 |
南東 |
駐車場 |
近有 40,000円/月 |
| バイク置き場 |
- |
駐輪場 |
有 |
| 建物名・部屋番号 |
エスティメゾン東新宿 |
ペット |
相談 |
| アピールポイント |
どらっぐぱぱす 新宿イーストサイドスクエア店まで徒歩3分にあるので、体調が悪くなっても安心。セキュリティ面は、TVインターホン・オートロックなど充実しているので安心して生活できます。共用部にはゴミ出し24時間OK・宅配ボックスなどが備わっておりとても充実しています。室内設備は洗面化粧台・浴室乾燥機など充実した設備を備え付けています。ペットの飼育が可能かどうかを事前にご相談いただけます。マンションタイプのお部屋です。ゴミ出しを楽にするために、遠くまで行かずに済むゴミ置き場を共用部に供え付けております。こちらは1LDKの物件です。お料理好きにはたまらない、システムキッチン付きの物件です。快適な通信速度でパソコンが使用できる光回線の物件です。 |
| リフォーム履歴 |
- |
| リノベーション履歴 |
- |
| 備考 |
賃貸保証等:加入要(エポスカード (レジデンシャルパートナーズ) 保証料:賃料等の50%(最低2万)、月額保証料:賃料等の)
管理形態/管理員の勤務形態:-/-
室内設備は浴室乾燥機・洗面化粧台など豊富に揃っており、過ごしやすいお部屋になっております。セキュリティ面は、TVインターホン・オートロックなどを備え付けているので安心して暮らせます。共用部には宅配ボックス・ゴミ出し24時間OKなど様々な設備やサービスが揃っているので便利です。お部屋の面積も37.41㎡あります。こちらのお部屋で新しい生活を始めてみませんか。コートなども扱いやすいクロゼットが設置されています。2口コンロが付いているので、たくさん作る場合でも同時に料理を進められます。入居者にとっても扱いやすい敷地内ごみ置き場がついています。お財布に優しいとしてニーズがあるのが、照明付き物件です。BS、CSに加入して、映画やアニメ見放題の生活を送りませんか。
|
| エネルギー消費性能 |
- |
| 断熱性能 |
- |
| 目安光熱費 |
- |
| バス・トイレ |
バス・トイレ別、浴室乾燥機、オートバス、追焚機能、洗面所独立、洗面所、温水洗浄便座、トイレ |
| キッチン |
システムキッチン、2口コンロ、ガスコンロ可、グリル |
| セキュリティー |
モニター付オートロック、オートロック、モニター付インターホン、ディンプルキー、ダブルロックドア、防犯カメラ |
| 収納 |
収納スペース、クローゼット |
| 設備・サービス |
エアコン2台以上、室内洗濯機置場、洗濯機置場、全居室フローリング、フローリング、都市ガス、エアコン、冷房、照明器具 |
| TV・通信 |
インターネット対応、光ファイバー、CATVインターネット、ケーブルTV、CS、BS端子 |
| その他 |
宅配BOX、バルコニー、駐輪場、エレベーター |
| 契約期間 |
2年 |
現況 |
居住中 |
| 条件等 |
- |
入居可能時期 |
2025年11月下旬予定 |
| 更新料 |
新賃料 1ヶ月 |
物件番号 |
1144800716 |
| 情報公開日 |
2025年11月1日 |
次回更新予定日 |
2025年11月15日 |
| ケータイ用バーコード |
- スマートフォンでこの物件を見る
- スマートフォンからもこの物件をご覧になれます。
|
※「-」と表示されている項目については、情報提供会社にご確認ください。
| 周辺施設 |
maruetsu(マルエツ) 新宿六丁目店 |
| 距離 |
313m |
写真を見る |
| 周辺施設 |
ヨークフーズ 新宿富久店 |
| 距離 |
855m |
写真を見る |
| 周辺施設 |
ニュータウンオオクボ |
| 距離 |
1936m |
写真を見る |
| 周辺施設 |
ローソンサテライト 新宿イーストサイドスクエア店 |
| 距離 |
172m |
写真を見る |
| 周辺施設 |
Olympic(オリンピック) 早稲田店 |
| 距離 |
1683m |
写真を見る |
| 周辺施設 |
どらっぐぱぱす 新宿イーストサイドスクエア店 |
| 距離 |
205m |
写真を見る |
| 周辺施設 |
ザ・ダイソー ユニオン新宿ビル店 |
| 距離 |
320m |
写真を見る |
ここから簡単にお問い合わせをすることができます。
(SSLでの暗号化での送信を希望されるお客さまは
こちら
よりお問い合わせください)
お問い合わせを行う前に
「個人情報の取り扱いについて」を必ずお読みください。
「個人情報の取り扱いについて」に同意いただいた場合は「上記にご同意の上 確認画面へ進む」のボタンをクリックしてください。
個人情報の取り扱いについて
皆さまが送付された個人情報はアットホーム(株)のサーバを経由し、お問い合わせ先の不動産会社にメールまたはFAXにて転送されるためアットホーム(株)にも保管されます。アットホーム(株)で保管された個人情報の取り扱いについては、【こちら】をご覧ください。
また、本画面でご記入いただいた個人情報は、お問い合わせ先の不動産会社でも保管します。 お問い合わせ先の不動産会社が保管する個人情報の取り扱いについては、不動産会社に直接お問い合わせください。
東京都知事免許(1)第107337号 |
|---|
- 交通:
- JR山手線/新橋駅 徒歩5分
- 東京都中央区銀座8丁目11-1 GINZA GS BLD.2 7階
- TEL:
- 03-6281-4770
- FAX:
- 03-6281-4771
- 所属団体:
- (公社)東京都宅地建物取引業協会会員(公社)首都圏不動産公正取引協議会加盟
取引態様:仲介  - 00271811
|
- スマートフォンで
この不動産会社を見る

|
- 提携サイト等より掲載されている物件情報につきましては、不動産会社詳細情報にリンクされていないものがあります。
- 物件に関するお問合せは、物件詳細ページの「情報提供会社」に表示されている不動産会社へ直接お願いいたします。
- 間取図は、現況を優先させていただきます。
- 映像は物件の一部を撮影したものです。物件の契約にあたっての最終判断はご自身の判断に基づいて行ってください。
- 仲介手数料について

アットホームは物件情報の適正化に努めております。
内容に誤りがある場合にはこちらへご連絡ください。