神奈川県横浜市港北区新横浜1丁目(新横浜駅)の賃貸:物件詳細
交通 所在地 |
駅徒歩 |
賃料 管理費等 |
敷金/保証金 礼金 |
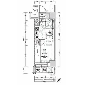
間取り 面積 |
物件種目 築年月 |
|
JR横浜線/新横浜
神奈川県横浜市港北区新横浜1丁目
|
7分
|
8.8万円
10,000円
|
なし / なし
なし
|
1K
21.75m²
|
賃貸マンション
2025年1月(築1年未満)
|
ペット相談、デザイナーズ、分譲タイプ、24時間セキュリティー、24時間換気システム、保証人不要
|
|
間取図
|
外観
|
<
その他の画像
>
|
| 交通 | JR横浜線 新横浜駅 徒歩7分 |
|---|
| その他の交通 | 東急新横浜線 新横浜駅 徒歩7分 |
| 所在地 |
神奈川県横浜市港北区新横浜1丁目
|
| 物件種目 |
賃貸マンション |
| 賃料 |
8.8万円 |
管理費等 |
10,000円 |
| 敷金 / 保証金 |
なし / なし |
礼金 |
なし |
| 敷引 |
- |
保証金償却 |
- |
| その他一時金 |
事務手数料:11,000円、鍵交換代等:44,000円~ |
保険等 |
要 2年 20,000円 |
| 維持費等 |
安心サポート:1,100円/月 |
| 間取り |
1K(洋6.3) |
専有面積 |
21.75m² |
| 築年月 |
2025年1月(築1年未満)
|
階建 / 階 |
11階建 / 4階 |
| 建物構造 |
RC |
総戸数 |
- |
| 主要採光面 |
|
駐車場 |
近有 22,000円/月 |
| バイク置き場 |
有 |
駐輪場 |
有 |
| 建物名・部屋番号 |
CREST TAPP新横浜 |
ペット |
相談 |
| アピールポイント |
共用部には宅配ボックスが付いているので、荷物の受け取りのために早く帰宅する必要がありません。室内設備は洗面所独立・浴室乾燥機など大変充実しております。オートロック付き物件で、安心できる暮らしを始めましょう。高いニーズのある、駅徒歩7分の物件です。明るい照明付きのお部屋だと、快適に暮らすことができます。エレベーター付きの物件です。駐車場まで200mの物件、いかがでしょうか。防犯カメラがあるので、犯罪の抑止や不法投棄などによる入居者同士のトラブル防止につながります。バルコニー付きの物件で、用途に合わせて活用できおすすめです。価格8.8万円ながら充実した設備のこちらの物件は、多くの方におすすめです。 |
| リフォーム履歴 |
- |
| リノベーション履歴 |
- |
| 備考 |
賃貸保証等:加入要(初回保証料:50% 更新料:1万円)
管理形態/管理員の勤務形態:-/-
お部屋探しは横浜駅徒歩5分のみらい不動産にお任せください。
お部屋探しは横浜・川崎エリアに特化した弊社にお任せください。物件の詳細やご相談は公式LINEからスタッフとやりとり可能です。お急ぎの方はお電話にてお問い合わせください。
退去時クリーニング費用:38500円。エアコンクリーニング費用:1台16500円。
違約金:2年以内1ヵ月分。ペット相談:敷金1ヶ月増(小型犬or猫2匹迄)。
|
| エネルギー消費性能 |
- |
| 断熱性能 |
- |
| 目安光熱費 |
- |
| バス・トイレ |
バス・トイレ別、浴室乾燥機、洗面所独立、洗面所、温水洗浄便座、トイレ |
| キッチン |
システムキッチン、2口コンロ、ガスコンロ可 |
| セキュリティー |
オートロック、ディンプルキー、ダブルロックドア、防犯カメラ |
| 収納 |
収納スペース、クローゼット |
| 設備・サービス |
室内洗濯機置場、洗濯機置場、都市ガス給湯、給湯、都市ガス、エアコン、照明器具 |
| TV・通信 |
インターネット対応、インターネット使用料無料 |
| その他 |
宅配BOX、バイク置き場、バルコニー、駐輪場、エレベーター |
| 契約期間 |
2年 |
現況 |
空家 |
| 条件等 |
- |
入居可能時期 |
2025年11月下旬予定 |
| 更新料 |
新賃料 1.5ヶ月 |
物件番号 |
1144845116 |
| 情報公開日 |
2025年10月11日 |
次回更新予定日 |
2025年11月13日 |
| ケータイ用バーコード |
- スマートフォンでこの物件を見る
- スマートフォンからもこの物件をご覧になれます。
|
※「-」と表示されている項目については、情報提供会社にご確認ください。
| 周辺施設 |
Fit Care DEPOT岸根店 |
| 距離 |
705m |
写真を見る |
| 周辺施設 |
ドミノ・ピザ 新横浜店 |
| 距離 |
600m |
写真を見る |
| 周辺施設 |
松屋 新横浜店 |
| 距離 |
402m |
写真を見る |
| 周辺施設 |
【N 】ニトリ新横浜店 |
| 距離 |
400m |
写真を見る |
| 周辺施設 |
しゃぶ葉 新横浜店 |
| 距離 |
670m |
写真を見る |
| 周辺施設 |
日産スタジアム(横浜国際総合競技場) |
| 距離 |
1062m |
写真を見る |
ここから簡単にお問い合わせをすることができます。
(SSLでの暗号化での送信を希望されるお客さまは
こちら
よりお問い合わせください)
お問い合わせを行う前に
「個人情報の取り扱いについて」を必ずお読みください。
「個人情報の取り扱いについて」に同意いただいた場合は「上記にご同意の上 確認画面へ進む」のボタンをクリックしてください。
個人情報の取り扱いについて
皆さまが送付された個人情報はアットホーム(株)のサーバを経由し、お問い合わせ先の不動産会社にメールまたはFAXにて転送されるためアットホーム(株)にも保管されます。アットホーム(株)で保管された個人情報の取り扱いについては、【こちら】をご覧ください。
また、本画面でご記入いただいた個人情報は、お問い合わせ先の不動産会社でも保管します。 お問い合わせ先の不動産会社が保管する個人情報の取り扱いについては、不動産会社に直接お問い合わせください。
神奈川県知事免許(1)第31847号 |
|---|
- 交通:
- 東急東横線/横浜駅
- 神奈川県横浜市西区北幸2丁目10-42 寺内ビル9F
- TEL:
- 045-322-2552
- FAX:
- 045-322-2553
- 所属団体:
- (公社)神奈川県宅地建物取引業協会会員(公社)首都圏不動産公正取引協議会加盟
取引態様:仲介  - 00273956
|
- スマートフォンで
この不動産会社を見る

|
- 提携サイト等より掲載されている物件情報につきましては、不動産会社詳細情報にリンクされていないものがあります。
- 物件に関するお問合せは、物件詳細ページの「情報提供会社」に表示されている不動産会社へ直接お願いいたします。
- 間取図は、現況を優先させていただきます。
- 映像は物件の一部を撮影したものです。物件の契約にあたっての最終判断はご自身の判断に基づいて行ってください。
- 仲介手数料について

アットホームは物件情報の適正化に努めております。
内容に誤りがある場合にはこちらへご連絡ください。