大阪府大阪市東淀川区相川3丁目(相川駅)の賃貸:物件詳細
交通 所在地 |
駅徒歩 |
賃料 管理費等 |
敷金/保証金 礼金 |
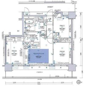
間取り 面積 |
物件種目 築年月 |
阪急京都線/相川
大阪府大阪市東淀川区相川3丁目
|
5分
|
17万円
10,000円
|
なし / なし
なし
|
3LDK
64.85m²
|
賃貸マンション
2017年6月(築8年5ヶ月)
|
ペット相談、角部屋、二人入居可、制震構造、バリアフリー、IT重説対応物件
|
間取図
|
外観
|
<
その他の画像
>
|
交通 | 阪急京都線 相川駅 徒歩5分 |
---|
その他の交通 | 地下鉄今里筋線 井高野駅 徒歩7分 阪急京都線 上新庄駅 徒歩15分 |
所在地 |
大阪府大阪市東淀川区相川3丁目
|
物件種目 |
賃貸マンション |
賃料 |
17万円 |
管理費等 |
10,000円 |
敷金 / 保証金 |
なし / なし |
礼金 |
なし |
敷引 |
- |
保証金償却 |
- |
その他一時金 |
なし |
保険等 |
要 2年 17,000円 |
維持費等 |
- |
間取り |
3LDK(洋室6.9・洋室6.1・洋室5・LDK13.7) |
専有面積 |
64.85m² |
築年月 |
2017年6月(築8年5ヶ月)
|
階建 / 階 |
10階建 / 3階 |
建物構造 |
RC |
総戸数 |
- |
主要採光面 |
|
駐車場 |
無 |
バイク置き場 |
有 |
駐輪場 |
有 200円/月 |
建物名・部屋番号 |
ラウロ相川リーヴァ |
ペット |
小型犬可・ 猫可 |
リフォーム履歴 |
- |
リノベーション履歴 |
- |
備考 |
賃貸保証等:加入要(初回契約時:50%、更新時:10,000円、最低保証料20,000円)
管理形態/管理員の勤務形態:-/-
IT重説対応物件
|
エネルギー消費性能 |
- |
断熱性能 |
- |
目安光熱費 |
- |
バス・トイレ |
バス・トイレ別、浴室乾燥機、オートバス、追焚機能、シャワー付洗面化粧台、洗面所独立、洗面所、洗面台、シャワー、温水洗浄便座、トイレ |
キッチン |
カウンターキッチン、システムキッチン、3口以上コンロ、ガスコンロ付、グリル |
セキュリティー |
モニター付オートロック、オートロック、モニター付インターホン、ディンプルキー、ダブルロックドア、防犯カメラ、火災警報器(報知機) |
収納 |
全居室収納、ウォークインクローゼット、収納スペース、クローゼット、シューズボックス |
設備・サービス |
室内洗濯機置場、洗濯機置場、給湯、全居室フローリング、フローリング、クッションフロア、都市ガス、人感センサー付照明、照明器具 |
TV・通信 |
インターネット対応、光ファイバー、CATVインターネット、ケーブルTV |
その他 |
宅配BOX、バイク置き場、バルコニー、駐輪場、エレベーター |
契約期間 |
2年 |
現況 |
居住中 |
条件等 |
- |
入居可能時期 |
相談 |
更新料 |
- |
物件番号 |
1144947910 |
情報公開日 |
2025年8月11日 |
次回更新予定日 |
2025年10月26日 |
ケータイ用バーコード |
- スマートフォンでこの物件を見る
- スマートフォンからもこの物件をご覧になれます。
|
※「-」と表示されている項目については、情報提供会社にご確認ください。
周辺施設 |
関西スーパー南江口店 |
距離 |
1117m |
写真を見る |
ここから簡単にお問い合わせをすることができます。
(SSLでの暗号化での送信を希望されるお客さまは
こちら
よりお問い合わせください)
お問い合わせを行う前に
「個人情報の取り扱いについて」を必ずお読みください。
「個人情報の取り扱いについて」に同意いただいた場合は「上記にご同意の上 確認画面へ進む」のボタンをクリックしてください。
個人情報の取り扱いについて
皆さまが送付された個人情報はアットホーム(株)のサーバを経由し、お問い合わせ先の不動産会社にメールまたはFAXにて転送されるためアットホーム(株)にも保管されます。アットホーム(株)で保管された個人情報の取り扱いについては、【こちら】をご覧ください。
また、本画面でご記入いただいた個人情報は、お問い合わせ先の不動産会社でも保管します。 お問い合わせ先の不動産会社が保管する個人情報の取り扱いについては、不動産会社に直接お問い合わせください。
大阪府知事免許(9)第32233号 |
---|
- 交通:
- JR東海道本線/高槻駅 徒歩1分
- 大阪府高槻市紺屋町3-1 グリーンプラザ3号館108号
- TEL:
- 072-682-3232
- FAX:
- 072-682-3233
- 所属団体:
- (一社)大阪府宅地建物取引業協会会員(公社)近畿地区不動産公正取引協議会加盟
取引態様:仲介  - 50012786
|
- スマートフォンで
この不動産会社を見る

|
- 提携サイト等より掲載されている物件情報につきましては、不動産会社詳細情報にリンクされていないものがあります。
- 物件に関するお問合せは、物件詳細ページの「情報提供会社」に表示されている不動産会社へ直接お願いいたします。
- 間取図は、現況を優先させていただきます。
- 映像は物件の一部を撮影したものです。物件の契約にあたっての最終判断はご自身の判断に基づいて行ってください。
- 仲介手数料について

アットホームは物件情報の適正化に努めております。
内容に誤りがある場合にはこちらへご連絡ください。