埼玉県和光市新倉2丁目(和光市駅)の賃貸:物件詳細
交通 所在地 |
駅徒歩 |
賃料 管理費等 |
敷金/保証金 礼金 |
間取り 面積 |
物件種目 築年月 |
|
東京メトロ有楽町線/和光市
埼玉県和光市新倉2丁目
|
17分
|
14.5万円
10,000円
|
1ヶ月 / なし
1ヶ月
|
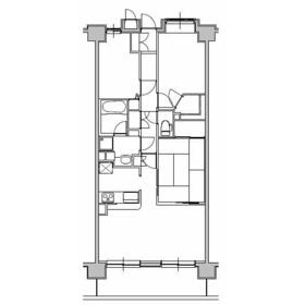
3LDK
75.60m²
|
賃貸マンション
1998年6月(築27年7ヶ月)
|
分譲タイプ、南向き、閑静な住宅街
|
|
間取図
|
その他
|
<
その他の画像
>
|
| 交通 | 東京メトロ有楽町線 和光市駅 徒歩17分 |
|---|
| その他の交通 | 東武東上線 朝霞駅 徒歩22分 【バス】 谷津橋 停歩3分 |
| 所在地 |
埼玉県和光市新倉2丁目
|
| 物件種目 |
賃貸マンション |
| 賃料 |
14.5万円 |
管理費等 |
10,000円 |
| 敷金 / 保証金 |
1ヶ月 / なし |
礼金 |
1ヶ月 |
| 敷引 |
- |
保証金償却 |
- |
| その他一時金 |
抗菌処理費:27,500円、鍵交換代等:33,000円~ |
保険等 |
要 2年 21,000円 |
| 維持費等 |
ハッピーサポート:550円/月 |
| 間取り |
3LDK(LDK16.7、洋6.3、洋5、和6) |
専有面積 |
75.60m² |
| 築年月 |
1998年6月(築27年7ヶ月)
|
階建 / 階 |
7階建 / 5階 |
| 建物構造 |
RC |
総戸数 |
- |
| 主要採光面 |
南 |
駐車場 |
近有 7,787円/月 |
| バイク置き場 |
- |
駐輪場 |
有 |
| 建物名・部屋番号 |
日神パレステージ和光 505 |
ペット |
-
|
| リフォーム履歴 |
- |
| リノベーション履歴 |
- |
| 備考 |
賃貸保証等:加入要(日本セーフティー 初回40%~50%、更新10,000円/年)
管理形態/管理員の勤務形態:-/-
非喫煙者限定
共用部には風除室・クリーニングボックスなどが備わっておりとても充実しています。室内設備はエアコン・システムキッチン・床暖房などが揃っており、とても充実しています。駐車場まで100mのマンションです。駐輪場付きのマンションです。できるだけ早めに不動産情報を集めたい方は当社スタッフまでご連絡ください。地域の不動産情報をいち早くお届けします。
共用部にはエレベータ・敷地内ごみ置き場などが揃っており、とても充実しています。室内設備は床暖房・エアコン・ネット使用料不要など豊富に揃っており、過ごしやすいお部屋になっております。駐輪場付きのマンションです。新しい日々を送るにふさわしい、きれいな室内です。空家ですのでお早めのお引越しが可能です。自分のライフスタイルに必要なお住まいをお選びください。お住まい探しをサポートしてまいります。
|
| エネルギー消費性能 |
- |
| 断熱性能 |
- |
| 目安光熱費 |
- |
| バス・トイレ |
バス・トイレ別、浴室乾燥機、オートバス、追焚機能、洗面所独立、洗面所、シャワー、温水洗浄便座、トイレ |
| キッチン |
システムキッチン、3口以上コンロ、ガスコンロ可、ガスオーブン、グリル |
| セキュリティー |
モニター付オートロック、オートロック、モニター付インターホン |
| 収納 |
ウォークインクローゼット、収納スペース、クローゼット、シューズボックス |
| 設備・サービス |
床暖房、室内洗濯機置場、洗濯機置場、フローリング、都市ガス、エアコン、暖房 |
| TV・通信 |
インターネット対応、インターネット使用料無料、CATVインターネット、ケーブルTV |
| その他 |
宅配BOX、バルコニー、駐輪場、エレベーター |
| 契約期間 |
2年 |
現況 |
空家 |
| 条件等 |
- |
入居可能時期 |
即時 |
| 更新料 |
新賃料 1ヶ月 |
物件番号 |
1145006416 |
| 情報公開日 |
2025年10月11日 |
次回更新予定日 |
2025年12月26日 |
| ケータイ用バーコード |
- スマートフォンでこの物件を見る
- スマートフォンからもこの物件をご覧になれます。
|
※「-」と表示されている項目については、情報提供会社にご確認ください。
ここから簡単にお問い合わせをすることができます。
(SSLでの暗号化での送信を希望されるお客さまは
こちら
よりお問い合わせください)
お問い合わせを行う前に
「個人情報の取り扱いについて」を必ずお読みください。
「個人情報の取り扱いについて」に同意いただいた場合は「上記にご同意の上 確認画面へ進む」のボタンをクリックしてください。
個人情報の取り扱いについて
皆さまが送付された個人情報はアットホーム(株)のサーバを経由し、お問い合わせ先の不動産会社にメールまたはFAXにて転送されるためアットホーム(株)にも保管されます。アットホーム(株)で保管された個人情報の取り扱いについては、【こちら】をご覧ください。
また、本画面でご記入いただいた個人情報は、お問い合わせ先の不動産会社でも保管します。 お問い合わせ先の不動産会社が保管する個人情報の取り扱いについては、不動産会社に直接お問い合わせください。
国土交通大臣免許(1)第10543号 |
|---|
- 交通:
- 都営浅草線/大門駅 徒歩2分
- 東京都港区芝大門2丁目2-1 ACN芝大門ビルディング4階
- TEL:
- 03-6695-0040
- FAX:
- 03-6696-0156
- 所属団体:
- (一社)不動産流通経営協会会員(公社)東京都宅地建物取引業協会会員(公社)首都圏不動産公正取引協議会加盟
取引態様:代理  - 00276434
|
- スマートフォンで
この不動産会社を見る

|
- 提携サイト等より掲載されている物件情報につきましては、不動産会社詳細情報にリンクされていないものがあります。
- 物件に関するお問合せは、物件詳細ページの「情報提供会社」に表示されている不動産会社へ直接お願いいたします。
- 間取図は、現況を優先させていただきます。
- 映像は物件の一部を撮影したものです。物件の契約にあたっての最終判断はご自身の判断に基づいて行ってください。
- 仲介手数料について

アットホームは物件情報の適正化に努めております。
内容に誤りがある場合にはこちらへご連絡ください。