神奈川県川崎市宮前区土橋2丁目(鷺沼駅)の賃貸:物件詳細
交通 所在地 |
駅徒歩 |
賃料 管理費等 |
敷金/保証金 礼金 |
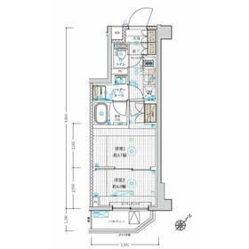
間取り 面積 |
物件種目 築年月 |
|
東急田園都市線/鷺沼
神奈川県川崎市宮前区土橋2丁目
|
10分
|
9.6万円
12,000円
|
なし / なし
1ヶ月
|
1K
26.86m²
|
賃貸マンション
2025年9月(築1年未満)
|
ペット相談、分譲タイプ、角部屋、最上階、外観タイル張り、IT重説対応物件、保証人不要
|
|
間取図
|
外観
|
<
その他の画像
>
|
| 交通 | 東急田園都市線 鷺沼駅 徒歩10分 |
|---|
| その他の交通 | 東急田園都市線 宮前平駅 徒歩12分 東急田園都市線 たまプラーザ駅 徒歩25分 |
| 所在地 |
神奈川県川崎市宮前区土橋2丁目
|
| 物件種目 |
賃貸マンション |
| 賃料 |
9.6万円 |
管理費等 |
12,000円 |
| 敷金 / 保証金 |
なし / なし |
礼金 |
1ヶ月 |
| 敷引 |
- |
保証金償却 |
- |
| その他一時金 |
エアコンクリーニング代:16,500円、24時間サポート:16,500円、室内清掃費用:66,000円 |
保険等 |
要 2年 18,000円 |
| 維持費等 |
- |
| 間取り |
1K(洋8.7) |
専有面積 |
26.86m² |
| 築年月 |
2025年9月(築1年未満)
|
階建 / 階 |
地上4階地下1階建 / 4階 |
| 建物構造 |
RC |
総戸数 |
- |
| 主要採光面 |
南東 |
駐車場 |
- |
| バイク置き場 |
無 |
駐輪場 |
無 |
| 建物名・部屋番号 |
ブライズ鷺沼 501 |
ペット |
相談 |
| アピールポイント |
エントランスと玄関の2つのロックで守られているので安全面に優れているオートロック機能があります。室内設備は浴室乾燥機・洗面所独立など豊富に揃っており、過ごしやすいお部屋になっております。専用ボックスがあるので、配達員と顔を合わせずに宅配便を受け取れます。BS対応なので、チューナーのご用意とご契約のみで視聴可能です。指定期日は令和7年10月となっておりますのでご連絡はお急ぎくださいね。忙しい朝に遠くまでゴミ捨てに行かずに済むように、共用部にゴミ置き場を備え付けております。このマンションはバルコニー付きでおすすめです。ペットと一緒にお引っ越ししたい方にもうれしい、ペット相談可の物件です。ダニなども気にならないフローリングの快適なマンションです。通勤やお出かけに便利な、徒歩10分に駅のある物件です。 |
| リフォーム履歴 |
- |
| リノベーション履歴 |
- |
| 備考 |
賃貸保証等:加入要(初回契約時:50%、更新時:15,000円、※学生プラン:初回契約時30% 更新料15000円)
管理形態/管理員の勤務形態:-/-
IT重説対応物件
|
| エネルギー消費性能 |
- |
| 断熱性能 |
- |
| 目安光熱費 |
- |
| バス・トイレ |
バス・トイレ別、浴室乾燥機、洗面所独立、洗面所、シャワー、温水洗浄便座、トイレ |
| キッチン |
システムキッチン、ガスコンロ可 |
| セキュリティー |
オートロック |
| 収納 |
収納スペース、クローゼット |
| 設備・サービス |
室内洗濯機置場、洗濯機置場、都市ガス給湯、給湯、フローリング、都市ガス、エアコン |
| TV・通信 |
インターネット対応、インターネット使用料無料、CS、BS端子 |
| その他 |
宅配BOX、バルコニー、エレベーター |
| 契約期間 |
2年 |
現況 |
居住中 |
| 条件等 |
- |
入居可能時期 |
相談 |
| 更新料 |
新賃料 1ヶ月 |
物件番号 |
1145191116 |
| 情報公開日 |
2025年10月11日 |
次回更新予定日 |
2025年12月26日 |
| ケータイ用バーコード |
- スマートフォンでこの物件を見る
- スマートフォンからもこの物件をご覧になれます。
|
※「-」と表示されている項目については、情報提供会社にご確認ください。
| 周辺施設 |
いなげや 川崎土橋店 |
| 距離 |
669m |
写真を見る |
| 周辺施設 |
ローソン 川崎土橋二丁目店 |
| 距離 |
105m |
写真を見る |
| 周辺施設 |
川崎市宮前区役所 |
| 距離 |
809m |
写真を見る |
ここから簡単にお問い合わせをすることができます。
(SSLでの暗号化での送信を希望されるお客さまは
こちら
よりお問い合わせください)
お問い合わせを行う前に
「個人情報の取り扱いについて」を必ずお読みください。
「個人情報の取り扱いについて」に同意いただいた場合は「上記にご同意の上 確認画面へ進む」のボタンをクリックしてください。
個人情報の取り扱いについて
皆さまが送付された個人情報はアットホーム(株)のサーバを経由し、お問い合わせ先の不動産会社にメールまたはFAXにて転送されるためアットホーム(株)にも保管されます。アットホーム(株)で保管された個人情報の取り扱いについては、【こちら】をご覧ください。
また、本画面でご記入いただいた個人情報は、お問い合わせ先の不動産会社でも保管します。 お問い合わせ先の不動産会社が保管する個人情報の取り扱いについては、不動産会社に直接お問い合わせください。
神奈川県知事免許(2)第29474号 |
|---|
- 交通:
- 東急田園都市線/溝の口駅 徒歩1分
- 神奈川県川崎市高津区溝口2丁目9-12 マルヒロビル6-3階
- TEL:
- 044-281-3342
- FAX:
- 044-281-3352
- 所属団体:
- (公社)全日本不動産協会会員(公社)首都圏不動産公正取引協議会加盟
取引態様:仲介  - 00266690
|
- スマートフォンで
この不動産会社を見る

|
- 提携サイト等より掲載されている物件情報につきましては、不動産会社詳細情報にリンクされていないものがあります。
- 物件に関するお問合せは、物件詳細ページの「情報提供会社」に表示されている不動産会社へ直接お願いいたします。
- 間取図は、現況を優先させていただきます。
- 映像は物件の一部を撮影したものです。物件の契約にあたっての最終判断はご自身の判断に基づいて行ってください。
- 仲介手数料について

アットホームは物件情報の適正化に努めております。
内容に誤りがある場合にはこちらへご連絡ください。