大阪府大阪市西区西本町1丁目(阿波座駅)の賃貸:物件詳細
交通 所在地 |
駅徒歩 |
賃料 管理費等 |
敷金/保証金 礼金 |
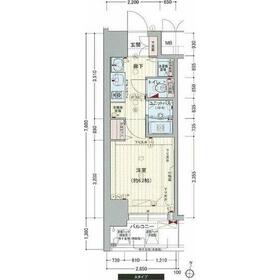
間取り 面積 |
物件種目 築年月 |
地下鉄中央線/阿波座
大阪府大阪市西区西本町1丁目
|
7分
|
6.64万円
9,650円
|
なし / なし
10万円
|
1K
21.66m²
|
賃貸マンション
2012年2月(築13年9ヶ月)
|
デザイナーズ、南向き、高齢者相談、24時間換気システム、IT重説対応物件
|
間取図
|
外観
|
<
その他の画像
>
|
交通 | 地下鉄中央線 阿波座駅 徒歩7分 |
---|
その他の交通 | 地下鉄御堂筋線 本町駅 徒歩8分 地下鉄長堀鶴見緑地線 西大橋駅 徒歩11分 |
所在地 |
大阪府大阪市西区西本町1丁目
|
物件種目 |
賃貸マンション |
賃料 |
6.64万円 |
管理費等 |
9,650円 |
敷金 / 保証金 |
なし / なし |
礼金 |
10万円 |
敷引 |
- |
保証金償却 |
- |
その他一時金 |
プレサポ24:990円、室内清掃費用:35,000円、鍵交換代等:29,700円~ |
保険等 |
要 1年 11,000円 |
維持費等 |
- |
クレジットカード決済 |
初期費用可 |
間取り |
1K(洋6.2) |
専有面積 |
21.66m² |
築年月 |
2012年2月(築13年9ヶ月)
|
階建 / 階 |
15階建 / 4階 |
建物構造 |
RC |
総戸数 |
- |
主要採光面 |
南 |
駐車場 |
近有 30,000円/月 |
バイク置き場 |
無 |
駐輪場 |
無 |
建物名・部屋番号 |
プレサンス本町ジョイス |
ペット |
-
|
アピールポイント |
来店不要で内覧・契約ができます。また、当社にてご契約の際は初期費用分割払いも可能です!お部屋探しのことなら富士ホームサービスまでご相談ください! |
リフォーム履歴 |
- |
リノベーション履歴 |
- |
備考 |
賃貸保証等:加入要(株式会社プレサンスギャランティ初回50% 月1.5% セーフティ初回50% 年10,000円)
管理形態/管理員の勤務形態:-/-
IT重説対応物件
※家具付き賃貸相談可
※図面と現状が異なる場合は現状優先となります。 (内装工事による各種仕様の変更・玄関及びバルコニーの形状・間取図面の反転タイプ・設備撤去等設備項目の変更、取扱など) ※退去時ハウスクリーニング代35000円 ※短期違約有
宅配業者と接触したくないと思っている人でも宅配ボックスがあるので接触せずに荷物を受け取ることができるので安心です。セキュリティ面は、オートロック・TVインターホンなどを設置しているので安全面でも優れております。収納スペースの多い洗面化粧台は、美容に気を使う小物の多い方におすすめです。収納はシューズボックス・クロゼットなど豊富なので、広々と空間を利用することも可能です。この物件は単身者様向けとなっております。インターネットが無料であるため、リモートワークを行うためにネットを多く利用する方にもおすすめです。空き家の物件です。暑い日も寒い日も使えるエアコンが付いており、空調管理に便利。このマンションはバルコニー付きで、用途に合わせて利用できます。扱いやすくオシャレな全居室フローリングのお住まいです。外装もおしゃれで快適な生活をおくることができるマン
|
エネルギー消費性能 |
- |
断熱性能 |
- |
目安光熱費 |
- |
バス・トイレ |
バス・トイレ別、洗面所独立、洗面所、シャワー、温水洗浄便座、トイレ |
キッチン |
システムキッチン、ガスコンロ可 |
セキュリティー |
モニター付オートロック、オートロック、モニター付インターホン、防犯カメラ |
収納 |
収納スペース、クローゼット、シューズボックス |
設備・サービス |
室内洗濯機置場、洗濯機置場、全居室フローリング、フローリング、エアコン |
TV・通信 |
インターネット対応、インターネット使用料無料、光ファイバー、ケーブルTV、BS端子 |
その他 |
宅配BOX、バルコニー、エレベーター |
契約期間 |
1年 |
現況 |
空家 |
条件等 |
- |
入居可能時期 |
相談 |
更新料 |
- |
物件番号 |
1145204316 |
情報公開日 |
2025年10月11日 |
次回更新予定日 |
2025年10月25日 |
ケータイ用バーコード |
- スマートフォンでこの物件を見る
- スマートフォンからもこの物件をご覧になれます。
|
※「-」と表示されている項目については、情報提供会社にご確認ください。
周辺施設 |
大阪西本町郵便局 |
距離 |
104m |
写真を見る |
周辺施設 |
ライフ Miniel西本町店 |
距離 |
258m |
写真を見る |
周辺施設 |
セブンイレブン 大阪靱本町2丁目店 |
距離 |
222m |
写真を見る |
周辺施設 |
つるまる西本町店 |
距離 |
294m |
写真を見る |
周辺施設 |
カフェ・ド・クリエ 西本町店 |
距離 |
467m |
写真を見る |
周辺施設 |
藤村歯科医院 |
距離 |
518m |
写真を見る |
ここから簡単にお問い合わせをすることができます。
(SSLでの暗号化での送信を希望されるお客さまは
こちら
よりお問い合わせください)
お問い合わせを行う前に
「個人情報の取り扱いについて」を必ずお読みください。
「個人情報の取り扱いについて」に同意いただいた場合は「上記にご同意の上 確認画面へ進む」のボタンをクリックしてください。
個人情報の取り扱いについて
皆さまが送付された個人情報はアットホーム(株)のサーバを経由し、お問い合わせ先の不動産会社にメールまたはFAXにて転送されるためアットホーム(株)にも保管されます。アットホーム(株)で保管された個人情報の取り扱いについては、【こちら】をご覧ください。
また、本画面でご記入いただいた個人情報は、お問い合わせ先の不動産会社でも保管します。 お問い合わせ先の不動産会社が保管する個人情報の取り扱いについては、不動産会社に直接お問い合わせください。
国土交通大臣免許(8)第4288号 |
---|
- 交通:
- 南海高野線/難波駅 徒歩3分
- 大阪府大阪市中央区日本橋2丁目7-12
- TEL:
- 06-6644-5573
- FAX:
- 06-6644-4173
- 所属団体:
- (一社)大阪府宅地建物取引業協会会員不動産公正取引協議会加盟
取引態様:仲介  - 50019585
|
- スマートフォンで
この不動産会社を見る

|
- 提携サイト等より掲載されている物件情報につきましては、不動産会社詳細情報にリンクされていないものがあります。
- 物件に関するお問合せは、物件詳細ページの「情報提供会社」に表示されている不動産会社へ直接お願いいたします。
- 間取図は、現況を優先させていただきます。
- 映像は物件の一部を撮影したものです。物件の契約にあたっての最終判断はご自身の判断に基づいて行ってください。
- 仲介手数料について

アットホームは物件情報の適正化に努めております。
内容に誤りがある場合にはこちらへご連絡ください。