東京都世田谷区宮坂3丁目(経堂駅)の賃貸:物件詳細
交通 所在地 |
駅徒歩 |
賃料 管理費等 |
敷金/保証金 礼金 |
間取り 面積 |
物件種目 築年月 |
|
小田急小田原線/経堂
東京都世田谷区宮坂3丁目
|
5分
|
20.9万円
15,000円
|
1ヶ月 / なし
1ヶ月
|
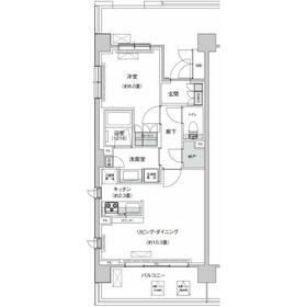
1LDK
47.15m²
|
賃貸マンション
2010年11月(築15年4ヶ月)
|
フロントサービス、常時ゴミ出し可能、角部屋、24時間換気システム、閑静な住宅街
|
|
間取図
|
その他
|
<
その他の画像
>
|
| 交通 | 小田急小田原線 経堂駅 徒歩5分 |
|---|
| その他の交通 | 東急世田谷線 山下駅 徒歩8分 小田急小田原線 豪徳寺駅 徒歩9分 |
| 所在地 |
東京都世田谷区宮坂3丁目
|
| 物件種目 |
賃貸マンション |
| 賃料 |
20.9万円 |
管理費等 |
15,000円 |
| 敷金 / 保証金 |
1ヶ月 / なし |
礼金 |
1ヶ月 |
| 敷引 |
- |
保証金償却 |
- |
| その他一時金 |
なし、鍵交換代等:22,000円~ |
保険等 |
要 1年 10,400円 |
| 維持費等 |
- |
| 間取り |
1LDK(LD12.6、洋6) |
専有面積 |
47.15m² |
| 築年月 |
2010年11月(築15年4ヶ月)
|
階建 / 階 |
11階建 / 6階 |
| 建物構造 |
RC |
総戸数 |
- |
| 主要採光面 |
南西 |
駐車場 |
有 33,000円/月 |
| バイク置き場 |
有 3,300円/月 |
駐輪場 |
有 |
| 建物名・部屋番号 |
リージア経堂テラスガーデン 618 |
ペット |
-
|
| リフォーム履歴 |
- |
| リノベーション履歴 |
- |
| 備考 |
賃貸保証等:加入要(オリコフォレントインシュア オリコフォレントインシュア加入 初回保証料・月額総賃料の50% 月額費用330円 更新料1年毎に10,000円)
管理形態/管理員の勤務形態:-/日勤
駐車場敷金:1.00ヶ月
管理人日勤
経堂駅から徒歩5分の賃貸マンションです!
「経堂」駅より徒歩5分のリージア経堂テラスガーデン。ショップやスーパー、スポーツクラブなどが集まる「経堂テラスガーデン」や駅周辺の商店街など暮らしに便利な施設が揃う好立地です。
|
| エネルギー消費性能 |
- |
| 断熱性能 |
- |
| 目安光熱費 |
- |
| バス・トイレ |
バス・トイレ別、浴室乾燥機、オートバス、追焚機能、洗面所独立、洗面所、シャワー、温水洗浄便座、トイレ |
| キッチン |
カウンターキッチン、システムキッチン、3口以上コンロ、ガスコンロ可、グリル |
| セキュリティー |
モニター付オートロック、オートロック、モニター付インターホン、ディンプルキー、ダブルロックドア、防犯カメラ |
| 収納 |
収納スペース、クローゼット、シューズボックス |
| 設備・サービス |
室内洗濯機置場、洗濯機置場、全居室フローリング、フローリング、都市ガス、エアコン |
| TV・通信 |
インターネット対応、光ファイバー、ケーブルTV、CS、BS端子 |
| その他 |
宅配BOX、バイク置き場、バルコニー、駐輪場、エレベーター |
| 契約期間 |
2年 |
現況 |
空家 |
| 条件等 |
定期借家 |
入居可能時期 |
相談 |
| 更新料 |
- |
物件番号 |
1145665619 |
| 情報公開日 |
2026年2月2日 |
次回更新予定日 |
2026年2月16日 |
| ケータイ用バーコード |
- スマートフォンでこの物件を見る
- スマートフォンからもこの物件をご覧になれます。
|
※「-」と表示されている項目については、情報提供会社にご確認ください。
| 周辺施設 |
経堂コルティ |
| 距離 |
498m |
写真を見る |
ここから簡単にお問い合わせをすることができます。
(SSLでの暗号化での送信を希望されるお客さまは
こちら
よりお問い合わせください)
お問い合わせを行う前に
「個人情報の取り扱いについて」を必ずお読みください。
「個人情報の取り扱いについて」に同意いただいた場合は「上記にご同意の上 確認画面へ進む」のボタンをクリックしてください。
個人情報の取り扱いについて
皆さまが送付された個人情報はアットホーム(株)のサーバを経由し、お問い合わせ先の不動産会社にメールまたはFAXにて転送されるためアットホーム(株)にも保管されます。アットホーム(株)で保管された個人情報の取り扱いについては、【こちら】をご覧ください。
また、本画面でご記入いただいた個人情報は、お問い合わせ先の不動産会社でも保管します。 お問い合わせ先の不動産会社が保管する個人情報の取り扱いについては、不動産会社に直接お問い合わせください。
国土交通大臣免許(15)第1168号 |
|---|
- 交通:
- 小田急小田原線/新百合ヶ丘駅 徒歩1分
- 神奈川県川崎市麻生区万福寺1丁目18-1
- TEL:
- 044-966-5286
- FAX:
- 044-966-0913
- 所属団体:
- (一社)不動産協会会員(一社)不動産流通経営協会会員(公社)首都圏不動産公正取引協議会加盟
取引態様:貸主  - 00262715
|
- スマートフォンで
この不動産会社を見る

|
- 提携サイト等より掲載されている物件情報につきましては、不動産会社詳細情報にリンクされていないものがあります。
- 物件に関するお問合せは、物件詳細ページの「情報提供会社」に表示されている不動産会社へ直接お願いいたします。
- 間取図は、現況を優先させていただきます。
- 映像は物件の一部を撮影したものです。物件の契約にあたっての最終判断はご自身の判断に基づいて行ってください。
- 仲介手数料について

アットホームは物件情報の適正化に努めております。
内容に誤りがある場合にはこちらへご連絡ください。