大阪府大阪市都島区都島北通1丁目(都島駅)の賃貸:物件詳細
交通 所在地 |
駅徒歩 |
賃料 管理費等 |
敷金/保証金 礼金 |
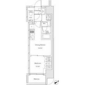
間取り 面積 |
物件種目 築年月 |
|
地下鉄谷町線/都島
大阪府大阪市都島区都島北通1丁目
|
2分
|
10.3万円
12,000円
|
なし / なし
1ヶ月
|
1DK
28.49m²
|
賃貸マンション
2025年1月
|
ペット相談、角部屋、保証人不要
|
|
間取図
|
外観
|
その他の画像
|
| 交通 | 地下鉄谷町線 都島駅 徒歩2分 |
| 所在地 |
大阪府大阪市都島区都島北通1丁目
|
| 物件種目 |
賃貸マンション |
| 賃料 |
10.3万円 |
管理費等 |
12,000円 |
| 敷金 / 保証金 |
なし / なし |
礼金 |
1ヶ月 |
| 敷引 |
- |
保証金償却 |
- |
| その他一時金 |
なし |
保険等 |
要 2年 32,000円 |
| 維持費等 |
- |
クレジットカード決済 |
初期費用可 |
| 間取り |
1DK(LDK8、洋3.5) |
専有面積 |
28.49m² |
| 築年月 |
2025年1月
|
階建 / 階 |
13階建 / 10階 |
| 建物構造 |
RC |
総戸数 |
- |
| 主要採光面 |
東 |
駐車場 |
空無 |
| バイク置き場 |
有 |
駐輪場 |
有 |
| 建物名・部屋番号 |
ザ・パークハビオ都島テラス |
ペット |
相談 |
| アピールポイント |
ぜひ一度見ていただきたい、「ザ・パークハビオ都島テラス」です。留守中に注文した商品が届くので、配送時間を気にせず注文ができる宅配ボックスを共用部に備えております。セキュリティ面は、TVインターホン・オートロックなど充実しているので、防犯対策もばっちりです。浴室や洗濯物からスピーディーに湿気を除去してカビを防げる、浴室乾燥機付きの物件です。収納はシューズボックス・クロゼットなど豊富なので、広々と空間を利用することも可能です。防犯カメラが付いているので、犯罪の抑止や不法投棄などによる入居者同士のトラブルも防止できます。賃料10.3万円の物件です。日勤で管理人が巡回している物件なので安心して暮らせます。インターネットをご利用いただける物件です。コンロとシンクの間に隙間がなく、掃除が簡単なためキッチンを綺麗に保ちやすいシステムキッチンがあります。水回りにもこだわりたい方には1DKで快適に生活を送りましょう。 |
| リフォーム履歴 |
- |
| リノベーション履歴 |
- |
| 備考 |
賃貸保証等:利用可(初回 総賃料50% / 年更新料 10,000円)
管理形態/管理員の勤務形態:-/日勤
管理人日勤
お部屋探しの条件をお待ちしております!
初期費用についてはお問合せ下さいませ。ご案内日時等お聞きできればスムーズに対応させて頂きます
|
| エネルギー消費性能 |
- |
| 断熱性能 |
- |
| 目安光熱費 |
- |
| バス・トイレ |
バス・トイレ別、浴室乾燥機、追焚機能、洗面台、シャワー、温水洗浄便座、トイレ |
| キッチン |
システムキッチン、2口コンロ、ガスコンロ可 |
| セキュリティー |
モニター付オートロック、オートロック、モニター付インターホン、防犯カメラ |
| 収納 |
収納スペース、クローゼット、シューズボックス |
| 設備・サービス |
室内洗濯機置場、洗濯機置場、フローリング、都市ガス、エアコン |
| TV・通信 |
インターネット対応、インターネット使用料無料、光ファイバー、ケーブルTV |
| その他 |
宅配BOX、バイク置き場、バルコニー、駐輪場、エレベーター |
| 契約期間 |
2年 |
現況 |
空家 |
| 条件等 |
- |
入居可能時期 |
即時 |
| 更新料 |
新賃料 0.5ヶ月 |
物件番号 |
1145852316 |
| 情報公開日 |
2025年10月12日 |
次回更新予定日 |
2025年10月26日 |
| ケータイ用バーコード |
- スマートフォンでこの物件を見る
- スマートフォンからもこの物件をご覧になれます。
|
※「-」と表示されている項目については、情報提供会社にご確認ください。
| 周辺施設 |
長柄東公園 |
| 距離 |
1023m |
写真を見る |
| 周辺施設 |
TSUTAYA・ CLUBトーワブックス毛馬店 |
| 距離 |
1473m |
写真を見る |
| 周辺施設 |
なにわの湯 |
| 距離 |
2049m |
写真を見る |
| 周辺施設 |
天神橋商店街 |
| 距離 |
1599m |
写真を見る |
ここから簡単にお問い合わせをすることができます。
(SSLでの暗号化での送信を希望されるお客さまは
こちら
よりお問い合わせください)
お問い合わせを行う前に
「個人情報の取り扱いについて」を必ずお読みください。
「個人情報の取り扱いについて」に同意いただいた場合は「上記にご同意の上 確認画面へ進む」のボタンをクリックしてください。
個人情報の取り扱いについて
皆さまが送付された個人情報はアットホーム(株)のサーバを経由し、お問い合わせ先の不動産会社にメールまたはFAXにて転送されるためアットホーム(株)にも保管されます。アットホーム(株)で保管された個人情報の取り扱いについては、【こちら】をご覧ください。
また、本画面でご記入いただいた個人情報は、お問い合わせ先の不動産会社でも保管します。 お問い合わせ先の不動産会社が保管する個人情報の取り扱いについては、不動産会社に直接お問い合わせください。
大阪府知事免許(6)第47283号 |
|---|
- 交通:
- 地下鉄御堂筋線/なんば駅 徒歩4分
- 大阪府大阪市浪速区難波中1丁目1-16
- TEL:
- 06-6633-2100
- FAX:
- 06-6633-2600
- 所属団体:
- (一社)大阪府宅地建物取引業協会会員(公社)近畿地区不動産公正取引協議会加盟
取引態様:仲介  - 50014473
|
- スマートフォンで
この不動産会社を見る

|
- 提携サイト等より掲載されている物件情報につきましては、不動産会社詳細情報にリンクされていないものがあります。
- 物件に関するお問合せは、物件詳細ページの「情報提供会社」に表示されている不動産会社へ直接お願いいたします。
- 間取図は、現況を優先させていただきます。
- 映像は物件の一部を撮影したものです。物件の契約にあたっての最終判断はご自身の判断に基づいて行ってください。
- 仲介手数料について

アットホームは物件情報の適正化に努めております。
内容に誤りがある場合にはこちらへご連絡ください。