東京都板橋区板橋4丁目(新板橋駅)の賃貸:物件詳細
交通 所在地 |
駅徒歩 |
賃料 管理費等 |
敷金/保証金 礼金 |
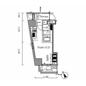
間取り 面積 |
物件種目 築年月 |
|
都営三田線/新板橋
東京都板橋区板橋4丁目
|
2分
|
10.3万円
5,000円
|
10.3万円 / なし
10.3万円
|
ワンルーム
24.63m²
|
賃貸マンション
2007年2月(築18年9ヶ月)
|
ペット相談、楽器相談、常時ゴミ出し可能、南向き、IT重説対応物件
|
|
間取図
|
外観
|
<
その他の画像
>
|
| 交通 | 都営三田線 新板橋駅 徒歩2分 |
|---|
| その他の交通 | JR埼京線 板橋駅 徒歩8分 都営三田線 西巣鴨駅 徒歩11分 |
| 所在地 |
東京都板橋区板橋4丁目
|
| 物件種目 |
賃貸マンション |
| 賃料 |
10.3万円 |
管理費等 |
5,000円 |
| 敷金 / 保証金 |
10.3万円 / なし |
礼金 |
10.3万円 |
| 敷引 |
- |
保証金償却 |
- |
| その他一時金 |
鍵交換費用:16,500円、室内清掃費用:55,000円 |
保険等 |
要 2年 |
| 維持費等 |
口座振替手数料:110円/月 |
| 間取り |
ワンルーム |
専有面積 |
24.63m² |
| 築年月 |
2007年2月(築18年9ヶ月)
|
階建 / 階 |
地上14階地下1階建 / 7階 |
| 建物構造 |
RC |
総戸数 |
60戸 |
| 主要採光面 |
南 |
駐車場 |
無 |
| バイク置き場 |
無 |
駐輪場 |
無 |
| 建物名・部屋番号 |
パークアクシス新板橋ウエスト |
ペット |
相談 |
| アピールポイント |
東京都豊島区・板橋区周辺、JR山手線・西武池袋線・東武東上線・東京メトロ丸の内線の賃貸物件のご紹介はミニミニ池袋西口店にお任せください!【お部屋探しはミニミニ池袋西口店で】初期費用のお見積りもお気軽にご相談ください。 |
| リフォーム履歴 |
- |
| リノベーション履歴 |
- |
| 備考 |
賃貸保証等:加入要(レジデントアシスタンス 家賃保証会社 初回保証料 賃料等 (下限25,000円)50% 2年目以降/年9,600円)
管理形態/管理員の勤務形態:-/-
IT重説対応物件
|
| エネルギー消費性能 |
- |
| 断熱性能 |
- |
| 目安光熱費 |
- |
| バス・トイレ |
バス・トイレ別、浴室乾燥機、温水洗浄便座、トイレ |
| キッチン |
システムキッチン、ガスコンロ付 |
| セキュリティー |
オートロック |
| 収納 |
クローゼット、シューズボックス |
| 設備・サービス |
室内洗濯機置場、都市ガス給湯、給湯、フローリング、都市ガス、エアコン |
| TV・通信 |
インターネット対応、ケーブルTV、CS、BS端子 |
| その他 |
宅配BOX、バルコニー、エレベーター |
| 契約期間 |
2年 |
現況 |
空家 |
| 条件等 |
- |
入居可能時期 |
即時 |
| 更新料 |
新賃料 1ヶ月 |
物件番号 |
1146788708 |
| 情報公開日 |
2025年9月25日 |
次回更新予定日 |
2025年11月9日 |
| ケータイ用バーコード |
- スマートフォンでこの物件を見る
- スマートフォンからもこの物件をご覧になれます。
|
※「-」と表示されている項目については、情報提供会社にご確認ください。
| 周辺施設 |
区立滝野川第六小学校 |
| 距離 |
380m |
写真を見る |
ここから簡単にお問い合わせをすることができます。
(SSLでの暗号化での送信を希望されるお客さまは
こちら
よりお問い合わせください)
お問い合わせを行う前に
「個人情報の取り扱いについて」を必ずお読みください。
「個人情報の取り扱いについて」に同意いただいた場合は「上記にご同意の上 確認画面へ進む」のボタンをクリックしてください。
個人情報の取り扱いについて
皆さまが送付された個人情報はアットホーム(株)のサーバを経由し、お問い合わせ先の不動産会社にメールまたはFAXにて転送されるためアットホーム(株)にも保管されます。アットホーム(株)で保管された個人情報の取り扱いについては、【こちら】をご覧ください。
また、本画面でご記入いただいた個人情報は、お問い合わせ先の不動産会社でも保管します。 お問い合わせ先の不動産会社が保管する個人情報の取り扱いについては、不動産会社に直接お問い合わせください。
国土交通大臣免許(5)第6346号 |
|---|
- 交通:
- JR山手線/池袋駅 徒歩1分
- 東京都豊島区西池袋1丁目19-1 39ビル2F
- TEL:
- 03-5911-3200
- FAX:
- 03-5911-3215
取引態様:仲介  - 00784035
|
- スマートフォンで
この不動産会社を見る

|
- 提携サイト等より掲載されている物件情報につきましては、不動産会社詳細情報にリンクされていないものがあります。
- 物件に関するお問合せは、物件詳細ページの「情報提供会社」に表示されている不動産会社へ直接お願いいたします。
- 間取図は、現況を優先させていただきます。
- 映像は物件の一部を撮影したものです。物件の契約にあたっての最終判断はご自身の判断に基づいて行ってください。
- 仲介手数料について

アットホームは物件情報の適正化に努めております。
内容に誤りがある場合にはこちらへご連絡ください。