東京都千代田区神田淡路町1丁目(新御茶ノ水駅)の賃貸:物件詳細
交通 所在地 |
駅徒歩 |
賃料 管理費等 |
敷金/保証金 礼金 |
間取り 面積 |
物件種目 築年月 |
|
東京メトロ千代田線/新御茶ノ水
東京都千代田区神田淡路町1丁目
|
1分
|
13万円
10,000円
|
1ヶ月 / なし
1ヶ月
|
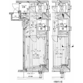
1K
25.78m²
|
賃貸マンション
2004年1月(築22年3ヶ月)
|
ペット相談、楽器相談、二人入居可、保証人不要
|
|
間取図
|
外観
|
<
その他の画像
>
|
| 交通 | 東京メトロ千代田線 新御茶ノ水駅 徒歩1分 |
|---|
| その他の交通 | 都営新宿線 小川町駅 徒歩1分 東京メトロ丸ノ内線 淡路町駅 徒歩1分 |
| 所在地 |
東京都千代田区神田淡路町1丁目
|
| 物件種目 |
賃貸マンション |
| 賃料 |
13万円 |
管理費等 |
10,000円 |
| 敷金 / 保証金 |
1ヶ月 / なし |
礼金 |
1ヶ月 |
| 敷引 |
- |
保証金償却 |
- |
| その他一時金 |
24時間サポート(くらしーど24):16,500円、書類作成費:5,500円、鍵交換代等:27,500円~ |
保険等 |
要 2年 20,000円 |
| 維持費等 |
- |
| 間取り |
1K(洋7.3) |
専有面積 |
25.78m² |
| 築年月 |
2004年1月(築22年3ヶ月)
|
階建 / 階 |
8階建 / 6階 |
| 建物構造 |
RC |
総戸数 |
- |
| 主要採光面 |
南東 |
駐車場 |
- |
| バイク置き場 |
- |
駐輪場 |
- |
| 建物名・部屋番号 |
デュオ・スカーラ御茶ノ水Ⅱ |
ペット |
小型犬可・ 猫可 |
| アピールポイント |
収納はクロゼット・シューズボックスなど豊富なので、広々と空間を利用することも可能です。セキュリティ面は、オートロック・TVインターホンなど充実しているので安心して生活できます。浴室乾燥機が付いているので、雨の日で濡れた上着や傘もすぐに乾燥できます。共用部には宅配ボックスを設置しているため、家で何時間も待機する必要がありません。2026年3月に入居可能予定の非常に好条件の物件となっております。徒歩1分の位置に駅がある物件です。こちらの物件はエレベーター付きです。転居先に住み心地も良いこちらの賃貸物件。充実した新生活を過ごしましょう。不在中でも管理人が定期巡回しているので万が一の時に心強い。防犯対策もバッチリなマンションタイプの物件です。ペット好きのお客様には嬉しい、ペット相談可能な物件です。 |
| リフォーム履歴 |
- |
| リノベーション履歴 |
- |
| 備考 |
賃貸保証等:加入要(初回委託保証料:月額総賃料40%~ 継続保証料:月or年払い(保険会社により異なる) 外国籍プラン:別途2,200円(保証会社により異なる))
管理形態/管理員の勤務形態:-/巡回
バルコニー:2.16m²
管理人巡回
浴室乾燥機付きの物件なので、浴室乾燥機をつけて湿気を除去すればカビの発生を予防できます。セキュリティ面は、TVインターホン・オートロックなどを設置しているので安全面でも優れております。収納はクロゼット・シューズボックスなど豊富なので、広々と空間を利用することも可能です。共用部には宅配ボックスが備え付けられているため、荷物の受け取りのために早く帰宅する必要がありません。令和8年3月までの引越し予定の方はニーズのあるこの物件が良いです。この物件はバルコニー付きで、用途に合わせて活用できおすすめです。ルームシェア相談可の物件です。調理を同時に進めることで忙しい朝でも短い時間で料理ができる2口コンロがあります。バルコニーの広さが2.16平米ある物件です。管理人が巡回しているので、安心して生活できます。この建物の敷地内にごみ置き場があります。
|
| エネルギー消費性能 |
- |
| 断熱性能 |
- |
| 目安光熱費 |
- |
| バス・トイレ |
バス・トイレ別、浴室乾燥機、温水洗浄便座、トイレ |
| キッチン |
システムキッチン、2口コンロ、ガスコンロ可 |
| セキュリティー |
モニター付オートロック、オートロック、モニター付インターホン |
| 収納 |
収納スペース、クローゼット、シューズボックス |
| 設備・サービス |
室内洗濯機置場、洗濯機置場、フローリング、都市ガス、エアコン |
| TV・通信 |
インターネット対応、ケーブルTV、CS、BS端子 |
| その他 |
宅配BOX、バルコニー、エレベーター |
| 契約期間 |
2年 |
現況 |
居住中 |
| 条件等 |
- |
入居可能時期 |
2026年3月下旬予定 |
| 更新料 |
新賃料 1ヶ月 |
物件番号 |
1146832922 |
| 情報公開日 |
2026年2月19日 |
次回更新予定日 |
2026年3月5日 |
| ケータイ用バーコード |
- スマートフォンでこの物件を見る
- スマートフォンからもこの物件をご覧になれます。
|
※「-」と表示されている項目については、情報提供会社にご確認ください。
| 周辺施設 |
マルエツプチ神田司町店 |
| 距離 |
319m |
写真を見る |
| 周辺施設 |
まいばすけっと 神田駅北口店 |
| 距離 |
505m |
写真を見る |
| 周辺施設 |
サミットストア神田スクエア店 |
| 距離 |
545m |
写真を見る |
| 周辺施設 |
セブンイレブン神田万世橋南店 |
| 距離 |
153m |
写真を見る |
| 周辺施設 |
セブンイレブン万世橋南店 |
| 距離 |
153m |
写真を見る |
| 周辺施設 |
セブンイレブン神田万世橋南店 |
| 距離 |
153m |
写真を見る |
| 周辺施設 |
くすりの福太郎 神田小川町店 |
| 距離 |
327m |
写真を見る |
| 周辺施設 |
神田駅前郵便局 |
| 距離 |
521m |
写真を見る |
ここから簡単にお問い合わせをすることができます。
(SSLでの暗号化での送信を希望されるお客さまは
こちら
よりお問い合わせください)
お問い合わせを行う前に
「個人情報の取り扱いについて」を必ずお読みください。
「個人情報の取り扱いについて」に同意いただいた場合は「上記にご同意の上 確認画面へ進む」のボタンをクリックしてください。
個人情報の取り扱いについて
皆さまが送付された個人情報はアットホーム(株)のサーバを経由し、お問い合わせ先の不動産会社にメールまたはFAXにて転送されるためアットホーム(株)にも保管されます。アットホーム(株)で保管された個人情報の取り扱いについては、【こちら】をご覧ください。
また、本画面でご記入いただいた個人情報は、お問い合わせ先の不動産会社でも保管します。 お問い合わせ先の不動産会社が保管する個人情報の取り扱いについては、不動産会社に直接お問い合わせください。
東京都知事免許(4)第86265号 |
|---|
- 交通:
- JR山手線/渋谷駅 徒歩8分
- 東京都渋谷区円山町3-6 E・スペースタワー11F
- TEL:
- 03-6757-0789
- FAX:
- 03-6633-7131
- 所属団体:
- (公社)東京都宅地建物取引業協会会員(公社)首都圏不動産公正取引協議会加盟
取引態様:代理  - 00785722
|
- スマートフォンで
この不動産会社を見る

|
- 提携サイト等より掲載されている物件情報につきましては、不動産会社詳細情報にリンクされていないものがあります。
- 物件に関するお問合せは、物件詳細ページの「情報提供会社」に表示されている不動産会社へ直接お願いいたします。
- 間取図は、現況を優先させていただきます。
- 映像は物件の一部を撮影したものです。物件の契約にあたっての最終判断はご自身の判断に基づいて行ってください。
- 仲介手数料について

アットホームは物件情報の適正化に努めております。
内容に誤りがある場合にはこちらへご連絡ください。