東京都大田区東馬込1丁目(馬込駅)の賃貸:物件詳細
交通 所在地 |
駅徒歩 |
賃料 管理費等 |
敷金/保証金 礼金 |
間取り 面積 |
物件種目 築年月 |
|
都営浅草線/馬込
東京都大田区東馬込1丁目
|
3分
|
8.7万円
8,000円
|
なし / なし
1ヶ月
|
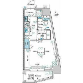
1K
24.14m²
|
賃貸マンション
2010年1月(築15年11ヶ月)
|
ペット相談
|
|
間取図
|
外観
|
その他の画像
|
| 交通 | 都営浅草線 馬込駅 徒歩3分 |
|---|
| その他の交通 | 都営浅草線 中延駅 徒歩8分 東急大井町線 荏原町駅 徒歩12分 |
| 所在地 |
東京都大田区東馬込1丁目
|
| 物件種目 |
賃貸マンション |
| 賃料 |
8.7万円 |
管理費等 |
8,000円 |
| 敷金 / 保証金 |
なし / なし |
礼金 |
1ヶ月 |
| 敷引 |
- |
保証金償却 |
- |
| その他一時金 |
契約手数料(税別):5,000円、鍵交換費用(税別):20,000円 |
保険等 |
要 2年 20,000円 |
| 維持費等 |
24時間サポ-ト:1,100円/月 |
| 間取り |
1K |
専有面積 |
24.14m² |
| 築年月 |
2010年1月(築15年11ヶ月)
|
階建 / 階 |
11階建 / 6階 |
| 建物構造 |
RC |
総戸数 |
- |
| 主要採光面 |
|
駐車場 |
- |
| バイク置き場 |
- |
駐輪場 |
- |
| 建物名・部屋番号 |
グラントゥルース馬込 602 |
ペット |
相談 |
| アピールポイント |
セキュリティ面は、TVインターホン・オートロックなどを備え付けているので安心して暮らせます。宅配業者が来たときに業者の人との接触をためらうという方でも宅配ボックスがあるので、対面で会わずに荷物を受け取ることができます。洗面所が独立しているので、ニーズの高い物件です。徒歩3分で駅にアクセスできる物件です。BS・CSに加入することができます。こちらは1ヶ月の家賃が8.7万円のお部屋です。たくさんの料理をまとめて作ることで忙しい日でもすぐに料理を作れる2口コンロを備え付けております。2駅利用できる立地となっていて、アクセスが良いです。キッチン付きの物件です。共用設備の充実している、楽しく生活できるマンションです。 |
| リフォーム履歴 |
- |
| リノベーション履歴 |
- |
| 備考 |
賃貸保証等:加入要(イントラスト 初回保証委託料:賃料+管理費の50~100%、年間保証料12,000円ミライズインシュア/日本セーフティ/ルームバンクインシュア)
管理形態/管理員の勤務形態:-/-
クリーニング費用は退去時請求:45,000円(税別)エアコン洗浄費用:12,000円×設置台数(税別)
1年未満の解約:賃料+管理費の2ヵ月 1年以上2年未満の解約:賃料+管理費1ヵ月 解約予告:2ヶ月前
宅配ボックスがあればいつでも荷物を受け取ることができるので、配達時間に拘束されることなく生活することができます。化粧品やスタイリング剤などをまとめて出し入れして、サッと身支度を整えられる独立洗面台が付いております。セキュリティ面は、TVインターホン・オートロックなどを設置しているので安全面でも優れております。CATVは充実のチャンネルが魅力の、夜更かし注意の楽しすぎるコンテンツです。敷地内にはごみ置き場も設置されています。徒歩3分で駅にアクセス可能な、魅力的な駅近物件です。インターネットの使用が可能な物件です。暑い夏、寒い冬には必須のエアコンが付いています。付近に駅が2駅あり、行き先に応じて使い分けができます。BS、CSはテレビ好きの方にとってとても嬉しいサービスです。
|
| エネルギー消費性能 |
- |
| 断熱性能 |
- |
| 目安光熱費 |
- |
| バス・トイレ |
バス・トイレ別、洗面所独立、洗面所、トイレ |
| キッチン |
2口コンロ、ガスコンロ可 |
| セキュリティー |
モニター付オートロック、オートロック、モニター付インターホン |
| 収納 |
- |
| 設備・サービス |
室内洗濯機置場、洗濯機置場、都市ガス、エアコン |
| TV・通信 |
インターネット対応、ケーブルTV、CS、BS端子 |
| その他 |
宅配BOX、エレベーター |
| 契約期間 |
2年 |
現況 |
居住中 |
| 条件等 |
- |
入居可能時期 |
2026年1月上旬予定 |
| 更新料 |
新賃料 1ヶ月 |
物件番号 |
1147087716 |
| 情報公開日 |
2025年10月14日 |
次回更新予定日 |
2025年11月11日 |
| ケータイ用バーコード |
- スマートフォンでこの物件を見る
- スマートフォンからもこの物件をご覧になれます。
|
※「-」と表示されている項目については、情報提供会社にご確認ください。
ここから簡単にお問い合わせをすることができます。
(SSLでの暗号化での送信を希望されるお客さまは
こちら
よりお問い合わせください)
お問い合わせを行う前に
「個人情報の取り扱いについて」を必ずお読みください。
「個人情報の取り扱いについて」に同意いただいた場合は「上記にご同意の上 確認画面へ進む」のボタンをクリックしてください。
個人情報の取り扱いについて
皆さまが送付された個人情報はアットホーム(株)のサーバを経由し、お問い合わせ先の不動産会社にメールまたはFAXにて転送されるためアットホーム(株)にも保管されます。アットホーム(株)で保管された個人情報の取り扱いについては、【こちら】をご覧ください。
また、本画面でご記入いただいた個人情報は、お問い合わせ先の不動産会社でも保管します。 お問い合わせ先の不動産会社が保管する個人情報の取り扱いについては、不動産会社に直接お問い合わせください。
(株)ハウスフレンド東京都知事免許(7)第73741号 |
|---|
- 交通:
- JR総武線/秋葉原駅 徒歩3分
- 東京都千代田区神田相生町1番地 秋葉原センタープレイスビル11階
- TEL:
- 03-5577-5538
- FAX:
- 03-5577-5539
- 所属団体:
- (公社)東京都宅地建物取引業協会会員(公社)首都圏不動産公正取引協議会加盟
取引態様:代理 |
- 提携サイト等より掲載されている物件情報につきましては、不動産会社詳細情報にリンクされていないものがあります。
- 物件に関するお問合せは、物件詳細ページの「情報提供会社」に表示されている不動産会社へ直接お願いいたします。
- 間取図は、現況を優先させていただきます。
- 映像は物件の一部を撮影したものです。物件の契約にあたっての最終判断はご自身の判断に基づいて行ってください。
- 仲介手数料について

アットホームは物件情報の適正化に努めております。
内容に誤りがある場合にはこちらへご連絡ください。