不動産 賃貸 マンション等の住宅情報:埼玉住まい情報


埼玉県蕨市中央1丁目(蕨駅)の賃貸:物件詳細

  • 物件詳細
  • 情報の見方
  • 印刷用画面
交通
所在地
駅徒歩 賃料
管理費等
敷金/保証金
礼金
間取り
面積
物件種目
築年月

JR京浜東北線/ 新着

埼玉県蕨市中央1丁目

11分

14.5万円

なし

1ヶ月 / なし

なし

3LDK

75.05m²

賃貸マンション

1984年7月(築41年4ヶ月)

おすすめPOINTペット相談、最上階

おすすめコメント

入浴後でも温度や湿度に悩まされずに化粧やヘアメイクができる独立洗面台を採用しています。知らない人が来た時でも玄関を開ける必要がなくなるモニター付きインターホンがあります。賃料14.5万円の物件です。

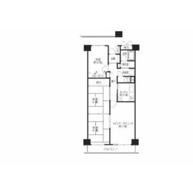
間取図

間取図

外観

外観

<
その他の画像
  • その他
  • 共有部分
  • 共有部分
  • 玄関
  • 玄関
  • リビング
  • キッチン
  • バス/シャワー
  • トイレ
  • リビング
  • 室内
  • 洗面
  • 眺望
  • 省エネ
  • 販売店
  • 飲食店
  • コンビニ
  • 飲食店
  • 郵便局
>
    • とりあえず保存
    • お問い合わせ
    交通

    JR京浜東北線 蕨駅 徒歩11分

    その他の交通

    JR京浜東北線 西川口駅 徒歩22分

    所在地 埼玉県蕨市中央1丁目
    物件種目 賃貸マンション
    賃料 14.5万円 管理費等 なし
    敷金 / 保証金 1ヶ月 / なし 礼金 なし
    敷引 保証金償却
    その他一時金 退去時清掃費(退去時):120,450円、鍵交換代等:27,500円~ 保険等 要 2年 28,000円
    維持費等
    間取り 3LDK(和6、和6、洋6、LDK11) 専有面積 75.05m²
    築年月 1984年7月(築41年4ヶ月) 階建 / 階 8階建 / 8階
    建物構造 SRC 総戸数
    主要採光面 南東 駐車場 空無
    バイク置き場 空無 駐輪場 有 300円/月
    建物名・部屋番号 ベルハイツ第二蕨 804 ペット 相談
    アピールポイント 室内設備はCATV・エアコン・照明付きなど豊富に揃っており、過ごしやすいお部屋になっております。セキュリティ面は、防犯カメラ・ディンプルキーなどを設置しているので安全面でも優れております。実際に見てみないことにはお部屋選びはできません。すぐに内覧もできる空き部屋です。外装もおしゃれで快適な生活をおくることができるマンションです。バルコニー付きのマンションで、用途に合わせて使用できます。自宅から2駅利用できる、利便性の高いマンションです。ペットの飼育が可能かどうかを事前にご相談いただけます。新しい日々を送るにふさわしい、きれいな室内です。なんと専有面積が75.05平米もございます。
    リフォーム履歴
    リノベーション履歴
    備考
    賃貸保証等:加入要(初回保証委託料(Jリース)月額賃料等50%・継続保証料800円/月(口座引落手数料込)・24時間サポート300円/月)
    管理形態/管理員の勤務形態:-/-
    バルコニー:7.44m²
    独立洗面台はコンセントや照明、大きな鏡などがついているので化粧や身支度の際に便利です。モニターで来訪者を確認して、インターホンを通じて室内から会話することができます。暑い日も寒い日も使えるエアコンが付いており、空調管理に便利。バルコニー付きのマンションで、用途に合わせて利用できおすすめです。専有面積は75.05平米です。2駅利用可能で利便性の高い物件です。こちらは3LDKの物件です。ペットと離れたくない方にもご紹介したい、ペット相談可の物件です。賃料14.5万円の物件です。
    エネルギー消費性能
    断熱性能
    目安光熱費
    バス・トイレ バス・トイレ別、洗面所独立、洗面所、温水洗浄便座、トイレ
    キッチン ガスコンロ可
    セキュリティー モニター付インターホン、ディンプルキー、防犯カメラ
    収納 収納スペース、シューズボックス
    設備・サービス 室内洗濯機置場、洗濯機置場、都市ガス、エアコン、照明器具
    TV・通信 インターネット対応、ケーブルTV
    その他 バイク置き場、バルコニー、駐輪場、エレベーター
    契約期間 2年 現況 空家
    条件等 入居可能時期 即時
    更新料 新賃料 1ヶ月 物件番号 1147175116
    情報公開日 2025年10月23日 次回更新予定日 2025年11月6日
    ケータイ用バーコード

    QRコード

    スマートフォンでこの物件を見る
    スマートフォンからもこの物件をご覧になれます。
    ※「-」と表示されている項目については、情報提供会社にご確認ください。

    この物件の周辺情報

    周辺施設 セイムス 蕨中央薬局
    距離 55m
    周辺施設 マクドナルド 蕨ヤオコー店
    距離 290m
    周辺施設 セブンイレブン 蕨中央1丁目店
    距離 326m
    周辺施設 マクドナルド 蕨東口店
    距離 774m
    周辺施設 蕨塚越郵便局
    距離 795m

    クイックお問い合わせ

    ここから簡単にお問い合わせをすることができます。
    (SSLでの暗号化での送信を希望されるお客さまは こちら よりお問い合わせください)

    お問い合わせ内容(必須)
    お名前(必須) 姓  名 
    メールアドレス(必須)
    ※携帯電話のメールアドレスをご入力される方はこちらをご確認ください
    電話番号(必須)
    - -

    ※入力いただいた電話番号へSMSまたは音声でパスワードをご連絡します。

    携帯電話の番号をご入力の方へ

    携帯電話の番号をご入力の方へ
    確認画面にて送信ボタンをクリックするとSMSが携帯電話に届きます。
    そのSMSに記載のパスワード(認証番号)を入力し、お問い合わせを完了してください。
    尚、SMSの送信者番号は 0005 202 760 となります。
    これはアットホームの固定番号です。

    備考欄 希望条件、物件案内希望日、質問などがございましたらご記入ください。
    お問い合わせを行う前に「個人情報の取り扱いについて」を必ずお読みください。
    「個人情報の取り扱いについて」に同意いただいた場合は「上記にご同意の上 確認画面へ進む」のボタンをクリックしてください。

    個人情報の取り扱いについて

    皆さまが送付された個人情報はアットホーム(株)のサーバを経由し、お問い合わせ先の不動産会社にメールまたはFAXにて転送されるためアットホーム(株)にも保管されます。アットホーム(株)で保管された個人情報の取り扱いについては、【こちら】をご覧ください。
    また、本画面でご記入いただいた個人情報は、お問い合わせ先の不動産会社でも保管します。 お問い合わせ先の不動産会社が保管する個人情報の取り扱いについては、不動産会社に直接お問い合わせください。

    情報提供会社

    情報提供会社

    (株)ID不動産

    埼玉県知事免許(2)第24124号

    交通:
    JR京浜東北線/西川口駅 徒歩5分
    埼玉県川口市並木4丁目1-5 木村ビル101
    TEL:
    048-250-3100
    FAX:
    048-254-3101
    所属団体:
    (公社)埼玉県宅地建物取引業協会会員
    (公社)首都圏不動産公正取引協議会加盟

    取引態様:仲介

    • 会社情報
    • 00267859
    スマートフォンで
    この不動産会社を見る
    QRコード
    • とりあえず保存
    • お問い合わせ
    • 提携サイト等より掲載されている物件情報につきましては、不動産会社詳細情報にリンクされていないものがあります。
    • 物件に関するお問合せは、物件詳細ページの「情報提供会社」に表示されている不動産会社へ直接お願いいたします。
    • 間取図は、現況を優先させていただきます。
    • 映像は物件の一部を撮影したものです。物件の契約にあたっての最終判断はご自身の判断に基づいて行ってください。
    • 仲介手数料について仲介手数料

    アットホームは物件情報の適正化に努めております。 内容に誤りがある場合にはこちらへご連絡ください。

    【埼玉住まい情報】では、日本全国の物件から賃貸マンションや賃貸アパート・賃貸一戸建て等の賃貸住宅情報、新築マンション・分譲マンションや中古マンション等の売買マンション情報、新築一戸建てや中古一戸建てなどの戸建住宅、 土地など、総合的な不動産住宅情報検索サービスを提供致します。
    【埼玉住まい情報】から、選りすぐりの不動産物件を探してみましょう。

    【免責事項】
    このコーナーの運営はアットホーム株式会社(https://www.athome.co.jp/)が行っています。
    このコーナーに掲載している物件情報は、「アットホーム不動産情報ネットワーク」に加盟する不動産会社等(情報提供元)から提供されています。信頼性の高い情報提供が行えるよう、最大限の努力をしておりますが、その内容を保証するものではありません。 利用者のみなさまと各情報提供元との取引に起因する損害および情報が掲載されたことに起因する損害等については、株式会社イーシティ埼玉、およびアットホームは一切責任を負いません。
    各物件情報の内容や画像等はすべて現況を優先させていただきます。
    お取引等(お取引の準備、資金調達等を含みます)の際には、内容や契約条件等について、各情報提供元より十分な説明を受け、ご自身でご確認の上、判断してください。
    このコーナーへの物件情報のご掲載、その他不動産業務ソリューション等についての不動産会社様のお問合せはこちらからお願いいたします。

    物件画像: