東京都中野区東中野1丁目(東中野駅)の賃貸:物件詳細
交通 所在地 |
駅徒歩 |
賃料 管理費等 |
敷金/保証金 礼金 |
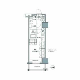
間取り 面積 |
物件種目 築年月 |
|
JR総武線/東中野
東京都中野区東中野1丁目
|
1分
|
13万円
8,000円
|
1ヶ月 / なし
なし
|
ワンルーム
26.70m²
|
賃貸マンション
2011年1月(築14年10ヶ月)
|
ペット相談、楽器相談、角部屋
|
|
間取図
|
外観
|
その他の画像
|
| 交通 | JR総武線 東中野駅 徒歩1分 |
|---|
| その他の交通 | 東京メトロ東西線 落合駅 徒歩9分 都営大江戸線 中井駅 徒歩13分 |
| 所在地 |
東京都中野区東中野1丁目
|
| 物件種目 |
賃貸マンション |
| 賃料 |
13万円 |
管理費等 |
8,000円 |
| 敷金 / 保証金 |
1ヶ月 / なし |
礼金 |
なし |
| 敷引 |
- |
保証金償却 |
- |
| その他一時金 |
なし、鍵交換代等:33,000円~ |
保険等 |
要 |
| 維持費等 |
- |
クレジットカード決済 |
初期費用可 |
| 間取り |
ワンルーム(洋室7.7帖) |
専有面積 |
26.70m² |
| 築年月 |
2011年1月(築14年10ヶ月)
|
階建 / 階 |
地上15階地下1階建 / 3階 |
| 建物構造 |
RC |
総戸数 |
- |
| 主要採光面 |
西 |
駐車場 |
無 |
| バイク置き場 |
- |
駐輪場 |
- |
| 建物名・部屋番号 |
パークハビオ東中野 |
ペット |
相談 |
| アピールポイント |
当社は都心・城南エリアに特化して物件をご紹介しております。エリアを限定することによって、当社の全スタッフが物件を熟知できるのは勿論ですが、街の詳しい情報や住んでいる・働いている人の属性をはじめとする地域の特徴、マーケティングについても精通しており、精度の高い有益な情報をお客様に提供することができます。全ての物件情報がネットに掲載されている訳ではありません。所有者の諸事情によって表に公開できない情報・書類の取り交わし前の情報など、ネットに掲載できない物件が沢山あります。これらの情報は当社の営業マンが一つ一つ足で稼いで取得したものであり、エリア周辺の事業会社や所有者との繋がりなど地域密着で真摯に営業しているからこそ、集められる情報です。当社ホームページでの物件情報量はどこにも負けません。サイト上に気になる物件がなかった方も、まずはお気軽にお問い合わせください。またInstagramでは「理想の家と出逢えるメディア」アカウントを運営しており、魅力的な新着物件を日々ご紹介しておりますので、物件探しをしている方は是非Instagramのアカウントもフォローして下さい! |
| リフォーム履歴 |
- |
| リノベーション履歴 |
- |
| 備考 |
賃貸保証等:加入要(初年度保証料:賃料等合計額の30%(最低保証料1.2万円)2年目以降:1年毎1万円)
管理形態/管理員の勤務形態:-/-
バルコニー:3.9m²
|
| エネルギー消費性能 |
- |
| 断熱性能 |
- |
| 目安光熱費 |
- |
| バス・トイレ |
バス・トイレ別、浴室乾燥機、追焚機能、洗面台、シャワー、温水洗浄便座、トイレ |
| キッチン |
システムキッチン、2口コンロ、ガスコンロ付 |
| セキュリティー |
モニター付オートロック、オートロック、モニター付インターホン、防犯カメラ、火災警報器(報知機) |
| 収納 |
収納スペース、シューズインクローゼット |
| 設備・サービス |
室内洗濯機置場、給湯、フローリング、エアコン |
| TV・通信 |
インターネット対応、光ファイバー |
| その他 |
宅配BOX、バルコニー、エレベーター |
| 契約期間 |
2年 |
現況 |
空家 |
| 条件等 |
- |
入居可能時期 |
即時 |
| 更新料 |
新賃料 1ヶ月 |
物件番号 |
1147182715 |
| 情報公開日 |
2025年10月25日 |
次回更新予定日 |
2025年11月8日 |
| ケータイ用バーコード |
- スマートフォンでこの物件を見る
- スマートフォンからもこの物件をご覧になれます。
|
※「-」と表示されている項目については、情報提供会社にご確認ください。
| 周辺施設 |
ユニゾンモール |
| 距離 |
510m |
写真を見る |
| 周辺施設 |
まいばすけっと東中野1丁目店 |
| 距離 |
50m |
| 周辺施設 |
ファミリーマート東中野駅西口店 |
| 距離 |
130m |
| 周辺施設 |
ココカラファイン東中野店 |
| 距離 |
330m |
| 周辺施設 |
CoCo壱番屋東中野駅前店 |
| 距離 |
80m |
| 周辺施設 |
東陽商店街 |
| 距離 |
8050m |
写真を見る |
ここから簡単にお問い合わせをすることができます。
(SSLでの暗号化での送信を希望されるお客さまは
こちら
よりお問い合わせください)
お問い合わせを行う前に
「個人情報の取り扱いについて」を必ずお読みください。
「個人情報の取り扱いについて」に同意いただいた場合は「上記にご同意の上 確認画面へ進む」のボタンをクリックしてください。
個人情報の取り扱いについて
皆さまが送付された個人情報はアットホーム(株)のサーバを経由し、お問い合わせ先の不動産会社にメールまたはFAXにて転送されるためアットホーム(株)にも保管されます。アットホーム(株)で保管された個人情報の取り扱いについては、【こちら】をご覧ください。
また、本画面でご記入いただいた個人情報は、お問い合わせ先の不動産会社でも保管します。 お問い合わせ先の不動産会社が保管する個人情報の取り扱いについては、不動産会社に直接お問い合わせください。
東京都知事免許(3)第97301号 |
|---|
- 交通:
- JR山手線/恵比寿駅 徒歩3分
- 東京都渋谷区東3丁目25ー11 TOKYU REIT恵比寿ビル4階
- TEL:
- 03-6421-0540
- FAX:
- 03-6421-0541
- 所属団体:
- (公社)全日本不動産協会会員
取引態様:仲介  - 00163198
|
- スマートフォンで
この不動産会社を見る

|
- 提携サイト等より掲載されている物件情報につきましては、不動産会社詳細情報にリンクされていないものがあります。
- 物件に関するお問合せは、物件詳細ページの「情報提供会社」に表示されている不動産会社へ直接お願いいたします。
- 間取図は、現況を優先させていただきます。
- 映像は物件の一部を撮影したものです。物件の契約にあたっての最終判断はご自身の判断に基づいて行ってください。
- 仲介手数料について

アットホームは物件情報の適正化に努めております。
内容に誤りがある場合にはこちらへご連絡ください。