福岡県春日市千歳町2丁目(春日駅)の賃貸:物件詳細
交通 所在地 |
駅徒歩 |
賃料 管理費等 |
敷金/保証金 礼金 |
間取り 面積 |
物件種目 築年月 |
|
JR鹿児島本線/春日
福岡県春日市千歳町2丁目
|
5分
|
7.1万円
3,000円
|
なし / なし
1ヶ月
|
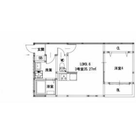
1LDK
35.34m²
|
賃貸アパート
2026年1月
|
角部屋、高齢者相談、二人入居可、24時間換気システム、IT重説対応物件、保証人不要
|
|
間取図
|
|
その他の画像
|
| 交通 | JR鹿児島本線 春日駅 徒歩5分 |
|---|
| その他の交通 | 西鉄天神大牟田線 春日原駅 徒歩13分 JR鹿児島本線 南福岡駅 徒歩13分 |
| 所在地 |
福岡県春日市千歳町2丁目
|
| 物件種目 |
賃貸アパート |
| 賃料 |
7.1万円 |
管理費等 |
3,000円 |
| 敷金 / 保証金 |
なし / なし |
礼金 |
1ヶ月 |
| 敷引 |
- |
保証金償却 |
- |
| その他一時金 |
ネット初期設定代:5,500円、入居時消毒代:17,600円、室内清掃費用:49,500円 |
保険等 |
要 |
| 維持費等 |
24時間サポート:880円/月、町費:550円/月 |
クレジットカード決済 |
初期費用可 |
| 間取り |
1LDK |
専有面積 |
35.34m² |
| 築年月 |
2026年1月
|
階建 / 階 |
3階建 / 2階 |
| 建物構造 |
木造 |
総戸数 |
- |
| 主要採光面 |
|
駐車場 |
有 11,000円/月 |
| バイク置き場 |
- |
駐輪場 |
- |
| 建物名・部屋番号 |
|
ペット |
-
|
| アピールポイント |
セキュリティ面は、オートロック・TVインターホンなど充実しているので、防犯対策もばっちりです。収納はクロゼット・シューズボックスなど豊富なので、衣類や履き物の整理がしやすく便利です。室内設備は洗面化粧台・浴室乾燥機などが揃っているので、快適に過ごしやすいお部屋になります。こちらの物件は2026年1月に入居可能予定です。こちらは角部屋物件です。こちらは初期費用をカードでお支払いいただける物件です。レイアウトの幅も広がる1LDKのお部屋で楽しい生活。機能や設備でお住まいを選ぶなら、ぜひ新築の物件をどうぞ。短時間でごみ出しを終えられるように、敷地内にゴミ置き場をつけております。入居時からインターネット環境が整っているため、ネット回線の工事がいらずコロナ禍で人との接触を避けたい方でも安心して住み始めることができます。 |
| リフォーム履歴 |
- |
| リノベーション履歴 |
- |
| 備考 |
賃貸保証等:加入要(ジェイリース 初回保証料60%)
管理形態/管理員の勤務形態:-/-
IT重説対応物件
室内設備は洗面化粧台・浴室乾燥機など充実した設備を備え付けています。収納はクロゼット・シューズボックスなど豊富なので、広々と空間を利用することも可能です。セキュリティ面は、TVインターホン・オートロックなどを備え付けているので安心して暮らせます。全居室フローリングのお住まいです。アレルギー予防に適した、通気性の良い安心のアパートです。健康な体は新鮮な空気を吸うところから。徒歩5分に駅がある物件です。こちらは初期費用をカードでお支払いいただけるアパートです。2沿線利用可能なアパートです。アパートタイプのお部屋です。落ち着いた生活ができるリビングとダイニングのある充実設備の1LDK。短期違約金あり:1年未満は2か月分、2年未満は1か月分の賃料。
|
| エネルギー消費性能 |
- |
| 断熱性能 |
- |
| 目安光熱費 |
- |
| バス・トイレ |
バス・トイレ別、浴室暖房、浴室乾燥機、洗面所独立、洗面所、洗面台、シャワー、温水洗浄便座、トイレ |
| キッチン |
カウンターキッチン、システムキッチン、ガスコンロ可 |
| セキュリティー |
モニター付オートロック、オートロック、モニター付インターホン、シャッター雨戸 |
| 収納 |
収納スペース、クローゼット、シューズボックス |
| 設備・サービス |
室内洗濯機置場、洗濯機置場、プロパンガス給湯、給湯、全居室フローリング、フローリング、プロパンガス、エアコン、冷房 |
| TV・通信 |
インターネット対応、インターネット使用料無料、CATVインターネット、ケーブルTV |
| その他 |
バルコニー |
| 契約期間 |
2年 |
現況 |
未完成 |
| 条件等 |
- |
入居可能時期 |
2026年1月中旬予定 |
| 更新料 |
- |
物件番号 |
1147333416 |
| 情報公開日 |
2025年10月14日 |
次回更新予定日 |
2025年10月28日 |
| ケータイ用バーコード |
- スマートフォンでこの物件を見る
- スマートフォンからもこの物件をご覧になれます。
|
※「-」と表示されている項目については、情報提供会社にご確認ください。
| 周辺施設 |
セブンイレブン 博多新和町2丁目店 |
| 距離 |
477m |
写真を見る |
| 周辺施設 |
ミニストップ 春日大和町店 |
| 距離 |
963m |
写真を見る |
| 周辺施設 |
博多南郵便局 |
| 距離 |
1284m |
写真を見る |
| 周辺施設 |
ドラッグストアコスモス 春日宝町店 |
| 距離 |
992m |
写真を見る |
| 周辺施設 |
ドラッグストアマツモトキヨシ 宝町店 |
| 距離 |
1085m |
写真を見る |
| 周辺施設 |
サニー宝町店 |
| 距離 |
1236m |
写真を見る |
ここから簡単にお問い合わせをすることができます。
(SSLでの暗号化での送信を希望されるお客さまは
こちら
よりお問い合わせください)
お問い合わせを行う前に
「個人情報の取り扱いについて」を必ずお読みください。
「個人情報の取り扱いについて」に同意いただいた場合は「上記にご同意の上 確認画面へ進む」のボタンをクリックしてください。
個人情報の取り扱いについて
皆さまが送付された個人情報はアットホーム(株)のサーバを経由し、お問い合わせ先の不動産会社にメールまたはFAXにて転送されるためアットホーム(株)にも保管されます。アットホーム(株)で保管された個人情報の取り扱いについては、【こちら】をご覧ください。
また、本画面でご記入いただいた個人情報は、お問い合わせ先の不動産会社でも保管します。 お問い合わせ先の不動産会社が保管する個人情報の取り扱いについては、不動産会社に直接お問い合わせください。
国土交通大臣免許(2)第9550号 |
|---|
- 交通:
- JR鹿児島本線/博多駅 徒歩5分
- 福岡県福岡市博多区博多駅前2丁目13-13 シャンソンビル博多4F
- TEL:
- 092-600-0801
- 所属団体:
- (公社)全日本不動産協会会員(公社)近畿地区不動産公正取引協議会加盟
取引態様:仲介  - 80507507
|
- スマートフォンで
この不動産会社を見る

|
- 提携サイト等より掲載されている物件情報につきましては、不動産会社詳細情報にリンクされていないものがあります。
- 物件に関するお問合せは、物件詳細ページの「情報提供会社」に表示されている不動産会社へ直接お願いいたします。
- 間取図は、現況を優先させていただきます。
- 映像は物件の一部を撮影したものです。物件の契約にあたっての最終判断はご自身の判断に基づいて行ってください。
- 仲介手数料について

アットホームは物件情報の適正化に努めております。
内容に誤りがある場合にはこちらへご連絡ください。