神奈川県横浜市磯子区磯子3丁目(磯子駅)の賃貸:物件詳細
交通 所在地 |
駅徒歩 |
賃料 管理費等 |
敷金/保証金 礼金 |
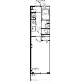
間取り 面積 |
物件種目 築年月 |
|
JR京浜東北線/磯子
神奈川県横浜市磯子区磯子3丁目
|
13分
|
7.7万円
4,000円
|
なし / なし
1ヶ月
|
1K
26.12m²
|
賃貸アパート
2014年3月(築11年10ヶ月)
|
最上階、南向き、24時間セキュリティー、24時間換気システム、閑静な住宅街、IT重説対応物件、保証人不要
|
|
間取図
|
外観
|
<
その他の画像
>
|
| 交通 | JR京浜東北線 磯子駅 徒歩13分 |
|---|
| その他の交通 | 京急本線 屏風浦駅 徒歩26分 ブルーライン 上大岡駅 徒歩29分 |
| 所在地 |
神奈川県横浜市磯子区磯子3丁目
|
| 物件種目 |
賃貸アパート |
| 賃料 |
7.7万円 |
管理費等 |
4,000円 |
| 敷金 / 保証金 |
なし / なし |
礼金 |
1ヶ月 |
| 敷引 |
- |
保証金償却 |
- |
| その他一時金 |
室内清掃費用:36,300円、室内消毒:16,500円、クラブ入会費:7,700円、鍵交換代等:22,000円~ |
保険等 |
要 2年 19,000円 |
| 維持費等 |
クラブ月額:2,200円/月 |
クレジットカード決済 |
初期費用可 |
| 間取り |
1K(洋室8.3帖) |
専有面積 |
26.12m² |
| 築年月 |
2014年3月(築11年10ヶ月)
|
階建 / 階 |
4階建 / 4階 |
| 建物構造 |
鉄骨造 |
総戸数 |
24戸 |
| 主要採光面 |
南 |
駐車場 |
近有 16,500円/月 |
| バイク置き場 |
- |
駐輪場 |
有 無料 |
| 建物名・部屋番号 |
リブリ・磯子インディゴヴェール 405 |
ペット |
-
|
| アピールポイント |
★クレジット決済相談可能★タウンハウジングは周辺環境まで詳しくご案内豊富な物件情報で楽しいお部屋探しを!街の案内人~賃貸物件・お部屋探しはタウンハウジングへ!ご質問・諸条件のご相談などお気軽にお問合せ下さい!★オンライン内見・相談対応可能です♪★年間賃貸仲介件数ランキング全国4位★仲介件数 年間6万件の信頼と実績がございます。首都圏を中心に直営130店舗以上★ |
| リフォーム履歴 |
- |
| リノベーション履歴 |
- |
| 備考 |
賃貸保証等:加入要(賃貸保証料:1.00ヶ月 初回賃料総額の100%+月額賃料総額1.1%)
管理形態/管理員の勤務形態:-/巡回
IT重説対応物件、管理人巡回
★賃貸不動産のプロフェッショナルチーム★タウンハウジング★オンライン内見・相談対応可能です♪★年間仲介件数ランキング全国第4位★年間仲介件数7万件以上の信頼と実績がございます。23区を中心に直営130店舗以上の豊富なネットワークを活かし14万件以上を常時物件募集をしております。弊社は総合仲介の為、他社様がインターネット掲載している物件情報もご紹介が可能です。気になる物件を1~4件まとめて見学して回れます。お気軽にお申し付け下さい。ポイントがざくざく貯まるクレジットカード決済可能な物件も多数ご用意がございます。また、お部屋探し~物件提案~見学~ご契約~引き渡しに至るまで全てオンライン非対面でのご対応も可能です。ご来店・お問合せをスタッフ一同心よりお待ちしております。タウンハウジングは周辺環境まで詳しくご案内豊富な物件情報で楽しいお部屋探しを!街の案内人~賃貸物件・お部屋探しはタウンハウジングへ!★ご質問・諸条件のご相談などお気軽にお問合せ下さい!皆様からのお問い合わせ・各種ご相談を心よりお待ちしております!★
|
| エネルギー消費性能 |
- |
| 断熱性能 |
- |
| 目安光熱費 |
- |
| バス・トイレ |
バス・トイレ別、浴室暖房、浴室乾燥機、シャワー付洗面化粧台、洗面所独立、洗面所、洗面台、シャワー、温水洗浄便座、トイレ |
| キッチン |
システムキッチン、独立型キッチン、IHクッキングヒーター、2口コンロ |
| セキュリティー |
モニター付オートロック、オートロック、モニター付インターホン、火災警報器(報知機) |
| 収納 |
全居室収納、収納スペース、クローゼット、シューズボックス |
| 設備・サービス |
全居室エアコン、室内洗濯機置場、都市ガス給湯、給湯、全居室フローリング、フローリング、都市ガス、エアコン、照明器具 |
| TV・通信 |
インターネット対応、インターネット使用料無料、光ファイバー、CS、BS端子 |
| その他 |
バルコニー、駐輪場 |
| 契約期間 |
2年 |
現況 |
空家 |
| 条件等 |
定期借家 |
入居可能時期 |
即時 |
| 仲介手数料 |
1.1ヶ月 |
|
|
| 更新料 |
新賃料 1ヶ月 |
物件番号 |
1147557115 |
| 情報公開日 |
2025年9月30日 |
次回更新予定日 |
2025年12月29日 |
| ケータイ用バーコード |
- スマートフォンでこの物件を見る
- スマートフォンからもこの物件をご覧になれます。
|
※「-」と表示されている項目については、情報提供会社にご確認ください。
| 周辺施設 |
ドラッグセイムス横浜磯子店 |
| 距離 |
920m |
写真を見る |
| 周辺施設 |
ハックドラッグ横浜磯子店 |
| 距離 |
860m |
写真を見る |
| 周辺施設 |
磯子中央病院 |
| 距離 |
290m |
写真を見る |
| 周辺施設 |
セブンイレブン横浜磯子3丁目店 |
| 距離 |
100m |
写真を見る |
| 周辺施設 |
ファミリーマート磯子三丁目店 |
| 距離 |
2000m |
写真を見る |
| 周辺施設 |
ローソン磯子三丁目店 |
| 距離 |
560m |
写真を見る |
| 周辺施設 |
ローソン磯子2丁目店 |
| 距離 |
500m |
写真を見る |
| 周辺施設 |
ローソン磯子久木町店 |
| 距離 |
860m |
写真を見る |
ここから簡単にお問い合わせをすることができます。
(SSLでの暗号化での送信を希望されるお客さまは
こちら
よりお問い合わせください)
お問い合わせを行う前に
「個人情報の取り扱いについて」を必ずお読みください。
「個人情報の取り扱いについて」に同意いただいた場合は「上記にご同意の上 確認画面へ進む」のボタンをクリックしてください。
個人情報の取り扱いについて
皆さまが送付された個人情報はアットホーム(株)のサーバを経由し、お問い合わせ先の不動産会社にメールまたはFAXにて転送されるためアットホーム(株)にも保管されます。アットホーム(株)で保管された個人情報の取り扱いについては、【こちら】をご覧ください。
また、本画面でご記入いただいた個人情報は、お問い合わせ先の不動産会社でも保管します。 お問い合わせ先の不動産会社が保管する個人情報の取り扱いについては、不動産会社に直接お問い合わせください。
国土交通大臣免許(1)第9928号 |
|---|
- 交通:
- 京急本線/上大岡駅 徒歩1分
- 神奈川県横浜市港南区上大岡西1丁目18-5 ミオカ104
- TEL:
- 045-882-1080
- FAX:
- 045-882-1081
- 所属団体:
- (公社)神奈川県宅地建物取引業協会会員不動産公正取引協議会加盟
取引態様:仲介  - 00100165
|
- スマートフォンで
この不動産会社を見る

|
- 提携サイト等より掲載されている物件情報につきましては、不動産会社詳細情報にリンクされていないものがあります。
- 物件に関するお問合せは、物件詳細ページの「情報提供会社」に表示されている不動産会社へ直接お願いいたします。
- 間取図は、現況を優先させていただきます。
- 映像は物件の一部を撮影したものです。物件の契約にあたっての最終判断はご自身の判断に基づいて行ってください。
- 仲介手数料について

アットホームは物件情報の適正化に努めております。
内容に誤りがある場合にはこちらへご連絡ください。