熊本県熊本市中央区黒髪5丁目(東海学園前駅)の賃貸:物件詳細
交通 所在地 |
駅徒歩 |
賃料 管理費等 |
敷金/保証金 礼金 |
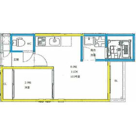
間取り 面積 |
物件種目 築年月 |
|
JR豊肥本線/東海学園前
熊本県熊本市中央区黒髪5丁目
|
24分
|
4.7万円
3,000円
|
なし / なし
なし
|
1LDK
27.40m²
|
賃貸アパート
2021年11月(築4年)
|
デザイナーズ、角部屋、24時間換気システム、閑静な住宅街、IT重説対応物件
|
|
間取図
|
外観
|
<
その他の画像
>
|
| 交通 | JR豊肥本線 東海学園前駅 徒歩24分 |
|---|
| その他の交通 | 熊本電気鉄道 坪井川公園駅 徒歩21分 熊本電気鉄道 黒髪町駅 徒歩20分 |
| 所在地 |
熊本県熊本市中央区黒髪5丁目
|
| 物件種目 |
賃貸アパート |
| 賃料 |
4.7万円 |
管理費等 |
3,000円 |
| 敷金 / 保証金 |
なし / なし |
礼金 |
なし |
| 敷引 |
- |
保証金償却 |
- |
| その他一時金 |
室内清掃費用:44,000円、鍵交換代等:16,500円~ |
保険等 |
不要 |
| 維持費等 |
安心サポート24:880円/月、町内会費:400円/月 |
| 間取り |
1LDK(LDK8、洋2.9) |
専有面積 |
27.40m² |
| 築年月 |
2021年11月(築4年)
|
階建 / 階 |
2階建 / 1階 |
| 建物構造 |
木造 |
総戸数 |
- |
| 主要採光面 |
東 |
駐車場 |
近有 5,500円/月 |
| バイク置き場 |
- |
駐輪場 |
- |
| 建物名・部屋番号 |
G-smart黒髪 103 |
ペット |
-
|
| アピールポイント |
【フリーレントキャンペーン★】人気の1LDKシリーズが熊大黒髪キャンパスそばに空き予定★★木造でも音が響きにくいSVC構造★Wi-Fiインターネット無料♪話題のスマートロックIoT住宅・オートロック・宅配BOX・浴室乾燥機・浴室TV・システムキッチンなど充実した設備♪火災保険も込みです! |
| リフォーム履歴 |
- |
| リノベーション履歴 |
- |
| 備考 |
賃貸保証等:加入要(全保連 初回に賃料総額の50% 年更新1.3万円)
管理形態/管理員の勤務形態:-/-
IT重説対応物件
【フリーレントキャンペーン★】人気の1LDKシリーズが熊大黒髪キャンパスそばに空き予定★
木造でも音が響きにくいSVC構造★Wi-Fiインターネット無料♪話題のスマートロックIoT住宅・オートロック・宅配BOX・浴室乾燥機・浴室TV・システムキッチンなど充実した設備♪火災保険も込みです!
|
| エネルギー消費性能 |
- |
| 断熱性能 |
- |
| 目安光熱費 |
- |
| バス・トイレ |
TV付浴室、バス・トイレ別、浴室乾燥機、シャワー付洗面化粧台、洗面所独立、洗面所、温水洗浄便座、トイレ |
| キッチン |
システムキッチン、2口コンロ、ガスコンロ可、グリル |
| セキュリティー |
モニター付オートロック、オートロック、モニター付インターホン、ディンプルキー、防犯カメラ |
| 収納 |
収納スペース、クローゼット、シューズボックス |
| 設備・サービス |
室内洗濯機置場、洗濯機置場、全居室フローリング、フローリング、室内物干し、プロパンガス、エアコン、ダウンライト、照明器具、複層ガラス |
| TV・通信 |
インターネット対応、インターネット使用料無料 |
| その他 |
宅配BOX、バルコニー |
| 契約期間 |
2年 |
現況 |
居住中 |
| 条件等 |
- |
入居可能時期 |
2025年12月中旬予定 |
| 仲介手数料 |
1.1ヶ月 |
|
|
| 更新料 |
- |
物件番号 |
1147563816 |
| 情報公開日 |
2025年10月15日 |
次回更新予定日 |
2025年10月29日 |
| ケータイ用バーコード |
- スマートフォンでこの物件を見る
- スマートフォンからもこの物件をご覧になれます。
|
※「-」と表示されている項目については、情報提供会社にご確認ください。
ここから簡単にお問い合わせをすることができます。
(SSLでの暗号化での送信を希望されるお客さまは
こちら
よりお問い合わせください)
お問い合わせを行う前に
「個人情報の取り扱いについて」を必ずお読みください。
「個人情報の取り扱いについて」に同意いただいた場合は「上記にご同意の上 確認画面へ進む」のボタンをクリックしてください。
個人情報の取り扱いについて
皆さまが送付された個人情報はアットホーム(株)のサーバを経由し、お問い合わせ先の不動産会社にメールまたはFAXにて転送されるためアットホーム(株)にも保管されます。アットホーム(株)で保管された個人情報の取り扱いについては、【こちら】をご覧ください。
また、本画面でご記入いただいた個人情報は、お問い合わせ先の不動産会社でも保管します。 お問い合わせ先の不動産会社が保管する個人情報の取り扱いについては、不動産会社に直接お問い合わせください。
熊本県知事免許(3)第4996号 |
|---|
- 交通:
- JR豊肥本線/東海学園前駅 【バス】10分 京塚 停歩1分
- 熊本県熊本市中央区帯山3丁目7-31
- TEL:
- 096-383-4445
- FAX:
- 096-383-4446
- 所属団体:
- (公社)熊本県宅地建物取引業協会会員(一社)九州不動産公正取引協議会加盟
取引態様:仲介  - 80502008
|
- スマートフォンで
この不動産会社を見る

|
- 提携サイト等より掲載されている物件情報につきましては、不動産会社詳細情報にリンクされていないものがあります。
- 物件に関するお問合せは、物件詳細ページの「情報提供会社」に表示されている不動産会社へ直接お願いいたします。
- 間取図は、現況を優先させていただきます。
- 映像は物件の一部を撮影したものです。物件の契約にあたっての最終判断はご自身の判断に基づいて行ってください。
- 仲介手数料について

アットホームは物件情報の適正化に努めております。
内容に誤りがある場合にはこちらへご連絡ください。