不動産 賃貸 マンション等の住宅情報:埼玉住まい情報


東京都港区赤坂7丁目(赤坂駅)の賃貸:物件詳細

  • 物件詳細
  • 情報の見方
  • 印刷用画面
交通
所在地
駅徒歩 賃料
管理費等
敷金/保証金
礼金
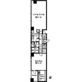
間取り
面積
物件種目
築年月

東京メトロ千代田線/赤坂

東京都港区赤坂7丁目

7分

37.5万円

15,000円

2ヶ月 / なし

なし

1LDK

89.04m²

賃貸マンション

2005年2月(築20年9ヶ月)

おすすめPOINTペット相談、楽器相談、常時ゴミ出し可能、高齢者相談、二人入居可、24時間換気システム、IT重説対応物件

おすすめコメント

共用部には宅配ボックス・ゴミ出し24時間OKなどが揃っております。室内設備は洗面所独立・浴室乾燥機など豊富に揃っており、過ごしやすいお部屋になっております。自宅で音楽を楽しみたい方、楽器応相談。

間取図

間取図

外観

外観

<
その他の画像
  • リビング
  • その他
  • 共有部分
  • キッチン
  • エントランス
  • バス/シャワー
  • 室内
  • 収納
  • 共有部分
  • その他
  • 設備
  • 駐車場
  • 販売店
  • コンビニ
  • コンビニ
  • 郵便局
>
    • とりあえず保存
    • お問い合わせ
    交通

    東京メトロ千代田線 赤坂駅 徒歩7分

    その他の交通

    東京メトロ銀座線 青山一丁目駅 徒歩12分

    東京メトロ半蔵門線 青山一丁目駅 徒歩12分

    所在地 東京都港区赤坂7丁目
    物件種目 賃貸マンション
    賃料 37.5万円 管理費等 15,000円
    敷金 / 保証金 2ヶ月 / なし 礼金 なし
    敷引 保証金償却
    その他一時金 室内清掃費用:137,121円 保険等 要 2年 20,000円
    維持費等 クレジットカード決済 初期費用可
    間取り 1LDK 専有面積 89.04m²
    築年月 2005年2月(築20年9ヶ月) 階建 / 階 地上14階地下1階建 / 13階
    建物構造 RC 総戸数
    主要採光面 南西 駐車場
    バイク置き場 駐輪場
    建物名・部屋番号 パークルージュ赤坂檜町 ペット 相談
    アピールポイント 共用部には宅配ボックス・ゴミ出し24時間OKなどが揃っております。収納はクロゼット・シューズボックス・全居室収納などが備え付けられているので、衣類や日用品の収納に重宝します。セキュリティ面は、オートロック・TVインターホンなどを設置しているので安全面でも優れております。室内設備は浴室乾燥機・洗面化粧台など豊富に揃っており、過ごしやすいお部屋になっております。入居日指定2026年1月の物件はココにございますので確認してみてくださいね。駐輪場付きの物件です。こちらの物件からは2駅が近くにあり、移動範囲も広がります。通勤やお出かけに便利な、徒歩7分に駅のある物件です。クレジットカードで初期費用がお支払いいただけるので、決済の手間が軽減できます。こちらのお部屋で新しい生活を始めてみませんか。夏場は特に涼しい通風良好な環境の良い快適空間をどうぞ。
    リフォーム履歴
    リノベーション履歴
    備考
    賃貸保証等:加入要(クレディセゾン [保証会社]加入要[保証会社名]クレディセゾン・レジデントアシスタンス株式会社[保証会社利用料]初回保証委託料(最低15,000円):月額賃料等の50%、 2年目以降:10,000円\)
    管理形態/管理員の勤務形態:-/-
    IT重説対応物件
    ※1年未満解約時賃料1か月分の違約金有★同タイプ・別階の内観写真を掲載している場合があります。図面と現況が異なる場合は現況を優先いたします。
    セキュリティ面は、オートロック・TVインターホンなどを設置しているので安全面でも優れております。室内設備は洗面化粧台・浴室乾燥機など豊富に揃っており、過ごしやすいお部屋になっております。共用部にはゴミ出し24時間OK・宅配ボックスなどが揃っております。収納はクロゼット・シューズボックス・全居室収納など豊富なので、広々と空間を利用することも可能です。駐輪場付きの物件です。CATV対応なので、契約のみで様々なチャンネルが閲覧できます。賃料は37.5万円です。収納力と掃除のしやすさを同時に備えているシステムキッチンを採用しております。ビジネスマンには必須の、インターネット有り物件です。3口コンロ付きの物件は、たくさん料理を作る時でも同時に進められるため料理の効率を上げられます。地上14階建ての物件をご紹介。
    エネルギー消費性能
    断熱性能
    目安光熱費
    バス・トイレ バス・トイレ別、浴室乾燥機、追焚機能、洗面所独立、洗面所、シャワー、温水洗浄便座、トイレ
    キッチン システムキッチン、3口以上コンロ、ガスコンロ可、グリル
    セキュリティー モニター付オートロック、オートロック、モニター付インターホン、ディンプルキー、ダブルロックドア、防犯カメラ
    収納 全居室収納、ウォークインクローゼット、収納スペース、クローゼット、シューズボックス
    設備・サービス 室内洗濯機置場、洗濯機置場、全居室フローリング、フローリング、都市ガス、エアコン、冷房
    TV・通信 インターネット対応、ケーブルTV、CS、BS端子
    その他 宅配BOX、バルコニー、エレベーター
    契約期間 2年 現況 居住中
    条件等 入居可能時期 2026年1月中旬予定
    更新料 新賃料 1ヶ月 物件番号 1147841716
    情報公開日 2025年10月15日 次回更新予定日 2025年11月12日
    ケータイ用バーコード

    QRコード

    スマートフォンでこの物件を見る
    スマートフォンからもこの物件をご覧になれます。
    ※「-」と表示されている項目については、情報提供会社にご確認ください。

    この物件の周辺情報

    周辺施設 Olympic六本木店
    距離 905m
    周辺施設 ローソン 赤坂六丁目店
    距離 202m
    周辺施設 ファミリーマート 赤坂稲荷坂店
    距離 156m
    周辺施設 赤坂七郵便局
    距離 144m

    クイックお問い合わせ

    ここから簡単にお問い合わせをすることができます。
    (SSLでの暗号化での送信を希望されるお客さまは こちら よりお問い合わせください)

    お問い合わせ内容(必須)
    お名前(必須) 姓  名 
    メールアドレス(必須)
    ※携帯電話のメールアドレスをご入力される方はこちらをご確認ください
    電話番号(必須)
    - -

    ※入力いただいた電話番号へSMSまたは音声でパスワードをご連絡します。

    携帯電話の番号をご入力の方へ

    携帯電話の番号をご入力の方へ
    確認画面にて送信ボタンをクリックするとSMSが携帯電話に届きます。
    そのSMSに記載のパスワード(認証番号)を入力し、お問い合わせを完了してください。
    尚、SMSの送信者番号は 0005 202 760 となります。
    これはアットホームの固定番号です。

    備考欄 希望条件、物件案内希望日、質問などがございましたらご記入ください。
    お問い合わせを行う前に「個人情報の取り扱いについて」を必ずお読みください。
    「個人情報の取り扱いについて」に同意いただいた場合は「上記にご同意の上 確認画面へ進む」のボタンをクリックしてください。

    個人情報の取り扱いについて

    皆さまが送付された個人情報はアットホーム(株)のサーバを経由し、お問い合わせ先の不動産会社にメールまたはFAXにて転送されるためアットホーム(株)にも保管されます。アットホーム(株)で保管された個人情報の取り扱いについては、【こちら】をご覧ください。
    また、本画面でご記入いただいた個人情報は、お問い合わせ先の不動産会社でも保管します。 お問い合わせ先の不動産会社が保管する個人情報の取り扱いについては、不動産会社に直接お問い合わせください。

    情報提供会社

    情報提供会社

    (株)Lim estate

    東京都知事免許(1)第109763号

    交通:
    東京メトロ有楽町線/銀座一丁目駅 徒歩3分
    東京都中央区銀座1丁目5-1 Holon GinzaⅡ
    TEL:
    03-5962-8933
    FAX:
    03-5962-8933
    所属団体:
    (公社)東京都宅地建物取引業協会会員
    (公社)首都圏不動産公正取引協議会加盟

    取引態様:仲介

    • 会社情報
    • 00275939
    スマートフォンで
    この不動産会社を見る
    QRコード
    • とりあえず保存
    • お問い合わせ
    • 提携サイト等より掲載されている物件情報につきましては、不動産会社詳細情報にリンクされていないものがあります。
    • 物件に関するお問合せは、物件詳細ページの「情報提供会社」に表示されている不動産会社へ直接お願いいたします。
    • 間取図は、現況を優先させていただきます。
    • 映像は物件の一部を撮影したものです。物件の契約にあたっての最終判断はご自身の判断に基づいて行ってください。
    • 仲介手数料について仲介手数料

    アットホームは物件情報の適正化に努めております。 内容に誤りがある場合にはこちらへご連絡ください。

    【埼玉住まい情報】では、日本全国の物件から賃貸マンションや賃貸アパート・賃貸一戸建て等の賃貸住宅情報、新築マンション・分譲マンションや中古マンション等の売買マンション情報、新築一戸建てや中古一戸建てなどの戸建住宅、 土地など、総合的な不動産住宅情報検索サービスを提供致します。
    【埼玉住まい情報】から、選りすぐりの不動産物件を探してみましょう。

    【免責事項】
    このコーナーの運営はアットホーム株式会社(https://www.athome.co.jp/)が行っています。
    このコーナーに掲載している物件情報は、「アットホーム不動産情報ネットワーク」に加盟する不動産会社等(情報提供元)から提供されています。信頼性の高い情報提供が行えるよう、最大限の努力をしておりますが、その内容を保証するものではありません。 利用者のみなさまと各情報提供元との取引に起因する損害および情報が掲載されたことに起因する損害等については、株式会社イーシティ埼玉、およびアットホームは一切責任を負いません。
    各物件情報の内容や画像等はすべて現況を優先させていただきます。
    お取引等(お取引の準備、資金調達等を含みます)の際には、内容や契約条件等について、各情報提供元より十分な説明を受け、ご自身でご確認の上、判断してください。
    このコーナーへの物件情報のご掲載、その他不動産業務ソリューション等についての不動産会社様のお問合せはこちらからお願いいたします。

    物件画像: