不動産 賃貸 マンション等の住宅情報:埼玉住まい情報


愛知県岡崎市洞町字本郷(男川駅)の賃貸:物件詳細

  • 物件詳細
  • 情報の見方
  • 印刷用画面
交通
所在地
駅徒歩 賃料
管理費等
敷金/保証金
礼金
間取り
面積
物件種目
築年月

名鉄名古屋本線/男川 新着

愛知県岡崎市洞町字本郷

30分

6.3万円

4,000円

なし / なし

なし

1LDK

45.77m²

賃貸アパート

2013年8月(築12年3ヶ月)

おすすめPOINT二人入居可、保証人不要

おすすめコメント  スタッフ: 勝又 麻美

間取が反転している可能性がございます。 2年以内の解約の場合、1ヶ月分の違約金有り

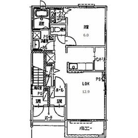
間取図

間取図

その他

その他

その他の画像
  • 販売店
  • 販売店
  • 販売店
  • 大学
  • 高校
  • 高校
  • 小学校
    • とりあえず保存
    • お問い合わせ
    交通

    名鉄名古屋本線 男川駅 徒歩30分

    その他の交通

    名鉄名古屋本線 東岡崎駅 徒歩44分

    名鉄名古屋本線 美合駅 徒歩43分

    所在地 愛知県岡崎市洞町字本郷
    物件種目 賃貸アパート
    賃料 6.3万円 管理費等 4,000円
    敷金 / 保証金 なし / なし 礼金 なし
    敷引 保証金償却
    その他一時金 定額クリーニング費:70,000円、鍵交換代等:22,000円~ 保険等 不要
    維持費等 町内会費:350円/月 クレジットカード決済 初期費用可 賃料可
    間取り 1LDK(LDK12.9、洋6) 専有面積 45.77m²
    築年月 2013年8月(築12年3ヶ月) 階建 / 階 2階建 / 1階
    建物構造 木造 総戸数
    主要採光面 南西 駐車場 有 4,400円/月
    バイク置き場 駐輪場 有 無料
    建物名・部屋番号 ドリームG 101 ペット
    アピールポイント お部屋の探し方、手続きの方法など、転勤・転職・学生・アルバイト・人材派遣・離婚・不動産の売却など、お部屋探しで困ったらお気軽にご相談ください。

    また、不動産のご紹介以外にも、賃貸管理・リフォームから、各士業の紹介など多岐に対応可能です。


    【 LINE公式アカウントあります 】
    ・ 公式アカウントも取得しておりますので、メールだけでなくLINEもぜひご登録ください。
      《 LINE ID @e2103 》 になります。
    ・ LINEから、アンケートを答えるだけで、お部屋の紹介をお気軽にして貰えます。
    ・ 条件変更などは、いつでも自由に変更可能!!
    ・ お部屋が決まった際も、最新情報の配信を速やかに停止が可能です。

    【 スタッフ 】
    ・ 弊社のスタッスは、ここ数年間基本100%女性スタッフが対応しております。

    【 クレジットカード決済可 】
    ・ 気になる物件が予算オーバー!そんな時は足りない予算分をクレジットカードでお支払い出来ます!
    ・ 初期費用(敷金・礼金・前家賃)のクレジット払い可能ですので、ご要望の方はお気軽にお問い合わせください!
    リフォーム履歴
    リノベーション履歴
    備考
    賃貸保証等:加入要(全保連 初回50%、月額2090円(継続保証料+保険料))
    管理形態/管理員の勤務形態:-/-
    お部屋が見たい、相談・分割払いはお気軽にお問合せください。LINE問合で、新着情報・手続きも簡素化
    お部屋が見たい、相談・分割払いはお気軽にお問合せください。LINE問合で、新着情報・手続きも簡素化
    エネルギー消費性能
    断熱性能
    目安光熱費
    バス・トイレ バス・トイレ別、浴室乾燥機、追焚機能、洗面所独立、洗面所、温水洗浄便座、トイレ
    キッチン カウンターキッチン、ガスコンロ可
    セキュリティー シャッター雨戸
    収納 ウォークインクローゼット、収納スペース、クローゼット、シューズボックス
    設備・サービス 室内洗濯機置場、洗濯機置場、プロパンガス給湯、給湯、フローリング、プロパンガス、エアコン
    TV・通信 BS端子
    その他 駐輪場
    契約期間 2年 現況 空家
    条件等 入居可能時期 即時
    更新料 物件番号 1148129316
    情報公開日 2025年10月16日 次回更新予定日 2025年11月3日
    ケータイ用バーコード

    QRコード

    スマートフォンでこの物件を見る
    スマートフォンからもこの物件をご覧になれます。
    ※「-」と表示されている項目については、情報提供会社にご確認ください。

    この物件の周辺情報

    周辺施設 オークワ岡崎インター店
    距離 893m
    周辺施設 ドミー竜美丘店
    距離 1876m
    周辺施設 カーマホームセンター 岡崎店
    距離 712m
    周辺施設 岡崎女子短期大学
    距離 1099m
    周辺施設 愛知県立岡崎商業高等学校
    距離 1548m
    周辺施設 愛知県立岡崎高等学校
    距離 2340m
    周辺施設 岡崎市立根石小学校
    距離 962m

    クイックお問い合わせ

    ここから簡単にお問い合わせをすることができます。
    (SSLでの暗号化での送信を希望されるお客さまは こちら よりお問い合わせください)

    お問い合わせ内容(必須)
    お名前(必須) 姓  名 
    メールアドレス(必須)
    ※携帯電話のメールアドレスをご入力される方はこちらをご確認ください
    電話番号(必須)
    - -

    ※入力いただいた電話番号へSMSまたは音声でパスワードをご連絡します。

    携帯電話の番号をご入力の方へ

    携帯電話の番号をご入力の方へ
    確認画面にて送信ボタンをクリックするとSMSが携帯電話に届きます。
    そのSMSに記載のパスワード(認証番号)を入力し、お問い合わせを完了してください。
    尚、SMSの送信者番号は 0005 202 760 となります。
    これはアットホームの固定番号です。

    備考欄 希望条件、物件案内希望日、質問などがございましたらご記入ください。
    お問い合わせを行う前に「個人情報の取り扱いについて」を必ずお読みください。
    「個人情報の取り扱いについて」に同意いただいた場合は「上記にご同意の上 確認画面へ進む」のボタンをクリックしてください。

    個人情報の取り扱いについて

    皆さまが送付された個人情報はアットホーム(株)のサーバを経由し、お問い合わせ先の不動産会社にメールまたはFAXにて転送されるためアットホーム(株)にも保管されます。アットホーム(株)で保管された個人情報の取り扱いについては、【こちら】をご覧ください。
    また、本画面でご記入いただいた個人情報は、お問い合わせ先の不動産会社でも保管します。 お問い合わせ先の不動産会社が保管する個人情報の取り扱いについては、不動産会社に直接お問い合わせください。

    情報提供会社

    情報提供会社

    ピタットハウス北岡崎店 (株)松屋コーヒー店

    愛知県知事免許(4)第20537号

    交通:
    愛知環状鉄道/北岡崎駅 徒歩2分
    愛知県岡崎市葵町7-11-2F 
    TEL:
    0564-73-7555
    FAX:
    0564-73-7550
    所属団体:
    (公社)愛知県宅地建物取引業協会会員
    (一社)全国賃貸不動産管理業協会会員
    東海不動産公正取引協議会加盟

    取引態様:仲介

    • 会社情報
    • 40406437
    スマートフォンで
    この不動産会社を見る
    QRコード
    • とりあえず保存
    • お問い合わせ
    • 提携サイト等より掲載されている物件情報につきましては、不動産会社詳細情報にリンクされていないものがあります。
    • 物件に関するお問合せは、物件詳細ページの「情報提供会社」に表示されている不動産会社へ直接お願いいたします。
    • 間取図は、現況を優先させていただきます。
    • 映像は物件の一部を撮影したものです。物件の契約にあたっての最終判断はご自身の判断に基づいて行ってください。
    • 仲介手数料について仲介手数料

    アットホームは物件情報の適正化に努めております。 内容に誤りがある場合にはこちらへご連絡ください。

    【埼玉住まい情報】では、日本全国の物件から賃貸マンションや賃貸アパート・賃貸一戸建て等の賃貸住宅情報、新築マンション・分譲マンションや中古マンション等の売買マンション情報、新築一戸建てや中古一戸建てなどの戸建住宅、 土地など、総合的な不動産住宅情報検索サービスを提供致します。
    【埼玉住まい情報】から、選りすぐりの不動産物件を探してみましょう。

    【免責事項】
    このコーナーの運営はアットホーム株式会社(https://www.athome.co.jp/)が行っています。
    このコーナーに掲載している物件情報は、「アットホーム不動産情報ネットワーク」に加盟する不動産会社等(情報提供元)から提供されています。信頼性の高い情報提供が行えるよう、最大限の努力をしておりますが、その内容を保証するものではありません。 利用者のみなさまと各情報提供元との取引に起因する損害および情報が掲載されたことに起因する損害等については、株式会社イーシティ埼玉、およびアットホームは一切責任を負いません。
    各物件情報の内容や画像等はすべて現況を優先させていただきます。
    お取引等(お取引の準備、資金調達等を含みます)の際には、内容や契約条件等について、各情報提供元より十分な説明を受け、ご自身でご確認の上、判断してください。
    このコーナーへの物件情報のご掲載、その他不動産業務ソリューション等についての不動産会社様のお問合せはこちらからお願いいたします。

    物件画像: