東京都品川区上大崎2丁目(目黒駅)の賃貸:物件詳細
交通 所在地 |
駅徒歩 |
賃料 管理費等 |
敷金/保証金 礼金 |
間取り 面積 |
物件種目 築年月 |
|
JR山手線/目黒
東京都品川区上大崎2丁目
|
7分
|
21.1万円
なし
|
1ヶ月 / なし
なし
|
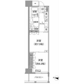
2K
41.10m²
|
賃貸マンション
2005年3月(築20年8ヶ月)
|
ペット相談、楽器相談、フロントサービス、常時ゴミ出し可能、高齢者相談、IT重説対応物件、保証人不要
|
|
間取図
|
外観
外観もきれいです
|
<
その他の画像
>
|
| 交通 | JR山手線 目黒駅 徒歩7分 |
|---|
| その他の交通 | 東京メトロ南北線 白金台駅 徒歩12分 東急目黒線 不動前駅 徒歩19分 |
| 所在地 |
東京都品川区上大崎2丁目
|
| 物件種目 |
賃貸マンション |
| 賃料 |
21.1万円 |
管理費等 |
なし |
| 敷金 / 保証金 |
1ヶ月 / なし |
礼金 |
なし |
| 敷引 |
- |
保証金償却 |
- |
| その他一時金 |
M-REALプレミアム会費2年:19,800円、鍵交換代等:33,000円~ |
保険等 |
要 2年 32,000円 |
| 維持費等 |
- |
| 間取り |
2K(K2.6、洋7.5、洋6.2) |
専有面積 |
41.10m² |
| 築年月 |
2005年3月(築20年8ヶ月)
|
階建 / 階 |
8階建 / 3階 |
| 建物構造 |
RC |
総戸数 |
- |
| 主要採光面 |
西 |
駐車場 |
近有 40,000円/月 |
| バイク置き場 |
有 |
駐輪場 |
有 |
| 建物名・部屋番号 |
アビティ目黒 |
ペット |
相談 |
| アピールポイント |
共用部には宅配ボックス・ゴミ出し24時間OKなどが揃っております。セキュリティ面は、TVインターホン・オートロックなど充実しているので、防犯対策もばっちりです。室内設備は洗面化粧台・浴室乾燥機など充実した設備を備え付けています。収納はクロゼット・全居室収納など豊富なので、衣類や履き物の整理がしやすく便利です。ペットと入居できるか事前にご相談いただける物件です。防犯意識の高いお客様からのニーズがある、防犯カメラ付きのマンションです。お部屋の専有面積は41.1平米。畳部屋をあまり使われない方向けの全居室フローリング設置。外装もおしゃれで快適な生活をおくることができるマンションです。初期費用が節約できる礼金不要のマンションがあります。駅から徒歩7分に立地する物件です。 |
| リフォーム履歴 |
- |
| リノベーション履歴 |
- |
| 備考 |
賃貸保証等:加入要(当社指定:初期費用は賃料等の50%、月次保証料は賃料等の1%。保証会社条件有)
管理形態/管理員の勤務形態:-/日勤
バルコニー:5.6m²
IT重説対応物件、管理人日勤
共用部にはゴミ出し24時間OK・宅配ボックスなどが備わっておりとても充実しています。収納はクロゼット・全居室収納など豊富なので、衣類や履き物の整理がしやすく便利です。室内設備は洗面所独立・浴室乾燥機などが揃っているので、快適に過ごしやすいお部屋になります。セキュリティ面は、オートロック・TVインターホンなどを設置しているので安全面でも優れております。こちらの物件はマンションです。全居室フローリングのため、床掃除がしやすくなっています。前日の残り湯を使用できる追い焚き機能付きです。何品も作る場合でも同時に料理を進められる、2口コンロを備え付けております。設備・環境ともに良い21.1万円の物件です。忙しい朝に遠くまでゴミ捨てに行かずに済むように、共用部にゴミ置き場が付いています。駅徒歩7分に駅が立地する物件なので、電車を多く利用する方にとって便利です。
|
| エネルギー消費性能 |
- |
| 断熱性能 |
- |
| 目安光熱費 |
- |
| バス・トイレ |
バス・トイレ別、浴室乾燥機、オートバス、追焚機能、洗面所独立、洗面所、温水洗浄便座、トイレ |
| キッチン |
システムキッチン、2口コンロ、ガスコンロ可 |
| セキュリティー |
モニター付オートロック、オートロック、モニター付インターホン、ディンプルキー、ダブルロックドア、防犯カメラ |
| 収納 |
全居室収納、収納スペース、クローゼット |
| 設備・サービス |
室内洗濯機置場、洗濯機置場、全居室フローリング、フローリング、都市ガス、エアコン、冷房 |
| TV・通信 |
インターネット対応、CATVインターネット、ケーブルTV、CS、BS端子 |
| その他 |
宅配BOX、バイク置き場、バルコニー、駐輪場、エレベーター |
| 契約期間 |
2年 |
現況 |
空家 |
| 条件等 |
- |
入居可能時期 |
2025年11月上旬予定 |
| 更新料 |
新賃料 1ヶ月 |
物件番号 |
1148271616 |
| 情報公開日 |
2025年10月23日 |
次回更新予定日 |
2025年11月6日 |
| ケータイ用バーコード |
- スマートフォンでこの物件を見る
- スマートフォンからもこの物件をご覧になれます。
|
※「-」と表示されている項目については、情報提供会社にご確認ください。
| 周辺施設 |
プレッセ 目黒店 |
| 距離 |
649m |
写真を見る |
| 周辺施設 |
成城石井 アトレ目黒2店 |
| 距離 |
673m |
写真を見る |
| 周辺施設 |
TOKYU SQUARE GOTANDA(五反田東急スクエア) |
| 距離 |
1609m |
写真を見る |
| 周辺施設 |
ファミリーマート 目黒駅東口店 |
| 距離 |
513m |
写真を見る |
| 周辺施設 |
武藤クリニック |
| 距離 |
675m |
写真を見る |
| 周辺施設 |
ガスト 目黒駅東口店(から好し取扱店) |
| 距離 |
299m |
写真を見る |
ここから簡単にお問い合わせをすることができます。
(SSLでの暗号化での送信を希望されるお客さまは
こちら
よりお問い合わせください)
お問い合わせを行う前に
「個人情報の取り扱いについて」を必ずお読みください。
「個人情報の取り扱いについて」に同意いただいた場合は「上記にご同意の上 確認画面へ進む」のボタンをクリックしてください。
個人情報の取り扱いについて
皆さまが送付された個人情報はアットホーム(株)のサーバを経由し、お問い合わせ先の不動産会社にメールまたはFAXにて転送されるためアットホーム(株)にも保管されます。アットホーム(株)で保管された個人情報の取り扱いについては、【こちら】をご覧ください。
また、本画面でご記入いただいた個人情報は、お問い合わせ先の不動産会社でも保管します。 お問い合わせ先の不動産会社が保管する個人情報の取り扱いについては、不動産会社に直接お問い合わせください。
東京都知事免許(1)第107337号 |
|---|
- 交通:
- JR山手線/新橋駅 徒歩5分
- 東京都中央区銀座8丁目11-1 GINZA GS BLD.2 7階
- TEL:
- 03-6281-4770
- FAX:
- 03-6281-4771
- 所属団体:
- (公社)東京都宅地建物取引業協会会員(公社)首都圏不動産公正取引協議会加盟
取引態様:仲介  - 00271811
|
- スマートフォンで
この不動産会社を見る

|
- 提携サイト等より掲載されている物件情報につきましては、不動産会社詳細情報にリンクされていないものがあります。
- 物件に関するお問合せは、物件詳細ページの「情報提供会社」に表示されている不動産会社へ直接お願いいたします。
- 間取図は、現況を優先させていただきます。
- 映像は物件の一部を撮影したものです。物件の契約にあたっての最終判断はご自身の判断に基づいて行ってください。
- 仲介手数料について

アットホームは物件情報の適正化に努めております。
内容に誤りがある場合にはこちらへご連絡ください。