東京都豊島区東池袋5丁目(東池袋駅)の賃貸:物件詳細
交通 所在地 |
駅徒歩 |
賃料 管理費等 |
敷金/保証金 礼金 |
間取り 面積 |
物件種目 築年月 |
|
東京メトロ有楽町線/東池袋
東京都豊島区東池袋5丁目
|
4分
|
13.6万円
10,000円
|
なし / なし
なし
|
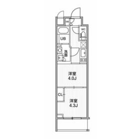
2K
25.58m²
|
賃貸マンション
2022年10月(築3年3ヶ月)
|
分譲タイプ、高齢者相談、二人入居可、24時間換気システム、外観タイル張り、IT重説対応物件、保証人不要
|
|
間取図
|
外観
外はこのようになっています
|
<
その他の画像
>
|
| 交通 | 東京メトロ有楽町線 東池袋駅 徒歩4分 |
|---|
| その他の交通 | 東京メトロ丸ノ内線 新大塚駅 徒歩10分 JR山手線 池袋駅 徒歩15分 |
| 所在地 |
東京都豊島区東池袋5丁目
|
| 物件種目 |
賃貸マンション |
| 賃料 |
13.6万円 |
管理費等 |
10,000円 |
| 敷金 / 保証金 |
なし / なし |
礼金 |
なし |
| 敷引 |
- |
保証金償却 |
- |
| その他一時金 |
Goodプレミアムα(24Hサポートのみ):12,100円、Goodプレミアムα登録料:2,200円、鍵交換代等:24,200円~ |
保険等 |
要 2年 22,000円 |
| 維持費等 |
- |
| 間取り |
2K(洋4.3、洋4) |
専有面積 |
25.58m² |
| 築年月 |
2022年10月(築3年3ヶ月)
|
階建 / 階 |
4階建 / 2階 |
| 建物構造 |
RC |
総戸数 |
- |
| 主要採光面 |
北西 |
駐車場 |
近有 40,000円/月 |
| バイク置き場 |
- |
駐輪場 |
有 |
| 建物名・部屋番号 |
SYFORME東池袋 |
ペット |
-
|
| アピールポイント |
室内設備は洗面化粧台・浴室乾燥機などが揃っており、とても充実しています。共用部には宅配ボックスが備え付けられているため、非対面での荷物の受け取りが可能です。セキュリティ面は、オートロック・TVインターホンなど充実しているので、防犯対策もばっちりです。情報端末を複数利用している方も嬉しい、インターネット使用料がかからない物件です。利便性の高い設備も充実した、高ニーズな2022年築の物件です。2口コンロが付いているので、おかずや汁物など複数の工程を同時にこなせます。水道代の節約につながる、追い焚き機能付きです。物件の近くに駐車場があるので、車をお持ちの方はご利用ください。BS・CSは様々な番組が視聴でき、娯楽も充実します。こちらのお部屋で新しい生活を始めてみませんか。 |
| リフォーム履歴 |
- |
| リノベーション履歴 |
- |
| 備考 |
賃貸保証等:加入要(初回 賃料等総額の50%~)
管理形態/管理員の勤務形態:-/-
IT重説対応物件
セキュリティ面は、TVインターホン・オートロックなどを設置しているので安全面でも優れております。室内設備は洗面所独立・浴室乾燥機などが揃っているので、快適に過ごしやすいお部屋になります。不在時でも荷物を受け取ることができるため、時間調整の手間が省ける宅配ボックスが付いております。こちらはマンションタイプになります。インターネット有りのお住まいで、パソコンを使う方にオススメ。照明付きの物件なら、照明器具を揃える必要がありません。この物件は駐輪場が付いている物件です。2口コンロが付いているので、2つの料理を同時に進められて時短につながります。クローゼット付きの物件です。2駅利用可能なアクセスの良い物件です。
|
| エネルギー消費性能 |
- |
| 断熱性能 |
- |
| 目安光熱費 |
- |
| バス・トイレ |
バス・トイレ別、浴室乾燥機、追焚機能、洗面所独立、洗面所、温水洗浄便座、トイレ |
| キッチン |
システムキッチン、独立型キッチン、2口コンロ、ガスコンロ可 |
| セキュリティー |
モニター付オートロック、オートロック、モニター付インターホン、ダブルロックドア、防犯カメラ |
| 収納 |
収納スペース、クローゼット |
| 設備・サービス |
室内洗濯機置場、洗濯機置場、全居室フローリング、フローリング、都市ガス、エアコン、冷房、照明器具 |
| TV・通信 |
インターネット対応、インターネット使用料無料、ケーブルTV、CS、BS端子 |
| その他 |
宅配BOX、バルコニー、駐輪場、エレベーター |
| 契約期間 |
2年 |
現況 |
居住中 |
| 条件等 |
- |
入居可能時期 |
2025年12月下旬予定 |
| 更新料 |
新賃料 1ヶ月 |
物件番号 |
1148274116 |
| 情報公開日 |
2025年12月11日 |
次回更新予定日 |
2025年12月25日 |
| ケータイ用バーコード |
- スマートフォンでこの物件を見る
- スマートフォンからもこの物件をご覧になれます。
|
※「-」と表示されている項目については、情報提供会社にご確認ください。
| 周辺施設 |
文京区立青柳幼稚園 |
| 距離 |
650m |
写真を見る |
| 周辺施設 |
ベジポタつけ麺えん寺 |
| 距離 |
1772m |
写真を見る |
| 周辺施設 |
ドミノ・ピザ 上池袋店 |
| 距離 |
1884m |
写真を見る |
| 周辺施設 |
maruetsu(マルエツ) プチ 護国寺駅前店 |
| 距離 |
951m |
写真を見る |
| 周辺施設 |
ファミリーマート 護国寺駅前店 |
| 距離 |
979m |
写真を見る |
| 周辺施設 |
日本調剤上池袋薬局 |
| 距離 |
1478m |
写真を見る |
ここから簡単にお問い合わせをすることができます。
(SSLでの暗号化での送信を希望されるお客さまは
こちら
よりお問い合わせください)
お問い合わせを行う前に
「個人情報の取り扱いについて」を必ずお読みください。
「個人情報の取り扱いについて」に同意いただいた場合は「上記にご同意の上 確認画面へ進む」のボタンをクリックしてください。
個人情報の取り扱いについて
皆さまが送付された個人情報はアットホーム(株)のサーバを経由し、お問い合わせ先の不動産会社にメールまたはFAXにて転送されるためアットホーム(株)にも保管されます。アットホーム(株)で保管された個人情報の取り扱いについては、【こちら】をご覧ください。
また、本画面でご記入いただいた個人情報は、お問い合わせ先の不動産会社でも保管します。 お問い合わせ先の不動産会社が保管する個人情報の取り扱いについては、不動産会社に直接お問い合わせください。
東京都知事免許(1)第107337号 |
|---|
- 交通:
- JR山手線/新宿駅 徒歩1分
- 東京都新宿区西新宿1丁目3-3 品川ステーションビル新宿5F
- TEL:
- 03-6258-0867
- 所属団体:
- (公社)東京都宅地建物取引業協会会員(公社)首都圏不動産公正取引協議会加盟
取引態様:仲介  - 00278932
|
- スマートフォンで
この不動産会社を見る

|
- 提携サイト等より掲載されている物件情報につきましては、不動産会社詳細情報にリンクされていないものがあります。
- 物件に関するお問合せは、物件詳細ページの「情報提供会社」に表示されている不動産会社へ直接お願いいたします。
- 間取図は、現況を優先させていただきます。
- 映像は物件の一部を撮影したものです。物件の契約にあたっての最終判断はご自身の判断に基づいて行ってください。
- 仲介手数料について

アットホームは物件情報の適正化に努めております。
内容に誤りがある場合にはこちらへご連絡ください。