東京都品川区東五反田5丁目(五反田駅)の賃貸:物件詳細
交通 所在地 |
駅徒歩 |
賃料 管理費等 |
敷金/保証金 礼金 |
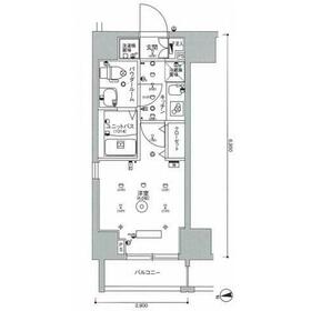
間取り 面積 |
物件種目 築年月 |
|
JR山手線/五反田
東京都品川区東五反田5丁目
|
8分
|
9.45万円
8,500円
|
1ヶ月 / なし
1ヶ月
|
1K
20.37m²
|
賃貸マンション
2014年4月(築11年7ヶ月)
|
分譲タイプ、常時ゴミ出し可能、閑静な住宅街、外観タイル張り、保証人不要
|
|
間取図
|
外観
|
<
その他の画像
>
|
| 交通 | JR山手線 五反田駅 徒歩8分 |
|---|
| その他の交通 | JR山手線 目黒駅 徒歩13分 東急池上線 大崎広小路駅 徒歩14分 |
| 所在地 |
東京都品川区東五反田5丁目
|
| 物件種目 |
賃貸マンション |
| 賃料 |
9.45万円 |
管理費等 |
8,500円 |
| 敷金 / 保証金 |
1ヶ月 / なし |
礼金 |
1ヶ月 |
| 敷引 |
- |
保証金償却 |
- |
| その他一時金 |
消火剤:5,500円、鍵交換代等:29,700円~ |
保険等 |
要 |
| 維持費等 |
安心入居サポート:1,650円/月、保険代(月額):1,000円/月 |
クレジットカード決済 |
初期費用可 |
| 間取り |
1K(洋6) |
専有面積 |
20.37m² |
| 築年月 |
2014年4月(築11年7ヶ月)
|
階建 / 階 |
11階建 / 4階 |
| 建物構造 |
RC |
総戸数 |
- |
| 主要採光面 |
西 |
駐車場 |
空無 |
| バイク置き場 |
有 2,000円/月 |
駐輪場 |
有 |
| 建物名・部屋番号 |
|
ペット |
-
|
| リフォーム履歴 |
- |
| リノベーション履歴 |
- |
| 備考 |
賃貸保証等:加入要(エポスカード ※〔初回保証委託料〕総賃料×50%〔月々〕総賃料×1.4%)
管理形態/管理員の勤務形態:-/-
五反田駅9分・システムキッチン・独立洗面台・角部屋・浴室乾燥・温水洗浄便座・フローリング・エアコン・2面採光※お気軽にご相談・お問合せ下さい(*^^*)
【物件番号3-422 】
☆ONLINEでのご案内・契約歓迎・個室接客OK・カード決済可☆
お電話【03-5749-3939】でお問い合わせを頂くとより迅速に対応できます(*´ω`*)
お気軽にお電話ください★新着物件や未公開物件も多数★
武蔵小山のスタッフが真心込めて物件をご紹介致します(*´ω`*)
・解約事務手数料12000円+税
インターネット上の物件は、ほぼ全てご紹介可能です!!!
お気軽にお申し付け下さい(=゜ω゜)ノ
|
| エネルギー消費性能 |
- |
| 断熱性能 |
- |
| 目安光熱費 |
- |
| バス・トイレ |
バス・トイレ別、浴室乾燥機、洗面所独立、洗面所、シャワー、温水洗浄便座、トイレ |
| キッチン |
システムキッチン、2口コンロ、ガスコンロ可 |
| セキュリティー |
モニター付オートロック、オートロック、モニター付インターホン、防犯カメラ |
| 収納 |
収納スペース、クローゼット、シューズボックス |
| 設備・サービス |
室内洗濯機置場、洗濯機置場、都市ガス給湯、給湯、全居室フローリング、フローリング、都市ガス、エアコン、照明器具 |
| TV・通信 |
CS、BS端子 |
| その他 |
宅配BOX、バイク置き場、バルコニー、駐輪場、エレベーター |
| 契約期間 |
2年 |
現況 |
空家 |
| 条件等 |
- |
入居可能時期 |
2025年11月下旬予定 |
| 更新料 |
新賃料 1.5ヶ月 |
物件番号 |
1148367816 |
| 情報公開日 |
2025年10月16日 |
次回更新予定日 |
2025年10月31日 |
| ケータイ用バーコード |
- スマートフォンでこの物件を見る
- スマートフォンからもこの物件をご覧になれます。
|
※「-」と表示されている項目については、情報提供会社にご確認ください。
| 周辺施設 |
NTT東日本 関東病院 |
| 距離 |
760m |
写真を見る |
| 周辺施設 |
アトレ目黒 1 |
| 距離 |
935m |
写真を見る |
| 周辺施設 |
レミィ五反田 |
| 距離 |
760m |
写真を見る |
| 周辺施設 |
大阪焼肉・ホルモン ふたご 五反田本店 |
| 距離 |
1001m |
写真を見る |
| 周辺施設 |
スターバックスコーヒー 西五反田店 |
| 距離 |
995m |
写真を見る |
| 周辺施設 |
NEW不動前駅 |
| 距離 |
1093m |
写真を見る |
ここから簡単にお問い合わせをすることができます。
(SSLでの暗号化での送信を希望されるお客さまは
こちら
よりお問い合わせください)
お問い合わせを行う前に
「個人情報の取り扱いについて」を必ずお読みください。
「個人情報の取り扱いについて」に同意いただいた場合は「上記にご同意の上 確認画面へ進む」のボタンをクリックしてください。
個人情報の取り扱いについて
皆さまが送付された個人情報はアットホーム(株)のサーバを経由し、お問い合わせ先の不動産会社にメールまたはFAXにて転送されるためアットホーム(株)にも保管されます。アットホーム(株)で保管された個人情報の取り扱いについては、【こちら】をご覧ください。
また、本画面でご記入いただいた個人情報は、お問い合わせ先の不動産会社でも保管します。 お問い合わせ先の不動産会社が保管する個人情報の取り扱いについては、不動産会社に直接お問い合わせください。
東京都知事免許(7)第71068号 |
|---|
- 交通:
- 東急目黒線/武蔵小山駅 徒歩3分
- 東京都品川区荏原3丁目3-21
- TEL:
- 03-5749-3939
- FAX:
- 03-5749-3933
- 所属団体:
- (公社)全日本不動産協会会員(公社)首都圏不動産公正取引協議会加盟
取引態様:仲介  - 00013605
|
- スマートフォンで
この不動産会社を見る

|
- 提携サイト等より掲載されている物件情報につきましては、不動産会社詳細情報にリンクされていないものがあります。
- 物件に関するお問合せは、物件詳細ページの「情報提供会社」に表示されている不動産会社へ直接お願いいたします。
- 間取図は、現況を優先させていただきます。
- 映像は物件の一部を撮影したものです。物件の契約にあたっての最終判断はご自身の判断に基づいて行ってください。
- 仲介手数料について

アットホームは物件情報の適正化に努めております。
内容に誤りがある場合にはこちらへご連絡ください。