大阪府大阪市天王寺区空堀町(玉造駅)の賃貸:物件詳細
交通 所在地 |
駅徒歩 |
賃料 管理費等 |
敷金/保証金 礼金 |
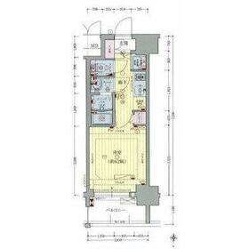
間取り 面積 |
物件種目 築年月 |
|
JR大阪環状線/玉造
大阪府大阪市天王寺区空堀町
|
5分
|
7.39万円
8,190円
|
なし / なし
10万円
|
1K
21.51m²
|
賃貸マンション
2017年3月(築9年1ヶ月)
|
デザイナーズ、常時ゴミ出し可能、高齢者相談、24時間換気システム、バリアフリー、閑静な住宅街、IT重説対応物件
|
|
間取図
|
外観
物件の外観です
|
<
その他の画像
>
|
| 交通 | JR大阪環状線 玉造駅 徒歩5分 |
|---|
| その他の交通 | JR大阪環状線 森ノ宮駅 徒歩10分 JR大阪環状線 鶴橋駅 徒歩15分 |
| 所在地 |
大阪府大阪市天王寺区空堀町
|
| 物件種目 |
賃貸マンション |
| 賃料 |
7.39万円 |
管理費等 |
8,190円 |
| 敷金 / 保証金 |
なし / なし |
礼金 |
10万円 |
| 敷引 |
- |
保証金償却 |
- |
| その他一時金 |
室内清掃費用:35,000円、鍵交換代等:29,700円~ |
保険等 |
要 1年 11,000円 |
| 維持費等 |
- |
| 間取り |
1K(洋6.2) |
専有面積 |
21.51m² |
| 築年月 |
2017年3月(築9年1ヶ月)
|
階建 / 階 |
14階建 / 12階 |
| 建物構造 |
RC |
総戸数 |
- |
| 主要採光面 |
北 |
駐車場 |
空無 |
| バイク置き場 |
有 1,500円/月 |
駐輪場 |
有 300円/月 |
| 建物名・部屋番号 |
プレサンス玉造駅前ルージュ 1202 |
ペット |
-
|
| アピールポイント |
収納はシューズボックス・クロゼットなどが備え付けられているので、衣類や日用品の収納に重宝します。セキュリティ面は、TVインターホン・オートロックなどを備え付けているので安心して暮らせます。共用部には宅配ボックス・ゴミ出し24時間OKなど様々な設備やサービスが揃っているので便利です。室内設備は浴室乾燥機・洗面所独立など充実した設備を備え付けています。2口コンロが付いているので、短い時間で一気に作り置きもできて効率的です。徒歩5分で駅にアクセスできる物件です。通風良好な物件はいつでも気持ちの良い空間です。駐輪場付きの物件です。照明を買わなくて済む照明付きの物件です。引っ越しの日時が決まっているのであればご相談ください。2沿線を利用でき、利便性が高い物件です。 |
| リフォーム履歴 |
- |
| リノベーション履歴 |
- |
| 備考 |
賃貸保証等:加入要(初回 50% 月 1.5% 初回 50% 月 1.5%)
管理形態/管理員の勤務形態:-/巡回
IT重説対応物件、外壁コンクリート、管理人巡回
物件のお問い合わせはSumoSumoまで♪♪
共用部には宅配ボックス・ゴミ出し24時間OKなどが備わっておりとても充実しています。セキュリティ面は、オートロック・TVインターホンなどを備え付けているので安心して暮らせます。収納はクロゼット・シューズボックスなどが備え付けられているので、衣類や日用品の収納に重宝します。室内設備は洗面所独立・浴室乾燥機など大変充実しております。築8年の物件です。敷地内ごみ置き場は、ごみを捨てる手間を減らしてくれます。1Kなのでキッチンも快適。楽しくお料理もできる満足の物件です。閑静な住宅地にあるマンションです。共用設備の充実している、楽しく生活できるマンションです。住みやすい環境が嬉しい賃貸物件です。おかずや汁物など何品も作りたい人におすすめな2口コンロを設置しています。
|
| エネルギー消費性能 |
- |
| 断熱性能 |
- |
| 目安光熱費 |
- |
| バス・トイレ |
バス・トイレ別、浴室暖房、浴室乾燥機、シャワー付洗面化粧台、洗面所独立、洗面所、洗面台、温水洗浄便座、トイレ |
| キッチン |
システムキッチン、独立型キッチン、2口コンロ、ガスコンロ可 |
| セキュリティー |
モニター付オートロック、オートロック、モニター付インターホン、防犯カメラ |
| 収納 |
収納スペース、クローゼット、シューズボックス |
| 設備・サービス |
室内洗濯機置場、洗濯機置場、フローリング、都市ガス、エアコン、冷房、人感センサー付照明、照明器具 |
| TV・通信 |
インターネット対応、インターネット使用料無料、CATVインターネット、ケーブルTV、CS、BS端子 |
| その他 |
宅配BOX、バイク置き場、バルコニー、駐輪場、エレベーター |
| 契約期間 |
2年 |
現況 |
居住中 |
| 条件等 |
- |
入居可能時期 |
相談 |
| 更新料 |
- |
物件番号 |
1148819022 |
| 情報公開日 |
2026年2月21日 |
次回更新予定日 |
2026年4月7日 |
| ケータイ用バーコード |
- スマートフォンでこの物件を見る
- スマートフォンからもこの物件をご覧になれます。
|
※「-」と表示されている項目については、情報提供会社にご確認ください。
| 周辺施設 |
ローソン 空堀町店 |
| 距離 |
93m |
写真を見る |
| 周辺施設 |
イズミヤ 玉造店 |
| 距離 |
494m |
写真を見る |
| 周辺施設 |
ライフ清水谷店 |
| 距離 |
751m |
写真を見る |
| 周辺施設 |
ダイコクドラッグ NEW玉造店 |
| 距離 |
283m |
写真を見る |
| 周辺施設 |
大阪玉造郵便局 |
| 距離 |
372m |
写真を見る |
| 周辺施設 |
東警察署上町交番 |
| 距離 |
618m |
写真を見る |
ここから簡単にお問い合わせをすることができます。
(SSLでの暗号化での送信を希望されるお客さまは
こちら
よりお問い合わせください)
お問い合わせを行う前に
「個人情報の取り扱いについて」を必ずお読みください。
「個人情報の取り扱いについて」に同意いただいた場合は「上記にご同意の上 確認画面へ進む」のボタンをクリックしてください。
個人情報の取り扱いについて
皆さまが送付された個人情報はアットホーム(株)のサーバを経由し、お問い合わせ先の不動産会社にメールまたはFAXにて転送されるためアットホーム(株)にも保管されます。アットホーム(株)で保管された個人情報の取り扱いについては、【こちら】をご覧ください。
また、本画面でご記入いただいた個人情報は、お問い合わせ先の不動産会社でも保管します。 お問い合わせ先の不動産会社が保管する個人情報の取り扱いについては、不動産会社に直接お問い合わせください。
大阪府知事免許(1)第62697号 |
|---|
- 交通:
- 地下鉄御堂筋線/心斎橋駅 徒歩3分
- 大阪府大阪市中央区南船場3丁目3-23 中和船場ビル102号
- TEL:
- 06-4400-6315
- FAX:
- 06-6258-3116
- 所属団体:
- (公社)全日本不動産協会会員(公社)近畿地区不動産公正取引協議会加盟
取引態様:仲介  - 50105934
|
- スマートフォンで
この不動産会社を見る

|
- 提携サイト等より掲載されている物件情報につきましては、不動産会社詳細情報にリンクされていないものがあります。
- 物件に関するお問合せは、物件詳細ページの「情報提供会社」に表示されている不動産会社へ直接お願いいたします。
- 間取図は、現況を優先させていただきます。
- 映像は物件の一部を撮影したものです。物件の契約にあたっての最終判断はご自身の判断に基づいて行ってください。
- 仲介手数料について

アットホームは物件情報の適正化に努めております。
内容に誤りがある場合にはこちらへご連絡ください。