東京都板橋区若木1丁目(東武練馬駅)の賃貸:物件詳細
交通 所在地 |
駅徒歩 |
賃料 管理費等 |
敷金/保証金 礼金 |
間取り 面積 |
物件種目 築年月 |
|
東武東上線/東武練馬
東京都板橋区若木1丁目
|
9分
|
7.1万円
15,000円
|
なし / なし
1.5ヶ月
|
1K
21.44m²
|
賃貸マンション
2011年10月(築14年2ヶ月)
|
ペット相談、分譲タイプ、常時ゴミ出し可能、角部屋、ルームシェア可、24時間換気システム、外観タイル張り、IT重説対応物件、保証人不要
|
|
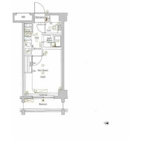
間取図
|
外観
|
<
その他の画像
>
|
| 交通 | 東武東上線 東武練馬駅 徒歩9分 |
|---|
| その他の交通 | 東武東上線 上板橋駅 徒歩13分 東京メトロ有楽町線 平和台駅 徒歩25分 |
| 所在地 |
東京都板橋区若木1丁目
|
| 物件種目 |
賃貸マンション |
| 賃料 |
7.1万円 |
管理費等 |
15,000円 |
| 敷金 / 保証金 |
なし / なし |
礼金 |
1.5ヶ月 |
| 敷引 |
- |
保証金償却 |
- |
| その他一時金 |
室内抗菌代:13,000円、鍵交換代等:33,000円~ |
保険等 |
要 |
| 維持費等 |
ベルプラス:2,200円/月 |
| 間取り |
1K(K2.0帖 洋室6.6帖) |
専有面積 |
21.44m² |
| 築年月 |
2011年10月(築14年2ヶ月)
|
階建 / 階 |
5階建 / 2階 |
| 建物構造 |
RC |
総戸数 |
- |
| 主要採光面 |
西 |
駐車場 |
無 |
| バイク置き場 |
- |
駐輪場 |
- |
| 建物名・部屋番号 |
ブランノアール東武練馬 202 |
ペット |
相談 |
| アピールポイント |
初期費用の一部クレジットカード決済可!IT重説もできます、ご相談ください。オンライン内見相談可能!お電話ください。【03-3963-8622】 |
| リフォーム履歴 |
- |
| リノベーション履歴 |
- |
| 備考 |
賃貸保証等:加入要(実費/初回保証料50%/JRAG)
管理形態/管理員の勤務形態:-/-
IT重説対応物件
豊島区・板橋区・北区でのお部屋探しはタウンハウジング板橋店にお任せください。
|
| エネルギー消費性能 |
- |
| 断熱性能 |
- |
| 目安光熱費 |
- |
| バス・トイレ |
バス・トイレ別、浴室乾燥機、洗面台、シャワー、温水洗浄便座、トイレ |
| キッチン |
システムキッチン、2口コンロ、ガスコンロ付 |
| セキュリティー |
モニター付オートロック、オートロック、モニター付インターホン、防犯カメラ |
| 収納 |
全居室収納、収納スペース、クローゼット、シューズボックス |
| 設備・サービス |
室内洗濯機置場、給湯、全居室フローリング、フローリング、都市ガス、エアコン |
| TV・通信 |
インターネット対応、光ファイバー、CS、BS端子 |
| その他 |
宅配BOX、バルコニー、エレベーター |
| 契約期間 |
2年 |
現況 |
居住中 |
| 条件等 |
- |
入居可能時期 |
2025年11月中旬予定 |
| 更新料 |
新賃料 1.5ヶ月 |
物件番号 |
1149147915 |
| 情報公開日 |
2025年10月4日 |
次回更新予定日 |
2025年11月18日 |
| ケータイ用バーコード |
- スマートフォンでこの物件を見る
- スマートフォンからもこの物件をご覧になれます。
|
※「-」と表示されている項目については、情報提供会社にご確認ください。
| 周辺施設 |
タカキューイオン板橋店 |
| 距離 |
923m |
写真を見る |
| 周辺施設 |
まいばすけっと徳丸1丁目店 |
| 距離 |
195m |
写真を見る |
| 周辺施設 |
セブンイレブン板橋徳丸1丁目店 |
| 距離 |
217m |
写真を見る |
| 周辺施設 |
ファミリーマート板橋西台店 |
| 距離 |
377m |
写真を見る |
| 周辺施設 |
セブンイレブン板橋西台店 |
| 距離 |
609m |
写真を見る |
| 周辺施設 |
どらっぐぱぱす板橋徳丸店 |
| 距離 |
461m |
写真を見る |
| 周辺施設 |
コジマSELECT上板橋店 |
| 距離 |
807m |
写真を見る |
| 周辺施設 |
TSUTAYA東武練馬店 |
| 距離 |
689m |
写真を見る |
ここから簡単にお問い合わせをすることができます。
(SSLでの暗号化での送信を希望されるお客さまは
こちら
よりお問い合わせください)
お問い合わせを行う前に
「個人情報の取り扱いについて」を必ずお読みください。
「個人情報の取り扱いについて」に同意いただいた場合は「上記にご同意の上 確認画面へ進む」のボタンをクリックしてください。
個人情報の取り扱いについて
皆さまが送付された個人情報はアットホーム(株)のサーバを経由し、お問い合わせ先の不動産会社にメールまたはFAXにて転送されるためアットホーム(株)にも保管されます。アットホーム(株)で保管された個人情報の取り扱いについては、【こちら】をご覧ください。
また、本画面でご記入いただいた個人情報は、お問い合わせ先の不動産会社でも保管します。 お問い合わせ先の不動産会社が保管する個人情報の取り扱いについては、不動産会社に直接お問い合わせください。
国土交通大臣免許(1)第9926号 |
|---|
- 交通:
- JR埼京線/板橋駅 徒歩1分
- 東京都北区滝野川7丁目9-7 西田ビル1階
- TEL:
- 03-3576-6810
- FAX:
- 03-3576-6811
- 所属団体:
- 所属団体未加入会員
取引態様:仲介  - 00270291
|
- スマートフォンで
この不動産会社を見る

|
- 提携サイト等より掲載されている物件情報につきましては、不動産会社詳細情報にリンクされていないものがあります。
- 物件に関するお問合せは、物件詳細ページの「情報提供会社」に表示されている不動産会社へ直接お願いいたします。
- 間取図は、現況を優先させていただきます。
- 映像は物件の一部を撮影したものです。物件の契約にあたっての最終判断はご自身の判断に基づいて行ってください。
- 仲介手数料について

アットホームは物件情報の適正化に努めております。
内容に誤りがある場合にはこちらへご連絡ください。