福岡県福岡市博多区美野島2丁目(西鉄平尾駅)の賃貸:物件詳細
交通 所在地 |
駅徒歩 |
賃料 管理費等 |
敷金/保証金 礼金 |
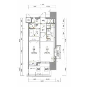
間取り 面積 |
物件種目 築年月 |
|
西鉄天神大牟田線/西鉄平尾
福岡県福岡市博多区美野島2丁目
|
16分
|
7.7万円
5,000円
|
なし / なし
1ヶ月
|
1LDK
29.75m²
|
賃貸マンション
2015年2月(築10年10ヶ月)
|
デザイナーズ、分譲タイプ、角部屋、二人入居可、閑静な住宅街
|
|
間取図
|
外観
|
<
その他の画像
>
|
| 交通 | 西鉄天神大牟田線 西鉄平尾駅 徒歩16分 |
|---|
| その他の交通 | 西鉄天神大牟田線 高宮駅 徒歩18分 地下鉄七隈線 渡辺通駅 徒歩21分 |
| 所在地 |
福岡県福岡市博多区美野島2丁目
|
| 物件種目 |
賃貸マンション |
| 賃料 |
7.7万円 |
管理費等 |
5,000円 |
| 敷金 / 保証金 |
なし / なし |
礼金 |
1ヶ月 |
| 敷引 |
- |
保証金償却 |
- |
| その他一時金 |
室内清掃費用:77,000円、鍵交換代等:38,500円~ |
保険等 |
要 2年 22,000円 |
| 維持費等 |
- |
| 間取り |
1LDK |
専有面積 |
29.75m² |
| 築年月 |
2015年2月(築10年10ヶ月)
|
階建 / 階 |
12階建 / 11階 |
| 建物構造 |
RC |
総戸数 |
- |
| 主要採光面 |
南西 |
駐車場 |
- |
| バイク置き場 |
有 |
駐輪場 |
有 |
| 建物名・部屋番号 |
サヴォイ博多エレメンツ |
ペット |
-
|
| アピールポイント |
ぜひ一度見ていただきたい、「サヴォイ博多エレメンツ」です。マミーズ 美野島店まで徒歩6分です。収納はシューズボックス・クロゼットなど豊富なので、広々と空間を利用することも可能です。洗面化粧台も設置してあり、身支度もしっかりできます。お届け指定時間に間に合わないとき、直接受け取れないかわりに荷物が届けられる宅配ボックスがあれば急いで帰る必要はありません。セキュリティ面は、TVインターホン・オートロックなどを備え付けているので安心して暮らせます。こちらのお部屋で新しい生活を始めてみませんか。閑静な住宅地にある物件です。エレベーター付きの物件です。快適に生活できてプライバシーが守られるのが角部屋です。周辺環境も良好で、魅力的な住環境のある、平成27年築の物件です。 |
| リフォーム履歴 |
- |
| リノベーション履歴 |
- |
| 備考 |
管理形態/管理員の勤務形態:-/-
★人気物件に空きが出ました★初期費用カード決済可★交渉事何でもお任せください★★LINE問い合わせで毎日新着物件送信中★契約も全てLINEで完結できます♪ぜひLIBERTE株式会社へお任せください★
化粧品やスタイリング剤などをまとめて出し入れして、サッと身支度を整えられる洗面化粧台を採用しています。セキュリティ面は、TVインターホン・オートロックなど充実しているので安心して生活できます。荷物を注文する時に時間を気にせずに済む宅配ボックスを共用部に備え付けております。収納はクロゼット・シューズボックスなど豊富なので、広々と空間を利用することも可能です。こちらは日当たりが良好な物件です。専有面積は29.75平米。2駅利用可能なアクセスの良い物件です。暑い日でも寒い日でも、エアコンのある物件なら安心です。家賃10万円以下の物件をお探しのお客様におすすめです。コンロや作業台が一体化しているので段差がなく、掃除がとても楽になるシステムキッチンを採用しております。入居日のことなど、小さなことでもかまいませんのでご相談ください。
|
| エネルギー消費性能 |
- |
| 断熱性能 |
- |
| 目安光熱費 |
- |
| バス・トイレ |
バス・トイレ別、洗面台、温水洗浄便座、トイレ |
| キッチン |
システムキッチン、2口コンロ |
| セキュリティー |
モニター付オートロック、オートロック、モニター付インターホン、防犯カメラ |
| 収納 |
収納スペース、クローゼット、シューズボックス |
| 設備・サービス |
室内洗濯機置場、洗濯機置場、エアコン |
| TV・通信 |
- |
| その他 |
宅配BOX、バイク置き場、バルコニー、駐輪場、エレベーター |
| 契約期間 |
2年 |
現況 |
居住中 |
| 条件等 |
- |
入居可能時期 |
相談 |
| 更新料 |
33,000円 |
物件番号 |
1149213116 |
| 情報公開日 |
2025年11月7日 |
次回更新予定日 |
2025年11月21日 |
| ケータイ用バーコード |
- スマートフォンでこの物件を見る
- スマートフォンからもこの物件をご覧になれます。
|
※「-」と表示されている項目については、情報提供会社にご確認ください。
| 周辺施設 |
マミーズ 美野島店 |
| 距離 |
472m |
写真を見る |
| 周辺施設 |
サニー美野島店 |
| 距離 |
564m |
写真を見る |
| 周辺施設 |
マックスバリュエクスプレス 住吉店 |
| 距離 |
650m |
写真を見る |
| 周辺施設 |
ミスターマックス Select 美野島店 |
| 距離 |
452m |
写真を見る |
| 周辺施設 |
MrMax(ミスターマックス) Select美野島店 |
| 距離 |
513m |
写真を見る |
| 周辺施設 |
ローソン 博多美野島二丁目店 |
| 距離 |
578m |
写真を見る |
ここから簡単にお問い合わせをすることができます。
(SSLでの暗号化での送信を希望されるお客さまは
こちら
よりお問い合わせください)
お問い合わせを行う前に
「個人情報の取り扱いについて」を必ずお読みください。
「個人情報の取り扱いについて」に同意いただいた場合は「上記にご同意の上 確認画面へ進む」のボタンをクリックしてください。
個人情報の取り扱いについて
皆さまが送付された個人情報はアットホーム(株)のサーバを経由し、お問い合わせ先の不動産会社にメールまたはFAXにて転送されるためアットホーム(株)にも保管されます。アットホーム(株)で保管された個人情報の取り扱いについては、【こちら】をご覧ください。
また、本画面でご記入いただいた個人情報は、お問い合わせ先の不動産会社でも保管します。 お問い合わせ先の不動産会社が保管する個人情報の取り扱いについては、不動産会社に直接お問い合わせください。
福岡県知事免許(1)第19496号 |
|---|
- 交通:
- 地下鉄七隈線/天神南駅 徒歩5分
- 福岡県福岡市中央区春吉3丁目21-18-603
- TEL:
- 092-753-9657
- FAX:
- 092-753-9658
- 所属団体:
- (公社)福岡県宅地建物取引業協会会員(一社)九州不動産公正取引協議会加盟
取引態様:仲介  - 80505930
|
- スマートフォンで
この不動産会社を見る

|
- 提携サイト等より掲載されている物件情報につきましては、不動産会社詳細情報にリンクされていないものがあります。
- 物件に関するお問合せは、物件詳細ページの「情報提供会社」に表示されている不動産会社へ直接お願いいたします。
- 間取図は、現況を優先させていただきます。
- 映像は物件の一部を撮影したものです。物件の契約にあたっての最終判断はご自身の判断に基づいて行ってください。
- 仲介手数料について

アットホームは物件情報の適正化に努めております。
内容に誤りがある場合にはこちらへご連絡ください。