東京都新宿区四谷4丁目(新宿御苑前駅)の賃貸:物件詳細
交通 所在地 |
駅徒歩 |
賃料 管理費等 |
敷金/保証金 礼金 |
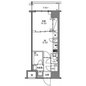
間取り 面積 |
物件種目 築年月 |
|
東京メトロ丸ノ内線/新宿御苑前
東京都新宿区四谷4丁目
|
5分
|
20万円
10,000円
|
1ヶ月 / なし
なし
|
1DK
29.13m²
|
賃貸マンション
2023年8月(築2年5ヶ月)
|
ペット相談、常時ゴミ出し可能、24時間換気システム、外観タイル張り、IT重説対応物件
|
|
間取図
|
外観
建物外観を気になさる方へ、見た目の良い物件です
|
<
その他の画像
>
|
| 交通 | 東京メトロ丸ノ内線 新宿御苑前駅 徒歩5分 |
|---|
| その他の交通 | 東京メトロ副都心線 新宿三丁目駅 徒歩13分 都営新宿線 曙橋駅 徒歩12分 |
| 所在地 |
東京都新宿区四谷4丁目
|
| 物件種目 |
賃貸マンション |
| 賃料 |
20万円 |
管理費等 |
10,000円 |
| 敷金 / 保証金 |
1ヶ月 / なし |
礼金 |
なし |
| 敷引 |
- |
保証金償却 |
- |
| その他一時金 |
室内清掃費用:44,000円、鍵交換代等:33,000円~ |
保険等 |
要 2年 22,000円 |
| 維持費等 |
- |
| 間取り |
1DK(DK5.8、洋4.3) |
専有面積 |
29.13m² |
| 築年月 |
2023年8月(築2年5ヶ月)
|
階建 / 階 |
15階建 / 13階 |
| 建物構造 |
RC |
総戸数 |
- |
| 主要採光面 |
北 |
駐車場 |
近有 40,000円/月 |
| バイク置き場 |
- |
駐輪場 |
有 無料 |
| 建物名・部屋番号 |
S-RESIDENCE新宿御苑 |
ペット |
相談 |
| アピールポイント |
室内設備は洗面化粧台・浴室乾燥機などが揃っているので、快適に過ごしやすいお部屋になります。収納はクロゼット・全居室収納など豊富なので、衣類や履き物の整理がしやすく便利です。共用部にはゴミ出し24時間OK・宅配ボックスなどが揃っており、とても充実しています。セキュリティ面は、オートロック・TVインターホンなど充実しているので安心して生活できます。新しい日々を送るにふさわしい、きれいな室内です。ご利用可能な駅が2つあり、行き先に応じて乗車駅の使い分けができます。充実の設備と綺麗な室内を兼ね備えた、2023年築の物件です。暑い日も寒い日も使えるエアコンが付いており、空調管理に便利。BS・CSに加入すると毎日の生活が楽しくなりいつでも面白いチャンネルが見つかりますよ。バルコニー付きの物件です。自宅近くに駐車場がありますので、近くに駐車することができます。 |
| リフォーム履歴 |
- |
| リノベーション履歴 |
- |
| 備考 |
賃貸保証等:加入要(月額総賃料の50%、更新料12,000円/年 口座振替手数料:330円(税込)/月 毎月27日に口座振替でのお支払い)
管理形態/管理員の勤務形態:-/-
IT重説対応物件
収納はクロゼット・全居室収納などが備え付けられているので、衣類や日用品の収納に重宝します。セキュリティ面は、TVインターホン・オートロックなどを備え付けているので安心して暮らせます。共用部にはゴミ出し24時間OK・宅配ボックスなどが備わっておりとても充実しています。室内設備は洗面化粧台・浴室乾燥機などが揃っているので、快適に過ごしやすいお部屋になります。コンロやシンクが一体となっていてお手入れが簡単なシステムキッチンが付いています。犯罪を未然に防止して安全に暮らせるように、共用部に防犯カメラを設置しています。インターネット有りのお住まいで、パソコンを使う方にオススメ。お車を所有されてる方に。近隣に駐車場もあります。ワンルームよりも住みやすくキッチンのお部屋があって快適な1DK。憧れの新生活を早くはじめるためにも、現在空き部屋の物件はいかがでしょうか。礼金不要というメリットは経済的にも得する嬉しい利点であります。
|
| エネルギー消費性能 |
- |
| 断熱性能 |
- |
| 目安光熱費 |
- |
| バス・トイレ |
バス・トイレ別、浴室乾燥機、オートバス、追焚機能、洗面所独立、洗面所、温水洗浄便座、トイレ |
| キッチン |
オープンキッチン、システムキッチン、2口コンロ、ガスコンロ可 |
| セキュリティー |
モニター付オートロック、オートロック、モニター付インターホン、ディンプルキー、防犯カメラ |
| 収納 |
全居室収納、収納スペース、クローゼット |
| 設備・サービス |
室内洗濯機置場、洗濯機置場、全居室フローリング、フローリング、エアコン、冷房 |
| TV・通信 |
インターネット対応、インターネット使用料無料、CS、BS端子 |
| その他 |
宅配BOX、バルコニー、駐輪場、エレベーター |
| 契約期間 |
2年 |
現況 |
空家 |
| 条件等 |
- |
入居可能時期 |
相談 |
| 更新料 |
新賃料 1ヶ月 |
物件番号 |
1149275516 |
| 情報公開日 |
2025年11月1日 |
次回更新予定日 |
2026年1月2日 |
| ケータイ用バーコード |
- スマートフォンでこの物件を見る
- スマートフォンからもこの物件をご覧になれます。
|
※「-」と表示されている項目については、情報提供会社にご確認ください。
| 周辺施設 |
ドトールコーヒーショップ 曙橋店 |
| 距離 |
953m |
写真を見る |
| 周辺施設 |
新宿区立富久さくら公園 |
| 距離 |
524m |
写真を見る |
| 周辺施設 |
ヨークフーズ 新宿富久店 |
| 距離 |
449m |
写真を見る |
| 周辺施設 |
ミニストップ 新宿花園通り店 |
| 距離 |
279m |
写真を見る |
| 周辺施設 |
サンドラッグ CVS四谷三丁目店 |
| 距離 |
657m |
写真を見る |
| 周辺施設 |
ザ・ダイソー ユニオン新宿ビル店 |
| 距離 |
1255m |
写真を見る |
| 周辺施設 |
あけぼの診療所 |
| 距離 |
1083m |
写真を見る |
| 周辺施設 |
四谷通二郵便局 |
| 距離 |
1071m |
写真を見る |
ここから簡単にお問い合わせをすることができます。
(SSLでの暗号化での送信を希望されるお客さまは
こちら
よりお問い合わせください)
お問い合わせを行う前に
「個人情報の取り扱いについて」を必ずお読みください。
「個人情報の取り扱いについて」に同意いただいた場合は「上記にご同意の上 確認画面へ進む」のボタンをクリックしてください。
個人情報の取り扱いについて
皆さまが送付された個人情報はアットホーム(株)のサーバを経由し、お問い合わせ先の不動産会社にメールまたはFAXにて転送されるためアットホーム(株)にも保管されます。アットホーム(株)で保管された個人情報の取り扱いについては、【こちら】をご覧ください。
また、本画面でご記入いただいた個人情報は、お問い合わせ先の不動産会社でも保管します。 お問い合わせ先の不動産会社が保管する個人情報の取り扱いについては、不動産会社に直接お問い合わせください。
東京都知事免許(1)第107337号 |
|---|
- 交通:
- JR山手線/新橋駅 徒歩5分
- 東京都中央区銀座8丁目11-1 GINZA GS BLD.2 7階
- TEL:
- 03-6281-4770
- FAX:
- 03-6281-4771
- 所属団体:
- (公社)東京都宅地建物取引業協会会員(公社)首都圏不動産公正取引協議会加盟
取引態様:仲介  - 00271811
|
- スマートフォンで
この不動産会社を見る

|
- 提携サイト等より掲載されている物件情報につきましては、不動産会社詳細情報にリンクされていないものがあります。
- 物件に関するお問合せは、物件詳細ページの「情報提供会社」に表示されている不動産会社へ直接お願いいたします。
- 間取図は、現況を優先させていただきます。
- 映像は物件の一部を撮影したものです。物件の契約にあたっての最終判断はご自身の判断に基づいて行ってください。
- 仲介手数料について

アットホームは物件情報の適正化に努めております。
内容に誤りがある場合にはこちらへご連絡ください。