東京都大田区大森西3丁目(平和島駅)の賃貸:物件詳細
交通 所在地 |
駅徒歩 |
賃料 管理費等 |
敷金/保証金 礼金 |
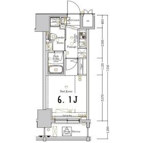
間取り 面積 |
物件種目 築年月 |
京急本線/平和島
東京都大田区大森西3丁目
|
7分
|
8.4万円
15,000円
|
なし / なし
1ヶ月
|
1K
20.44m²
|
賃貸マンション
2013年7月(築12年4ヶ月)
|
ペット相談、デザイナーズ、分譲タイプ、常時ゴミ出し可能、高齢者相談、24時間セキュリティー、24時間換気システム、閑静な住宅街、外観タイル張り、保証人不要
|
間取図
|
外観
|
<
その他の画像
>
|
交通 | 京急本線 平和島駅 徒歩7分 |
---|
その他の交通 | 京急空港線 京急蒲田駅 徒歩20分 JR京浜東北線 大森駅 徒歩25分 |
所在地 |
東京都大田区大森西3丁目
|
物件種目 |
賃貸マンション |
賃料 |
8.4万円 |
管理費等 |
15,000円 |
敷金 / 保証金 |
なし / なし |
礼金 |
1ヶ月 |
敷引 |
- |
保証金償却 |
- |
その他一時金 |
除菌消臭サービス:13,200円、事務手数料:5,500円、鍵交換代等:33,000円~ |
保険等 |
要 2年 18,000円 |
維持費等 |
24時間サポート料:1,000円/月 |
間取り |
1K(洋室6.1・K2) |
専有面積 |
20.44m² |
築年月 |
2013年7月(築12年4ヶ月)
|
階建 / 階 |
11階建 / 8階 |
建物構造 |
RC |
総戸数 |
- |
主要採光面 |
南東 |
駐車場 |
近有 30,000円/月 |
バイク置き場 |
無 |
駐輪場 |
有 |
建物名・部屋番号 |
XEBEC平和島 |
ペット |
相談 |
リフォーム履歴 |
- |
リノベーション履歴 |
- |
備考 |
管理形態/管理員の勤務形態:-/巡回
管理人巡回
★すぐに空室情報をお調べいたしますので、電話かメールでお気軽にご連絡ください★___★お部屋の写真・お図面の送付・入居時期のご相談・ご契約金のクレジットカード払い、分割払いも、お客様のご要望を喜んでお受けいたします★___★なんでもお気軽にご相談ください!!保証人様不要プランもございます解約違約金1年未満は総賃料1か月分有!!
|
エネルギー消費性能 |
- |
断熱性能 |
- |
目安光熱費 |
- |
バス・トイレ |
バス・トイレ別、浴室乾燥機、オートバス、洗面所独立、洗面所、洗面台、シャワー、温水洗浄便座、トイレ |
キッチン |
システムキッチン、2口コンロ、ガスコンロ付 |
セキュリティー |
モニター付オートロック、オートロック、モニター付インターホン、ディンプルキー、ダブルロックドア、防犯カメラ、火災警報器(報知機) |
収納 |
全居室収納、収納スペース、クローゼット、シューズボックス |
設備・サービス |
室内洗濯機置場、洗濯機置場、給湯、全居室フローリング、フローリング、都市ガス、エアコン、人感センサー付照明、照明器具 |
TV・通信 |
光ファイバー、CATVインターネット、ケーブルTV、CS、BS端子 |
その他 |
宅配BOX、バルコニー、駐輪場、エレベーター |
契約期間 |
2年 |
現況 |
空家 |
条件等 |
- |
入居可能時期 |
即時 |
更新料 |
新賃料 1ヶ月 |
物件番号 |
1149341110 |
情報公開日 |
2025年9月9日 |
次回更新予定日 |
2025年11月6日 |
ケータイ用バーコード |
- スマートフォンでこの物件を見る
- スマートフォンからもこの物件をご覧になれます。
|
※「-」と表示されている項目については、情報提供会社にご確認ください。
周辺施設 |
オーケー 梅屋敷店 |
距離 |
720m |
写真を見る |
周辺施設 |
大森家政専門学校 |
距離 |
737m |
写真を見る |
周辺施設 |
マクドナルド大森町店 |
距離 |
325m |
写真を見る |
周辺施設 |
松屋 大森町店 |
距離 |
368m |
写真を見る |
周辺施設 |
ぷらもーる梅屋敷商店街 |
距離 |
1147m |
写真を見る |
周辺施設 |
MEGAドン・キホーテ大森山王店 |
距離 |
1892m |
写真を見る |
ここから簡単にお問い合わせをすることができます。
(SSLでの暗号化での送信を希望されるお客さまは
こちら
よりお問い合わせください)
お問い合わせを行う前に
「個人情報の取り扱いについて」を必ずお読みください。
「個人情報の取り扱いについて」に同意いただいた場合は「上記にご同意の上 確認画面へ進む」のボタンをクリックしてください。
個人情報の取り扱いについて
皆さまが送付された個人情報はアットホーム(株)のサーバを経由し、お問い合わせ先の不動産会社にメールまたはFAXにて転送されるためアットホーム(株)にも保管されます。アットホーム(株)で保管された個人情報の取り扱いについては、【こちら】をご覧ください。
また、本画面でご記入いただいた個人情報は、お問い合わせ先の不動産会社でも保管します。 お問い合わせ先の不動産会社が保管する個人情報の取り扱いについては、不動産会社に直接お問い合わせください。
東京都知事免許(3)第96877号 |
---|
- 交通:
- JR山手線/五反田駅 徒歩2分
- 東京都品川区東五反田2丁目3-4-9F
- TEL:
- 03-6447-7373
- FAX:
- 03-6447-7372
- 所属団体:
- (公社)全日本不動産協会会員不動産公正取引協議会加盟
取引態様:仲介  - 00161501
|
- スマートフォンで
この不動産会社を見る

|
- 提携サイト等より掲載されている物件情報につきましては、不動産会社詳細情報にリンクされていないものがあります。
- 物件に関するお問合せは、物件詳細ページの「情報提供会社」に表示されている不動産会社へ直接お願いいたします。
- 間取図は、現況を優先させていただきます。
- 映像は物件の一部を撮影したものです。物件の契約にあたっての最終判断はご自身の判断に基づいて行ってください。
- 仲介手数料について

アットホームは物件情報の適正化に努めております。
内容に誤りがある場合にはこちらへご連絡ください。