神奈川県横浜市南区宮元町1丁目(吉野町駅)の賃貸:物件詳細
交通 所在地 |
駅徒歩 |
賃料 管理費等 |
敷金/保証金 礼金 |
間取り 面積 |
物件種目 築年月 |
|
ブルーライン/吉野町
神奈川県横浜市南区宮元町1丁目
|
6分
|
7.15万円
10,000円
|
1ヶ月 / なし
なし
|
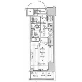
1K
20.83m²
|
賃貸マンション
2021年9月(築4年3ヶ月)
|
ペット相談、楽器相談、常時ゴミ出し可能、角部屋、最上階、高齢者相談、二人入居可、免震構造、制震構造、24時間換気システム、IT重説対応物件、保証人不要
|
|
間取図
|
外観
|
<
その他の画像
>
|
| 交通 | ブルーライン 吉野町駅 徒歩6分 |
|---|
| その他の交通 | 京急本線 南太田駅 徒歩6分 ブルーライン 蒔田駅 徒歩7分 |
| 所在地 |
神奈川県横浜市南区宮元町1丁目
|
| 物件種目 |
賃貸マンション |
| 賃料 |
7.15万円 |
管理費等 |
10,000円 |
| 敷金 / 保証金 |
1ヶ月 / なし |
礼金 |
なし |
| 敷引 |
- |
保証金償却 |
- |
| その他一時金 |
24時間サポート:16,500円、書類作成費:5,500円、鍵交換代等:27,500円~ |
保険等 |
要 2年 20,000円 |
| 維持費等 |
- |
| 間取り |
1K(洋6) |
専有面積 |
20.83m² |
| 築年月 |
2021年9月(築4年3ヶ月)
|
階建 / 階 |
11階建 / 11階 |
| 建物構造 |
RC |
総戸数 |
- |
| 主要採光面 |
|
駐車場 |
近有 20,000円/月 |
| バイク置き場 |
- |
駐輪場 |
有 |
| 建物名・部屋番号 |
リライア吉野町スリー |
ペット |
小型犬可・ 猫可 |
| アピールポイント |
セキュリティ面は、TVインターホン・オートロックなどを備え付けているので安心して暮らせます。収納はシューズボックス・クロゼット・全居室収納など豊富なので、広々と空間を利用することも可能です。共用部には宅配ボックス・ゴミ出し24時間OKなどが揃っております。室内設備は洗面所独立・浴室乾燥機などが揃っており、とても充実しています。家でパソコンを使う人にぜひご検討いただきたいインターネット有り物件です。2つの路線をご利用できる場所にあり、アクセスはとても便利です。こちらの物件では、駐車場が月額20000円でご利用いただけます。多くの方にご好評の、BS対応の物件となっています。敷地内にごみ置き場のある物件です。こちらは11階建ての物件です。防犯カメラがある物件なら安心して暮らせます。 |
| リフォーム履歴 |
- |
| リノベーション履歴 |
- |
| 備考 |
賃貸保証等:加入要(初回保証料:月額総賃料の40%~ 継続保証料:月or年(保証会社により異なる))
管理形態/管理員の勤務形態:-/巡回
バルコニー:3.27m²
IT重説対応物件、管理人巡回
収納はシューズボックス・クロゼット・全居室収納など豊富なので、広々と空間を利用することも可能です。セキュリティ面は、TVインターホン・オートロックなどを備え付けているので安心して暮らせます。共用部にはゴミ出し24時間OK・宅配ボックスなどが揃っております。室内設備は洗面所独立・浴室乾燥機など大変充実しております。需要性の高い、礼金不要の快適空間をご提供いたします。重たいゴミの持ち運びがしやすく、敷地内にごみ置き場があります。夏でも涼しい全居室フローリングのお住まいになります。日常生活で利用頻度の高い水回りだからこそ、使い勝手のいいシステムキッチン付きの物件を選んでみませんか。車をよく利用する方も安心、近隣に駐車場があります。是非ご覧ください11階建ての高層建築。清潔感のある室内が魅力的な2021年築の物件となっており、一押しです。
|
| エネルギー消費性能 |
- |
| 断熱性能 |
- |
| 目安光熱費 |
- |
| バス・トイレ |
バス・トイレ別、浴室乾燥機、シャワー付洗面化粧台、洗面所独立、洗面所、洗面台、シャワー、温水洗浄便座、トイレ |
| キッチン |
システムキッチン、2口コンロ、ガスコンロ可 |
| セキュリティー |
モニター付オートロック、オートロック、モニター付インターホン、ディンプルキー、防犯カメラ |
| 収納 |
全居室収納、収納スペース、クローゼット、シューズボックス |
| 設備・サービス |
全居室エアコン、室内洗濯機置場、洗濯機置場、都市ガス給湯、給湯、全居室フローリング、フローリング、クッションフロア、都市ガス、エアコン、都市ガス暖房、暖房、冷房、人感センサー付照明、照明器具 |
| TV・通信 |
インターネット対応、インターネット使用料無料、CS、BS端子 |
| その他 |
宅配BOX、バルコニー、駐輪場、エレベーター |
| 契約期間 |
2年 |
現況 |
居住中 |
| 条件等 |
- |
入居可能時期 |
相談 |
| 更新料 |
新賃料 1ヶ月 |
物件番号 |
1149345116 |
| 情報公開日 |
2025年10月17日 |
次回更新予定日 |
2025年11月7日 |
| ケータイ用バーコード |
- スマートフォンでこの物件を見る
- スマートフォンからもこの物件をご覧になれます。
|
※「-」と表示されている項目については、情報提供会社にご確認ください。
| 周辺施設 |
いなげや 横浜東蒔田店 |
| 距離 |
338m |
写真を見る |
| 周辺施設 |
まいばすけっと 吉野町5丁目店 |
| 距離 |
287m |
写真を見る |
| 周辺施設 |
お三の宮日枝幼稚園 |
| 距離 |
329m |
写真を見る |
| 周辺施設 |
医療法人佐藤病院 |
| 距離 |
390m |
写真を見る |
| 周辺施設 |
SUPER MARKET FUJI(富士シティオ) 横浜南店 |
| 距離 |
480m |
写真を見る |
| 周辺施設 |
ハックドラッグ 横浜南太田店 |
| 距離 |
567m |
写真を見る |
| 周辺施設 |
横浜市立日枝小学校 |
| 距離 |
429m |
写真を見る |
ここから簡単にお問い合わせをすることができます。
(SSLでの暗号化での送信を希望されるお客さまは
こちら
よりお問い合わせください)
お問い合わせを行う前に
「個人情報の取り扱いについて」を必ずお読みください。
「個人情報の取り扱いについて」に同意いただいた場合は「上記にご同意の上 確認画面へ進む」のボタンをクリックしてください。
個人情報の取り扱いについて
皆さまが送付された個人情報はアットホーム(株)のサーバを経由し、お問い合わせ先の不動産会社にメールまたはFAXにて転送されるためアットホーム(株)にも保管されます。アットホーム(株)で保管された個人情報の取り扱いについては、【こちら】をご覧ください。
また、本画面でご記入いただいた個人情報は、お問い合わせ先の不動産会社でも保管します。 お問い合わせ先の不動産会社が保管する個人情報の取り扱いについては、不動産会社に直接お問い合わせください。
神奈川県知事免許(1)第32469号 |
|---|
- 交通:
- JR京浜東北線/横浜駅 徒歩10分
- 神奈川県横浜市西区浅間町1丁目13-5 藤江ビル3階
- TEL:
- 045-900-4191
- FAX:
- 045-548-3835
- 所属団体:
- (公社)全日本不動産協会会員(公社)首都圏不動産公正取引協議会加盟
取引態様:仲介  - 00277505
|
- スマートフォンで
この不動産会社を見る

|
- 提携サイト等より掲載されている物件情報につきましては、不動産会社詳細情報にリンクされていないものがあります。
- 物件に関するお問合せは、物件詳細ページの「情報提供会社」に表示されている不動産会社へ直接お願いいたします。
- 間取図は、現況を優先させていただきます。
- 映像は物件の一部を撮影したものです。物件の契約にあたっての最終判断はご自身の判断に基づいて行ってください。
- 仲介手数料について

アットホームは物件情報の適正化に努めております。
内容に誤りがある場合にはこちらへご連絡ください。