東京都足立区梅田1丁目(五反野駅)の賃貸:物件詳細
交通 所在地 |
駅徒歩 |
賃料 管理費等 |
敷金/保証金 礼金 |
間取り 面積 |
物件種目 築年月 |
|
東武伊勢崎線/五反野
東京都足立区梅田1丁目
|
10分
|
8.7万円
12,000円
|
なし / なし
なし
|
1K
25.59m²
|
賃貸マンション
2025年9月
|
ペット相談、楽器相談、常時ゴミ出し可能、角部屋、IT重説対応物件、保証人不要
|
|
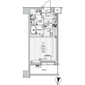
間取図
|
外観
|
<
その他の画像
>
|
| 交通 | 東武伊勢崎線 五反野駅 徒歩10分 |
|---|
| その他の交通 | 東武伊勢崎線 小菅駅 徒歩15分 東武伊勢崎線 梅島駅 徒歩20分 |
| 所在地 |
東京都足立区梅田1丁目
|
| 物件種目 |
賃貸マンション |
| 賃料 |
8.7万円 |
管理費等 |
12,000円 |
| 敷金 / 保証金 |
なし / なし |
礼金 |
なし |
| 敷引 |
- |
保証金償却 |
- |
| その他一時金 |
なし |
保険等 |
要 |
| 維持費等 |
- |
クレジットカード決済 |
初期費用可 |
| 間取り |
1K(洋室8.6帖 K2.5帖) |
専有面積 |
25.59m² |
| 築年月 |
2025年9月
|
階建 / 階 |
9階建 / 6階 |
| 建物構造 |
RC |
総戸数 |
61戸 |
| 主要採光面 |
北 |
駐車場 |
- |
| バイク置き場 |
有 |
駐輪場 |
有 |
| 建物名・部屋番号 |
メイクスアート五反野 605 |
ペット |
小型犬可・ 猫可 |
| アピールポイント |
閲覧頂きまして誠に有難うございます。
弊社は33拠点のネットワークを駆使し、 お客様の詳細なニーズに幅広くお応えできます様、 最新の情報を常に取り揃えております。
また、 当社は旭化成ヘーベルメゾン・ 大和ハウス・ セキスイハイム・ 積水ハウスシャーメゾン等ハウスメーカーの特約代理店でもありますので、 数多くのお部屋をご提供できます。
足立区・ 葛飾区・ 荒川区・ 台東区近郊エリアの物件をご紹介させていただきます。新築・ 駅近・ ペット相談・ 分譲賃貸・ 貸家等お部屋探しのお悩み事があればお気軽にご相談くださいませ。
お問い合わせ・ ご来店をスタッフ一同心よりお待ち申し上げます。 |
| リフォーム履歴 |
- |
| リノベーション履歴 |
- |
| 備考 |
賃貸保証等:加入要(初回保証料:月額家賃の80%、月額1%、口座振替手数料550円。)
管理形態/管理員の勤務形態:-/-
IT重説対応物件
保険・24時間サポート2200円/月。ルームクリーニング費用44000円。エアコンクリーニング代16500円/台。更新時更新事務手数料16500円。ペット飼育時1匹につき償却敷金1ヶ月積み増し(償却)(小型犬又は猫2匹まで)。短期解約違約金有1年未満解約の場合総賃料の1.5ヶ月分の支払い。
|
| エネルギー消費性能 |
- |
| 断熱性能 |
- |
| 目安光熱費 |
- |
| バス・トイレ |
バス・トイレ別、浴室乾燥機、シャワー付洗面化粧台、洗面所独立、温水洗浄便座 |
| キッチン |
システムキッチン、2口コンロ、ガスコンロ付 |
| セキュリティー |
モニター付オートロック、オートロック、モニター付インターホン、防犯カメラ |
| 収納 |
ウォークインクローゼット、収納スペース、クローゼット、シューズボックス |
| 設備・サービス |
室内洗濯機置場、フローリング、都市ガス、エアコン |
| TV・通信 |
インターネット対応、インターネット使用料無料、CS、BS端子 |
| その他 |
宅配BOX、バイク置き場、バルコニー、駐輪場、エレベーター |
| 契約期間 |
2年 |
現況 |
空家 |
| 条件等 |
- |
入居可能時期 |
即時 |
| 更新料 |
新賃料 1.5ヶ月 |
物件番号 |
1149560415 |
| 情報公開日 |
2025年10月6日 |
次回更新予定日 |
2025年11月14日 |
| ケータイ用バーコード |
- スマートフォンでこの物件を見る
- スマートフォンからもこの物件をご覧になれます。
|
※「-」と表示されている項目については、情報提供会社にご確認ください。
| 周辺施設 |
H&Dイチカワ |
| 距離 |
210m |
写真を見る |
| 周辺施設 |
セブンイレブン足立梅田2丁目店 |
| 距離 |
560m |
写真を見る |
| 周辺施設 |
足立区立足立小学校 |
| 距離 |
760m |
写真を見る |
| 周辺施設 |
医療法人社団新潮会足立慶友リハビリテーション病院 |
| 距離 |
210m |
写真を見る |
| 周辺施設 |
ごたんの保育園 |
| 距離 |
880m |
写真を見る |
| 周辺施設 |
梅田一丁目交番 |
| 距離 |
50m |
写真を見る |
| 周辺施設 |
足立1丁目児童遊園 |
| 距離 |
450m |
写真を見る |
| 周辺施設 |
ショッピングタウン・カリブ梅島店 |
| 距離 |
700m |
写真を見る |
ここから簡単にお問い合わせをすることができます。
(SSLでの暗号化での送信を希望されるお客さまは
こちら
よりお問い合わせください)
お問い合わせを行う前に
「個人情報の取り扱いについて」を必ずお読みください。
「個人情報の取り扱いについて」に同意いただいた場合は「上記にご同意の上 確認画面へ進む」のボタンをクリックしてください。
個人情報の取り扱いについて
皆さまが送付された個人情報はアットホーム(株)のサーバを経由し、お問い合わせ先の不動産会社にメールまたはFAXにて転送されるためアットホーム(株)にも保管されます。アットホーム(株)で保管された個人情報の取り扱いについては、【こちら】をご覧ください。
また、本画面でご記入いただいた個人情報は、お問い合わせ先の不動産会社でも保管します。 お問い合わせ先の不動産会社が保管する個人情報の取り扱いについては、不動産会社に直接お問い合わせください。
国土交通大臣免許(2)第9556号 |
|---|
- 交通:
- JR常磐線/北千住駅 徒歩2分
- 東京都足立区千住2丁目22 SKビル1階
- TEL:
- 03-6850-1117
- FAX:
- 03-6850-1118
- 所属団体:
- (公社)全日本不動産協会会員(公社)首都圏不動産公正取引協議会加盟
取引態様:仲介  - 00266757
|
- スマートフォンで
この不動産会社を見る

|
- 提携サイト等より掲載されている物件情報につきましては、不動産会社詳細情報にリンクされていないものがあります。
- 物件に関するお問合せは、物件詳細ページの「情報提供会社」に表示されている不動産会社へ直接お願いいたします。
- 間取図は、現況を優先させていただきます。
- 映像は物件の一部を撮影したものです。物件の契約にあたっての最終判断はご自身の判断に基づいて行ってください。
- 仲介手数料について

アットホームは物件情報の適正化に努めております。
内容に誤りがある場合にはこちらへご連絡ください。