東京都葛飾区東新小岩7丁目(新小岩駅)の賃貸:物件詳細
交通 所在地 |
駅徒歩 |
賃料 管理費等 |
敷金/保証金 礼金 |
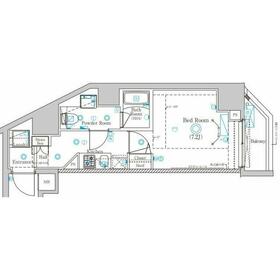
間取り 面積 |
物件種目 築年月 |
|
JR総武線/新小岩
東京都葛飾区東新小岩7丁目
|
11分
|
8.45万円
15,000円
|
なし / なし
1ヶ月
|
1K
26.48m²
|
賃貸マンション
2020年9月(築5年2ヶ月)
|
デザイナーズ、角部屋、南向き、二人入居可、24時間換気システム、閑静な住宅街、外観タイル張り、IT重説対応物件、保証人不要
|
|
間取図
|
外観
|
<
その他の画像
>
|
| 交通 | JR総武線 新小岩駅 徒歩11分 |
|---|
| その他の交通 | 京成押上線 京成立石駅 徒歩25分 京成押上線 四ツ木駅 徒歩27分 |
| 所在地 |
東京都葛飾区東新小岩7丁目
|
| 物件種目 |
賃貸マンション |
| 賃料 |
8.45万円 |
管理費等 |
15,000円 |
| 敷金 / 保証金 |
なし / なし |
礼金 |
1ヶ月 |
| 敷引 |
- |
保証金償却 |
- |
| その他一時金 |
安心サポート:21,450円、室内消毒:17,600円、契約事務手数料:11,000円、鍵交換代等:22,000円~ |
保険等 |
要 2年 23,000円 |
| 維持費等 |
- |
クレジットカード決済 |
初期費用可 |
| 間取り |
1K(洋7.2) |
専有面積 |
26.48m² |
| 築年月 |
2020年9月(築5年2ヶ月)
|
階建 / 階 |
10階建 / 1階 |
| 建物構造 |
RC |
総戸数 |
- |
| 主要採光面 |
南 |
駐車場 |
近有 19,800円/月 |
| バイク置き場 |
- |
駐輪場 |
有 |
| 建物名・部屋番号 |
ラフィスタ新小岩Ⅱ |
ペット |
-
|
| アピールポイント |
☆ミライアン不動産で初期費用ご相談可能です!カード決済で分割も可能です♪ネットで他にも気になる物件がございましたら、お気軽にお申し付けください! |
| リフォーム履歴 |
- |
| リノベーション履歴 |
- |
| 備考 |
賃貸保証等:加入要(初回保証料:月額総賃料50%)
管理形態/管理員の勤務形態:-/-
IT重説対応物件
☆他社の掲載物件もまとめて初期費用相談可能です☆
☆初期費用の分割・クレジットカード決済可能です☆
☆他社様がネット掲載している物件情報もお気軽にお問合せ下さい
☆安心・丁寧・納得をお約束致します!
是非一度ミライアン不動産までご連絡くださいませ!
駐車場まで300mの物件、いかがでしょうか。駐輪場付きの物件です。インターネット回線がある物件です。全居室フローリングなので、ハウスダストの温床になりにくいです。私たちの生活に必要不可欠な電気・水道・ガスのように、今やライフライン同然のインターネットを無料でお使いいただけます。何品も作る場合でも同時に料理を進められる、2口コンロを備え付けております。室内設備は浴室乾燥機・洗面化粧台など大変充実しております。セキュリティ面は、オートロック・TVインターホンなどを備え付けているので安心して暮らせます。共用部には宅配ボックスが付いているため、荷物の受け取りのために早く帰宅する必要がありません。収納はクロゼット・シューズボックスなどが備え付けられているので、衣類や日用品の収納に重宝します。駅から徒歩11分のところにある物件はいかがでし
|
| エネルギー消費性能 |
- |
| 断熱性能 |
- |
| 目安光熱費 |
- |
| バス・トイレ |
バス・トイレ別、浴室乾燥機、シャワー付洗面化粧台、洗面所独立、洗面所、洗面台、シャワー、温水洗浄便座、トイレ |
| キッチン |
システムキッチン、独立型キッチン、2口コンロ、ガスコンロ可 |
| セキュリティー |
モニター付オートロック、オートロック、モニター付インターホン、ダブルロックドア |
| 収納 |
収納スペース、クローゼット、シューズボックス |
| 設備・サービス |
室内洗濯機置場、洗濯機置場、都市ガス給湯、給湯、全居室フローリング、フローリング、都市ガス、エアコン、人感センサー付照明、照明器具 |
| TV・通信 |
インターネット対応、インターネット使用料無料、光ファイバー、ケーブルTV、CS、BS端子 |
| その他 |
宅配BOX、バルコニー、駐輪場、エレベーター |
| 契約期間 |
2年 |
現況 |
居住中 |
| 条件等 |
- |
入居可能時期 |
2025年11月上旬予定 |
| 更新料 |
新賃料 1.5ヶ月 |
物件番号 |
1150097916 |
| 情報公開日 |
2025年10月18日 |
次回更新予定日 |
2025年11月1日 |
| ケータイ用バーコード |
- スマートフォンでこの物件を見る
- スマートフォンからもこの物件をご覧になれます。
|
※「-」と表示されている項目については、情報提供会社にご確認ください。
| 周辺施設 |
コインランドリーふかふか東新小岩店 |
| 距離 |
516m |
写真を見る |
| 周辺施設 |
まいばすけっと 東新小岩5丁目店 |
| 距離 |
581m |
写真を見る |
| 周辺施設 |
スギドラッグ東新小岩 |
| 距離 |
724m |
写真を見る |
| 周辺施設 |
どらっぐぱぱす 新小岩店 |
| 距離 |
687m |
写真を見る |
| 周辺施設 |
アタック 東新小岩店 |
| 距離 |
889m |
写真を見る |
| 周辺施設 |
サミットストア 新小岩駅北口店 |
| 距離 |
877m |
写真を見る |
| 周辺施設 |
ココカラファイン新小岩北口店 |
| 距離 |
847m |
写真を見る |
| 周辺施設 |
WASHハウス 新小岩松島通り店 |
| 距離 |
1419m |
写真を見る |
ここから簡単にお問い合わせをすることができます。
(SSLでの暗号化での送信を希望されるお客さまは
こちら
よりお問い合わせください)
お問い合わせを行う前に
「個人情報の取り扱いについて」を必ずお読みください。
「個人情報の取り扱いについて」に同意いただいた場合は「上記にご同意の上 確認画面へ進む」のボタンをクリックしてください。
個人情報の取り扱いについて
皆さまが送付された個人情報はアットホーム(株)のサーバを経由し、お問い合わせ先の不動産会社にメールまたはFAXにて転送されるためアットホーム(株)にも保管されます。アットホーム(株)で保管された個人情報の取り扱いについては、【こちら】をご覧ください。
また、本画面でご記入いただいた個人情報は、お問い合わせ先の不動産会社でも保管します。 お問い合わせ先の不動産会社が保管する個人情報の取り扱いについては、不動産会社に直接お問い合わせください。
千葉県知事免許(1)第18316号 |
|---|
- 交通:
- JR総武線/市川駅 徒歩1分
- 千葉県市川市市川南1丁目8-30 市川セレストビル5階
- TEL:
- 047-324-2606
- FAX:
- 047-324-2607
- 所属団体:
- (一社)千葉県宅地建物取引業協会会員(公社)首都圏不動産公正取引協議会加盟
取引態様:仲介  - 00281122
|
- スマートフォンで
この不動産会社を見る

|
- 提携サイト等より掲載されている物件情報につきましては、不動産会社詳細情報にリンクされていないものがあります。
- 物件に関するお問合せは、物件詳細ページの「情報提供会社」に表示されている不動産会社へ直接お願いいたします。
- 間取図は、現況を優先させていただきます。
- 映像は物件の一部を撮影したものです。物件の契約にあたっての最終判断はご自身の判断に基づいて行ってください。
- 仲介手数料について

アットホームは物件情報の適正化に努めております。
内容に誤りがある場合にはこちらへご連絡ください。