東京都板橋区板橋4丁目(新板橋駅)の賃貸:物件詳細
交通 所在地 |
駅徒歩 |
賃料 管理費等 |
敷金/保証金 礼金 |
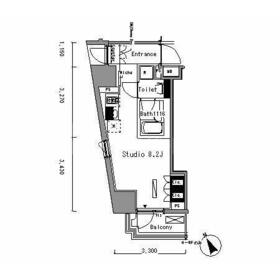
間取り 面積 |
物件種目 築年月 |
|
都営三田線/新板橋
東京都板橋区板橋4丁目
|
2分
|
10.3万円
5,000円
|
1ヶ月 / なし
1ヶ月
|
ワンルーム
24.63m²
|
賃貸マンション
2007年2月(築18年9ヶ月)
|
ペット相談、角部屋、南向き、IT重説対応物件、保証人不要
|
|
間取図
|
外観
|
<
その他の画像
>
|
| 交通 | 都営三田線 新板橋駅 徒歩2分 |
|---|
| その他の交通 | JR埼京線 板橋駅 徒歩8分 東武東上線 下板橋駅 徒歩12分 |
| 所在地 |
東京都板橋区板橋4丁目
|
| 物件種目 |
賃貸マンション |
| 賃料 |
10.3万円 |
管理費等 |
5,000円 |
| 敷金 / 保証金 |
1ヶ月 / なし |
礼金 |
1ヶ月 |
| 敷引 |
- |
保証金償却 |
- |
| その他一時金 |
なし |
保険等 |
要 |
| 維持費等 |
- |
クレジットカード決済 |
初期費用可 |
| 間取り |
ワンルーム |
専有面積 |
24.63m² |
| 築年月 |
2007年2月(築18年9ヶ月)
|
階建 / 階 |
地上14階地下1階建 / 7階 |
| 建物構造 |
RC |
総戸数 |
- |
| 主要採光面 |
南 |
駐車場 |
- |
| バイク置き場 |
- |
駐輪場 |
- |
| 建物名・部屋番号 |
パークアクシス新板橋ウエスト 704 |
ペット |
小型犬可・ 猫可 |
| アピールポイント |
ハウスパートナー赤羽駅西口店では赤羽駅沿線を中心に北区・板橋区・文京区・川口市近郊エリアの物件をご紹介させていただきます。新築・駅近・ペット相談・分譲賃貸・貸家等お部屋探しのお悩み事があればお気軽にご相談くださいませ。お問い合わせ・ご来店をスタッフ一同心よりお待ち申し上げます。 |
| リフォーム履歴 |
- |
| リノベーション履歴 |
- |
| 備考 |
賃貸保証等:加入要(初回総賃料の50%。1年毎9600円。)
管理形態/管理員の勤務形態:-/-
IT重説対応物件
鍵交換費用:16500円。退去時クリーニング費用:41800円。駐輪ステッカー:2200円。ペット飼育時:敷金1ヶ月増額。短期解約違約金:1年未満賃料1か月。
|
| エネルギー消費性能 |
- |
| 断熱性能 |
- |
| 目安光熱費 |
- |
| バス・トイレ |
バス・トイレ別、浴室乾燥機、温水洗浄便座、トイレ |
| キッチン |
システムキッチン、2口コンロ、ガスコンロ付 |
| セキュリティー |
モニター付オートロック、オートロック、モニター付インターホン |
| 収納 |
シューズボックス |
| 設備・サービス |
室内洗濯機置場、フローリング、都市ガス、エアコン |
| TV・通信 |
インターネット対応、光ファイバー、ケーブルTV、CS、BS端子 |
| その他 |
宅配BOX、バルコニー、エレベーター |
| 契約期間 |
2年 |
現況 |
空家 |
| 条件等 |
- |
入居可能時期 |
即時 |
| 更新料 |
新賃料 1ヶ月 |
物件番号 |
1150189515 |
| 情報公開日 |
2025年10月7日 |
次回更新予定日 |
2025年11月4日 |
| ケータイ用バーコード |
- スマートフォンでこの物件を見る
- スマートフォンからもこの物件をご覧になれます。
|
※「-」と表示されている項目については、情報提供会社にご確認ください。
| 周辺施設 |
コープ板橋駅前店 |
| 距離 |
410m |
写真を見る |
| 周辺施設 |
ファミリーマート新板橋駅前店 |
| 距離 |
190m |
写真を見る |
| 周辺施設 |
サンスクエア |
| 距離 |
2210m |
写真を見る |
| 周辺施設 |
板橋区立板橋第四小学校 |
| 距離 |
480m |
写真を見る |
| 周辺施設 |
板橋区立板橋第五中学校 |
| 距離 |
550m |
写真を見る |
| 周辺施設 |
さくらさくみらい新板橋 |
| 距離 |
330m |
写真を見る |
| 周辺施設 |
板橋駅東口交番 |
| 距離 |
570m |
写真を見る |
ここから簡単にお問い合わせをすることができます。
(SSLでの暗号化での送信を希望されるお客さまは
こちら
よりお問い合わせください)
お問い合わせを行う前に
「個人情報の取り扱いについて」を必ずお読みください。
「個人情報の取り扱いについて」に同意いただいた場合は「上記にご同意の上 確認画面へ進む」のボタンをクリックしてください。
個人情報の取り扱いについて
皆さまが送付された個人情報はアットホーム(株)のサーバを経由し、お問い合わせ先の不動産会社にメールまたはFAXにて転送されるためアットホーム(株)にも保管されます。アットホーム(株)で保管された個人情報の取り扱いについては、【こちら】をご覧ください。
また、本画面でご記入いただいた個人情報は、お問い合わせ先の不動産会社でも保管します。 お問い合わせ先の不動産会社が保管する個人情報の取り扱いについては、不動産会社に直接お問い合わせください。
国土交通大臣免許(2)第9556号 |
|---|
- 交通:
- JR京浜東北線/赤羽駅 徒歩2分
- 東京都北区赤羽西1丁目37-3 赤羽アイ・エスビル4階
- TEL:
- 03-5924-1866
- 所属団体:
- (公財)日本賃貸住宅管理協会会員(公社)全日本不動産協会会員(公社)首都圏不動産公正取引協議会加盟
取引態様:仲介  - 00275920
|
- スマートフォンで
この不動産会社を見る

|
- 提携サイト等より掲載されている物件情報につきましては、不動産会社詳細情報にリンクされていないものがあります。
- 物件に関するお問合せは、物件詳細ページの「情報提供会社」に表示されている不動産会社へ直接お願いいたします。
- 間取図は、現況を優先させていただきます。
- 映像は物件の一部を撮影したものです。物件の契約にあたっての最終判断はご自身の判断に基づいて行ってください。
- 仲介手数料について

アットホームは物件情報の適正化に努めております。
内容に誤りがある場合にはこちらへご連絡ください。