不動産 賃貸 マンション等の住宅情報:埼玉住まい情報


東京都墨田区立川4丁目(菊川駅)の賃貸:物件詳細

  • 物件詳細
  • 情報の見方
  • 印刷用画面
交通
所在地
駅徒歩 賃料
管理費等
敷金/保証金
礼金
間取り
面積
物件種目
築年月

都営新宿線/菊川 新着

東京都墨田区立川4丁目

5分

18.2万円

15,000円

なし / なし

なし

1LDK

41.66m²

賃貸マンション

2016年6月(築9年10ヶ月)

おすすめPOINTペット相談、分譲タイプ、常時ゴミ出し可能、南向き、ルームシェア可、二人入居可、制震構造、外観タイル張り

おすすめコメント  スタッフ: 石井

★他社様掲載物件もまとめて車でご案内致します★オンラインで申込から契約手続き、LINEでのご相談も可能です★メールでお問い合わせの際はお電話番号の記載がございましたら迅速にご対応させて頂きます!!

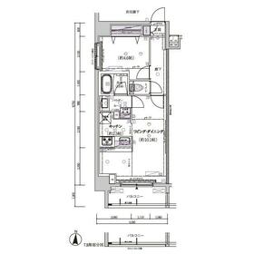
間取図

間取図

外観

外観

<
その他の画像
  • 玄関
  • リビング
  • キッチン
  • その他
  • バス/シャワー
  • バルコニー
  • 設備
  • トイレ
  • 洗面
  • 収納
  • 共有部分
  • 室内
  • その他
  • コンビニ
  • その他
  • その他
  • コンビニ
  • コンビニ
  • コンビニ
  • コンビニ
  • コンビニ
>
    • とりあえず保存
    • お問い合わせ
    交通

    都営新宿線 菊川駅 徒歩5分

    その他の交通

    都営新宿線 住吉駅 徒歩11分

    都営新宿線 森下駅 徒歩12分

    所在地 東京都墨田区立川4丁目
    物件種目 賃貸マンション
    賃料 18.2万円 管理費等 15,000円
    敷金 / 保証金 なし / なし 礼金 なし
    敷引 保証金償却
    その他一時金 鍵交換費用:29,700円、AMLクラブサポート費:16,500円 保険等 要 2年 20,000円
    維持費等
    間取り 1LDK(LDK12.6 洋4.6) 専有面積 41.66m²
    築年月 2016年6月(築9年10ヶ月) 階建 / 階 8階建 / 3階
    建物構造 RC 総戸数 43戸
    主要採光面 駐車場
    バイク置き場 駐輪場
    建物名・部屋番号 メインステージ菊川Ⅱ 301号室 ペット 相談
    リフォーム履歴
    リノベーション履歴
    備考
    賃貸保証等:加入要(家賃総額より50%~)
    管理形態/管理員の勤務形態:-/巡回
    管理人巡回
    [退去時費用 ルームクリーニング費:55,000円※故意・過失等別途実費] ①短期解約違約金有(1年未満=1ヶ月、半年未満=2ヶ月)②エアコンクリーニング費用(1台あたり16,500円税込み・退去時請求) NO:87252368
    エネルギー消費性能
    断熱性能
    目安光熱費
    バス・トイレ バス・トイレ別、浴室乾燥機、シャワー付洗面化粧台、洗面所独立、洗面所、洗面台、シャワー、温水洗浄便座、トイレ
    キッチン システムキッチン、3口以上コンロ、2口コンロ、ガスコンロ可
    セキュリティー モニター付オートロック、オートロック、モニター付インターホン、ディンプルキー、防犯カメラ
    収納 収納スペース、クローゼット、シューズボックス
    設備・サービス エアコン2台以上、給湯、全居室フローリング、フローリング、都市ガス、エアコン、人感センサー付照明、照明器具
    TV・通信 インターネット対応、インターネット使用料無料、光ファイバー、CS、BS端子、マルチメディアコンセント
    その他 宅配BOX、バルコニー、駐輪場、エレベーター
    契約期間 2年 現況 居住中
    条件等 入居可能時期 2026年5月中旬予定
    更新料 新賃料 1.5ヶ月 物件番号 1150636624
    情報公開日 2026年3月3日 次回更新予定日 2026年3月18日
    ケータイ用バーコード

    QRコード

    スマートフォンでこの物件を見る
    スマートフォンからもこの物件をご覧になれます。
    ※「-」と表示されている項目については、情報提供会社にご確認ください。

    この物件の周辺情報

    周辺施設 ファミリーマート立川四丁目店
    距離 67m
    周辺施設 くすりの福太郎菊川店
    距離 175m
    周辺施設 オオゼキ菊川店
    距離 268m
    周辺施設 セブン-イレブン墨田江東橋5丁目店
    距離 249m
    周辺施設 ファミリーマート本所立川三丁目店
    距離 319m
    周辺施設 セブン-イレブン 墨田菊川店
    距離 317m
    周辺施設 ファミリーマート 菊川駅前店
    距離 353m
    周辺施設 ファミリーマート墨田菊川駅前店
    距離 378m

    クイックお問い合わせ

    ここから簡単にお問い合わせをすることができます。
    (SSLでの暗号化での送信を希望されるお客さまは こちら よりお問い合わせください)

    お問い合わせ内容(必須)
    お名前(必須) 姓  名 
    メールアドレス(必須)
    ※携帯電話のメールアドレスをご入力される方はこちらをご確認ください
    電話番号(必須)
    - -

    ※入力いただいた電話番号へSMSまたは音声でパスワードをご連絡します。

    携帯電話の番号をご入力の方へ

    携帯電話の番号をご入力の方へ
    確認画面にて送信ボタンをクリックするとSMSが携帯電話に届きます。
    そのSMSに記載のパスワード(認証番号)を入力し、お問い合わせを完了してください。
    尚、SMSの送信者番号は 0005 202 760 となります。
    これはアットホームの固定番号です。

    備考欄 希望条件、物件案内希望日、質問などがございましたらご記入ください。
    お問い合わせを行う前に「個人情報の取り扱いについて」を必ずお読みください。
    「個人情報の取り扱いについて」に同意いただいた場合は「上記にご同意の上 確認画面へ進む」のボタンをクリックしてください。

    個人情報の取り扱いについて

    皆さまが送付された個人情報はアットホーム(株)のサーバを経由し、お問い合わせ先の不動産会社にメールまたはFAXにて転送されるためアットホーム(株)にも保管されます。アットホーム(株)で保管された個人情報の取り扱いについては、【こちら】をご覧ください。
    また、本画面でご記入いただいた個人情報は、お問い合わせ先の不動産会社でも保管します。 お問い合わせ先の不動産会社が保管する個人情報の取り扱いについては、不動産会社に直接お問い合わせください。

    情報提供会社

    情報提供会社

    アパマンショップ大森店 株式会社 ゼント

    東京都知事免許(5)第83411号

    交通:
    JR京浜東北線/大森駅
    東京都大田区大森北1丁目3-12 プラザ荻野2階
    TEL:
    03-3765-8801
    FAX:
    03-3765-8800
    所属団体:
    (公社)全日本不動産協会会員
    (公社)首都圏不動産公正取引協議会加盟

    取引態様:仲介

    • 会社情報
    • 99021162
    スマートフォンで
    この不動産会社を見る
    QRコード
    • とりあえず保存
    • お問い合わせ
    • 提携サイト等より掲載されている物件情報につきましては、不動産会社詳細情報にリンクされていないものがあります。
    • 物件に関するお問合せは、物件詳細ページの「情報提供会社」に表示されている不動産会社へ直接お願いいたします。
    • 間取図は、現況を優先させていただきます。
    • 映像は物件の一部を撮影したものです。物件の契約にあたっての最終判断はご自身の判断に基づいて行ってください。
    • 仲介手数料について仲介手数料

    アットホームは物件情報の適正化に努めております。 内容に誤りがある場合にはこちらへご連絡ください。

    【埼玉住まい情報】では、日本全国の物件から賃貸マンションや賃貸アパート・賃貸一戸建て等の賃貸住宅情報、新築マンション・分譲マンションや中古マンション等の売買マンション情報、新築一戸建てや中古一戸建てなどの戸建住宅、 土地など、総合的な不動産住宅情報検索サービスを提供致します。
    【埼玉住まい情報】から、選りすぐりの不動産物件を探してみましょう。

    【免責事項】
    このコーナーの運営はアットホーム株式会社(https://www.athome.co.jp/)が行っています。
    このコーナーに掲載している物件情報は、「アットホーム不動産情報ネットワーク」に加盟する不動産会社等(情報提供元)から提供されています。信頼性の高い情報提供が行えるよう、最大限の努力をしておりますが、その内容を保証するものではありません。 利用者のみなさまと各情報提供元との取引に起因する損害および情報が掲載されたことに起因する損害等については、株式会社イーシティ埼玉、およびアットホームは一切責任を負いません。
    各物件情報の内容や画像等はすべて現況を優先させていただきます。
    お取引等(お取引の準備、資金調達等を含みます)の際には、内容や契約条件等について、各情報提供元より十分な説明を受け、ご自身でご確認の上、判断してください。
    このコーナーへの物件情報のご掲載、その他不動産業務ソリューション等についての不動産会社様のお問合せはこちらからお願いいたします。

    物件画像: