不動産 賃貸 マンション等の住宅情報:埼玉住まい情報


東京都港区新橋6丁目(御成門駅)の賃貸:物件詳細

  • 物件詳細
  • 情報の見方
  • 印刷用画面
交通
所在地
駅徒歩 賃料
管理費等
敷金/保証金
礼金
間取り
面積
物件種目
築年月

都営三田線/御成門 新着

東京都港区新橋6丁目

2分

12.9万円

7,000円

1ヶ月 / なし

1ヶ月

1K

24.67m²

賃貸マンション

2006年1月(築19年10ヶ月)

おすすめPOINT分譲タイプ、常時ゴミ出し可能、高齢者相談、2面採光、24時間換気システム、閑静な住宅街、保証人不要

おすすめコメント  スタッフ: 山本 冬馬

セキュリティ面は、オートロック・TVインターホンなど充実しているので安心して生活できます。収納はクロゼット・全居室収納などが備え付けられているので、衣類や日用品の収納に重宝します。

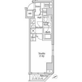
間取図

間取図

外観

外観

外観もきれいです

<
その他の画像
  • リビング
  • キッチン
  • バス/シャワー
  • トイレ
  • 洗面
  • 共有部分
  • 共有部分
  • エントランス
  • 玄関
  • キッチン
  • 室内
  • 収納
  • バルコニー
  • 販売店
  • コンビニ
  • 販売店
  • 病院
  • 郵便局
  • 飲食店
>
    • とりあえず保存
    • お問い合わせ
    交通

    都営三田線 御成門駅 徒歩2分

    その他の交通

    東京メトロ日比谷線 神谷町駅 徒歩12分

    JR山手線 新橋駅 徒歩12分

    所在地 東京都港区新橋6丁目
    物件種目 賃貸マンション
    賃料 12.9万円 管理費等 7,000円
    敷金 / 保証金 1ヶ月 / なし 礼金 1ヶ月
    敷引 保証金償却
    その他一時金 なし、鍵交換代等:37,400円~ 保険等
    維持費等 24時間サポート:880円/月
    間取り 1K(洋7.4) 専有面積 24.67m²
    築年月 2006年1月(築19年10ヶ月) 階建 / 階 15階建 / 2階
    建物構造 RC 総戸数
    主要採光面 北東 駐車場 近有 40,000円/月
    バイク置き場 駐輪場
    建物名・部屋番号 カーサスプレンディッド虎ノ門エスト ペット
    アピールポイント 室内設備は浴室乾燥機・洗面化粧台など充実した設備を備え付けています。共用部には宅配ボックス・ゴミ出し24時間OKなどが揃っており、とても充実しています。セキュリティ面は、TVインターホン・オートロックなど充実しているので、防犯対策もばっちりです。収納はクロゼット・全居室収納など豊富なので、広々と空間を利用することも可能です。閑静な住宅地にある物件です。バルコニー付きの物件で、用途に合わせて使用できます。とてもゆとりのある環境が魅力の月12.9万円の物件。全居室フローリングの物件で、床掃除がしやすくなっています。間取りは1K。充実した水回りは女性にも好評。収納力と掃除のしやすさを同時に備えているシステムキッチンが付いています。入居日のことなど、小さなことでもかまいませんのでご相談ください。
    リフォーム履歴
    リノベーション履歴
    備考
    賃貸保証等:加入要(初回 賃料等総額の50%~)
    管理形態/管理員の勤務形態:-/-
    室内設備は浴室乾燥機・洗面所独立など大変充実しております。共用部にはゴミ出し24時間OK・宅配ボックスなどが備わっておりとても充実しています。セキュリティ面は、TVインターホン・オートロックなどを備え付けているので安心して暮らせます。収納はクロゼット・全居室収納など豊富なので、広々と空間を利用することも可能です。このマンションは駐輪場が付いている物件です。入居を急いでいる方、こちらの空室のお部屋であれば入居までの待ち時間も短縮できます。駅まで徒歩2分の立地が魅力的な、利便性の高い物件です。敷地から出てすぐの場所にパーキングがあります。15階建てなので、住みやすい物件です。目的に応じて選べる、3駅以上利用可能なマンションです。この物件は月12.9万円と、グレードの高い物件となっております。
    エネルギー消費性能
    断熱性能
    目安光熱費
    バス・トイレ バス・トイレ別、浴室乾燥機、洗面所独立、洗面所、温水洗浄便座、トイレ
    キッチン システムキッチン、2口コンロ、ガスコンロ可、グリル
    セキュリティー モニター付オートロック、オートロック、モニター付インターホン、ディンプルキー、ダブルロックドア、防犯カメラ
    収納 全居室収納、収納スペース、クローゼット
    設備・サービス 室内洗濯機置場、洗濯機置場、全居室フローリング、フローリング、都市ガス、エアコン、冷房
    TV・通信 インターネット対応、CATVインターネット、ケーブルTV、CS、BS端子
    その他 宅配BOX、バルコニー、駐輪場、エレベーター
    契約期間 2年 現況 空家
    条件等 入居可能時期 相談
    更新料 新賃料 1ヶ月 物件番号 1150718016
    情報公開日 2025年10月26日 次回更新予定日 2025年11月9日
    ケータイ用バーコード

    QRコード

    スマートフォンでこの物件を見る
    スマートフォンからもこの物件をご覧になれます。
    ※「-」と表示されている項目については、情報提供会社にご確認ください。

    この物件の周辺情報

    周辺施設 まいばすけっと虎ノ門3丁目店
    距離 791m
    周辺施設 セブンイレブン 新橋5丁目店
    距離 171m
    周辺施設 ほっともっと 新橋柳通り店
    距離 408m
    周辺施設 新橋クリニック
    距離 371m
    周辺施設 虎ノ門ヒルズ郵便局
    距離 1007m
    周辺施設 ドトールコーヒーショップ 西新橋3丁目店
    距離 445m

    クイックお問い合わせ

    ここから簡単にお問い合わせをすることができます。
    (SSLでの暗号化での送信を希望されるお客さまは こちら よりお問い合わせください)

    お問い合わせ内容(必須)
    お名前(必須) 姓  名 
    メールアドレス(必須)
    ※携帯電話のメールアドレスをご入力される方はこちらをご確認ください
    電話番号(必須)
    - -

    ※入力いただいた電話番号へSMSまたは音声でパスワードをご連絡します。

    携帯電話の番号をご入力の方へ

    携帯電話の番号をご入力の方へ
    確認画面にて送信ボタンをクリックするとSMSが携帯電話に届きます。
    そのSMSに記載のパスワード(認証番号)を入力し、お問い合わせを完了してください。
    尚、SMSの送信者番号は 0005 202 760 となります。
    これはアットホームの固定番号です。

    備考欄 希望条件、物件案内希望日、質問などがございましたらご記入ください。
    お問い合わせを行う前に「個人情報の取り扱いについて」を必ずお読みください。
    「個人情報の取り扱いについて」に同意いただいた場合は「上記にご同意の上 確認画面へ進む」のボタンをクリックしてください。

    個人情報の取り扱いについて

    皆さまが送付された個人情報はアットホーム(株)のサーバを経由し、お問い合わせ先の不動産会社にメールまたはFAXにて転送されるためアットホーム(株)にも保管されます。アットホーム(株)で保管された個人情報の取り扱いについては、【こちら】をご覧ください。
    また、本画面でご記入いただいた個人情報は、お問い合わせ先の不動産会社でも保管します。 お問い合わせ先の不動産会社が保管する個人情報の取り扱いについては、不動産会社に直接お問い合わせください。

    情報提供会社

    情報提供会社

    Sky Yard Property(株)

    東京都知事免許(1)第107337号

    交通:
    JR山手線/新橋駅 徒歩5分
    東京都中央区銀座8丁目11-1 GINZA GS BLD.2 7階
    TEL:
    03-6281-4770
    FAX:
    03-6281-4771
    所属団体:
    (公社)東京都宅地建物取引業協会会員
    (公社)首都圏不動産公正取引協議会加盟

    取引態様:仲介

    • 会社情報
    • 00271811
    スマートフォンで
    この不動産会社を見る
    QRコード
    • とりあえず保存
    • お問い合わせ
    • 提携サイト等より掲載されている物件情報につきましては、不動産会社詳細情報にリンクされていないものがあります。
    • 物件に関するお問合せは、物件詳細ページの「情報提供会社」に表示されている不動産会社へ直接お願いいたします。
    • 間取図は、現況を優先させていただきます。
    • 映像は物件の一部を撮影したものです。物件の契約にあたっての最終判断はご自身の判断に基づいて行ってください。
    • 仲介手数料について仲介手数料

    アットホームは物件情報の適正化に努めております。 内容に誤りがある場合にはこちらへご連絡ください。

    【埼玉住まい情報】では、日本全国の物件から賃貸マンションや賃貸アパート・賃貸一戸建て等の賃貸住宅情報、新築マンション・分譲マンションや中古マンション等の売買マンション情報、新築一戸建てや中古一戸建てなどの戸建住宅、 土地など、総合的な不動産住宅情報検索サービスを提供致します。
    【埼玉住まい情報】から、選りすぐりの不動産物件を探してみましょう。

    【免責事項】
    このコーナーの運営はアットホーム株式会社(https://www.athome.co.jp/)が行っています。
    このコーナーに掲載している物件情報は、「アットホーム不動産情報ネットワーク」に加盟する不動産会社等(情報提供元)から提供されています。信頼性の高い情報提供が行えるよう、最大限の努力をしておりますが、その内容を保証するものではありません。 利用者のみなさまと各情報提供元との取引に起因する損害および情報が掲載されたことに起因する損害等については、株式会社イーシティ埼玉、およびアットホームは一切責任を負いません。
    各物件情報の内容や画像等はすべて現況を優先させていただきます。
    お取引等(お取引の準備、資金調達等を含みます)の際には、内容や契約条件等について、各情報提供元より十分な説明を受け、ご自身でご確認の上、判断してください。
    このコーナーへの物件情報のご掲載、その他不動産業務ソリューション等についての不動産会社様のお問合せはこちらからお願いいたします。

    物件画像: